Бизнес
Цена на кв.м: 1200
Брой етажи на сградата: 2
Квадратура: 322 кв.м
Квадратура на двора: 900 кв.м
Година на строителство: 2026 г.
Строителство: Тухла
Отопление: Газ
Състояние на сградата: В строеж
Особености: СОТ, гараж, газификация, канализация, охрана, видеонаблюдение
Описание
X Property представя на Вашето внимание луксозна еднофамилна къща в гр. Перник.
Перфектна локация за тези, които търсят спокойствие и близост до природата, без да се лишават от удобствата на града.
ВЕЧЕ С АКТ 14!!!
Напреднал етап на строителство, гарантиращ спазването на крайните срокове.
Проектът е разположен в парцел 900кв.м., заобиколен от иглолистна и широколистна растителност. В близост са супермаркети, градски, междуградски и железопътен транспорт, парк и стадион, заведения, пътен възел за гр. София и автомагистрала Струма.
Сградата е съчетание от модерна архитекрура, висококачествени материали и модерни технологии, осигуряващи сигурност и комфорт за цялото семейство. Има следното разпределение:
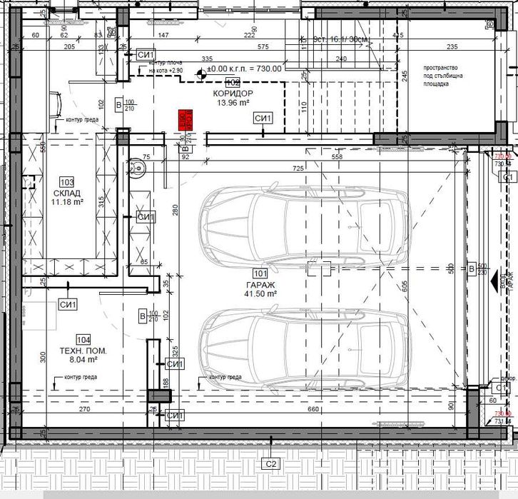
Партер:
- гараж за два автомобила с топла връзка
- складово помещение
- техническо помещение
Първо ниво:
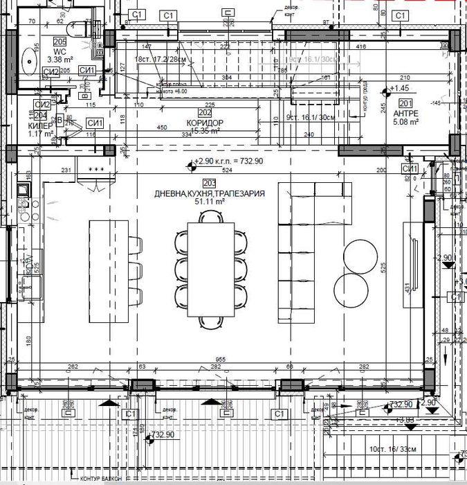
- Входно антре/предверие
- Просторна дневна с кухня, трапезария и излаз към веранда с прекрасен двор
- Санитарен възел
- Килер
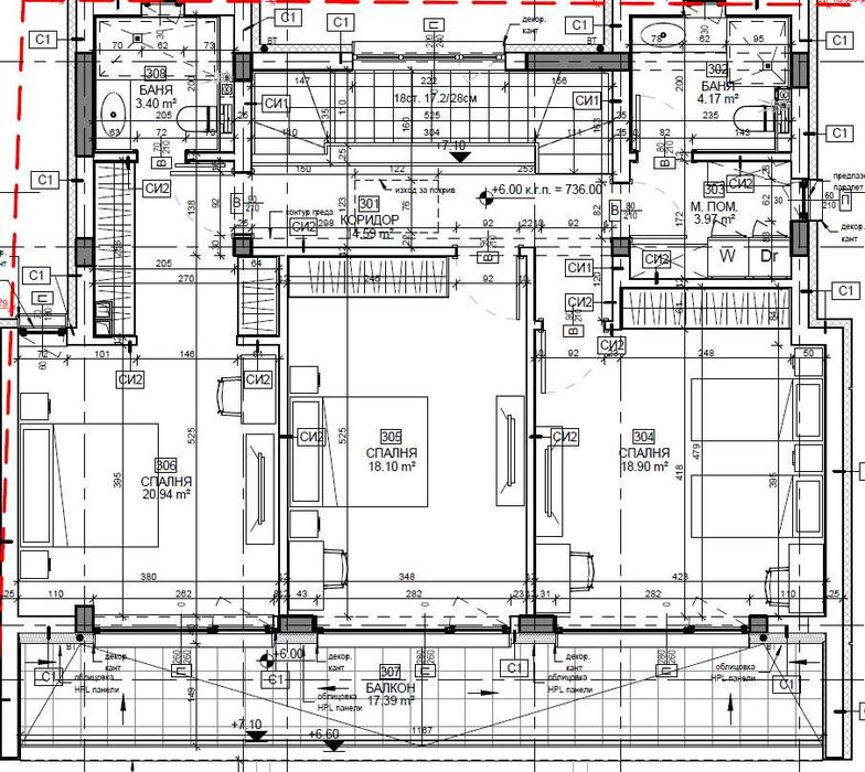
Второ ниво:
- Родителска спалня с гардеробно помещение и собствен санитарен възел
- Детска спалня
- Спалня за гости
- Втори санитарен възел
- Голяма обща тераса с прекрасна гледка и южно изложение
Района е с много добра инфраструктура и газифициран. Предвидено е водно- подово отопление.
Модерна архитектура: Сградата е проектирана с мисъл за естетиката и функционалността, използвайки само висококачествени материали и съвременни технологии.
Енергийна ефективност и комфорт: Районът е газифициран. Предвидено е водно-подово отопление на газ във всички помещения.
Висок клас материали:
Използвани са тухли Wienerberger POROTHERM 25 N+F, седемкамерна дограма REHAU.
Перфектна локация за тези, които търсят спокойствие и близост до природата, без да се лишават от удобствата на града.
ВЕЧЕ С АКТ 14!!!
Напреднал етап на строителство, гарантиращ спазването на крайните срокове.
Проектът е разположен в парцел 900кв.м., заобиколен от иглолистна и широколистна растителност. В близост са супермаркети, градски, междуградски и железопътен транспорт, парк и стадион, заведения, пътен възел за гр. София и автомагистрала Струма.
Сградата е съчетание от модерна архитекрура, висококачествени материали и модерни технологии, осигуряващи сигурност и комфорт за цялото семейство. Има следното разпределение:
Партер:
- гараж за два автомобила с топла връзка
- складово помещение
- техническо помещение
Първо ниво:
- Входно антре/предверие
- Просторна дневна с кухня, трапезария и излаз към веранда с прекрасен двор
- Санитарен възел
- Килер
Второ ниво:
- Родителска спалня с гардеробно помещение и собствен санитарен възел
- Детска спалня
- Спалня за гости
- Втори санитарен възел
- Голяма обща тераса с прекрасна гледка и южно изложение
Района е с много добра инфраструктура и газифициран. Предвидено е водно- подово отопление.
Модерна архитектура: Сградата е проектирана с мисъл за естетиката и функционалността, използвайки само висококачествени материали и съвременни технологии.
Енергийна ефективност и комфорт: Районът е газифициран. Предвидено е водно-подово отопление на газ във всички помещения.
Висок клас материали:
Използвани са тухли Wienerberger POROTHERM 25 N+F, седемкамерна дограма REHAU.
ID: 143223271
Контакт с продавача
xxx xxx xxx

