Бизнес
Цена на кв.м: 2113.21
Тип апартамент: 3 - стаен
Квадратура: 106 кв.м
Година на строителство: 2025 г.
Строителство: Тухла
Етаж: 5-ти
Брой етажи на сградата: 7
Последен етаж
Отопление: Електричество
Обзавеждане: Необзаведен
Състояние на сградата: В строеж
Преход: Без преход
Особености: асансьор
Описание
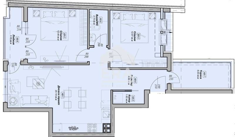
ERA Парадайс предлага за продажба тристаен апартамент в новострояща се сграда в централната част на града, в района на ЗК Тракия. Жилището е със застроена площ 81.97 кв. м и обща площ - 106.35 кв. м, разположено на пети етаж в 7-етажна сграда. Сградата предстои да бъде въведена в експлоатация в началото на 2027-ма г.
Жилището е светло и просторно, с комфортен обем на помещенията, разпределени, както следва: дневна с кухненски бокс и трапезария с площ 25.19 кв. м, две самостоятелни спални (съответно с площ 13.46 и 12.07 кв. м), баня с тоалетна (2.75 кв. м), килер (1.62 кв. м), голяма тераса с площ 6.03 кв. м и лоджия (3.35 кв. м), с излаз от дневната и едната спалня. Изложението е югозапад (дневния тракт и едната спалня) / североизток (втора спалня).
Жилището ще бъде завършено по БДС. Гъвкаво плащане, разсрочено във времето. Възможност за кредитиране.
В сградата се предлагат и други двустайни и тристайни апартаменти, с различни квадратури и изложения.
Има възможност за закупуване и на подземно паркомясто на цени от 26 000 евро.
Районът е чудесен и предпочитан избор за живеене и инвестиция. Разположен на пешеходно разстояние от центъра на града, в близост до главни пътни артерии, автобусни спирки, големи вериги магазини, учебни заведения, детски градини, училища, аптеки, административни сгради, банки и др. Всички необходимо за съвременен и практичен начин на живот.
Оферта №7100027
Жилището е светло и просторно, с комфортен обем на помещенията, разпределени, както следва: дневна с кухненски бокс и трапезария с площ 25.19 кв. м, две самостоятелни спални (съответно с площ 13.46 и 12.07 кв. м), баня с тоалетна (2.75 кв. м), килер (1.62 кв. м), голяма тераса с площ 6.03 кв. м и лоджия (3.35 кв. м), с излаз от дневната и едната спалня. Изложението е югозапад (дневния тракт и едната спалня) / североизток (втора спалня).
Жилището ще бъде завършено по БДС. Гъвкаво плащане, разсрочено във времето. Възможност за кредитиране.
В сградата се предлагат и други двустайни и тристайни апартаменти, с различни квадратури и изложения.
Има възможност за закупуване и на подземно паркомясто на цени от 26 000 евро.
Районът е чудесен и предпочитан избор за живеене и инвестиция. Разположен на пешеходно разстояние от центъра на града, в близост до главни пътни артерии, автобусни спирки, големи вериги магазини, учебни заведения, детски градини, училища, аптеки, административни сгради, банки и др. Всички необходимо за съвременен и практичен начин на живот.
Оферта №7100027
ID: 144501473
Контакт с продавача
xxx xxx xxx

