Бизнес
Цена на кв.м: 294.57
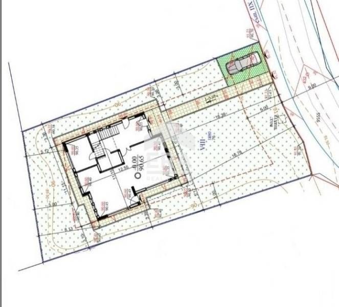
Квадратура: 645 кв.м
Регулация: В регулация
Вода: С вода
Ток: С ток
Особености: жил.строителство, канализация
Описание
ЕРА Варна Тренд предлага за продажба урегулиран поземлен имот с ПУП, ток, вода и проект за двуетажна къща, на асфалтова улица, над бензиностанция ЕКО. Парцелът е с площ 645 кв.м, равен, с правилна форма. За имота е издаден ПУП и има проект за построяване на двуетажна къща с РЗП 278 кв.м - просторна дневна с веранда, 4 спални, две тераси, три бани с тоалетни, склад и перално помещение. В парцела са налични електричество и вода с партиди, като имотът е присъединен и към канализационната мрежа в района. В съседство има новопостроени къщи.
Оферта №0222535
Оферта №0222535
ID: 147662522
Контакт с продавача
xxx xxx xxx

