Бизнес
Цена на кв.м: 510
Квадратура: 1000 кв.м
Регулация: В регулация
Вода: Без вода
Ток: Без ток
Особености: жил.строителство
Описание
EРА Голд Ви представя УПИ с площ 1000 кв.м в м-т Детски град, район Панчарево. Парцелът може да бъде закупен за 510 000 евро или обезщетение 33%!
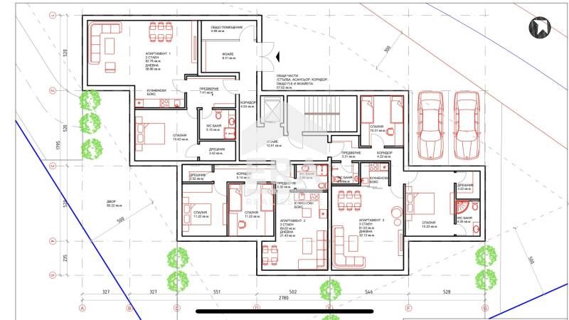
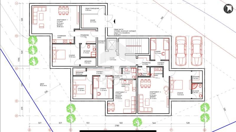
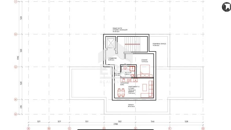
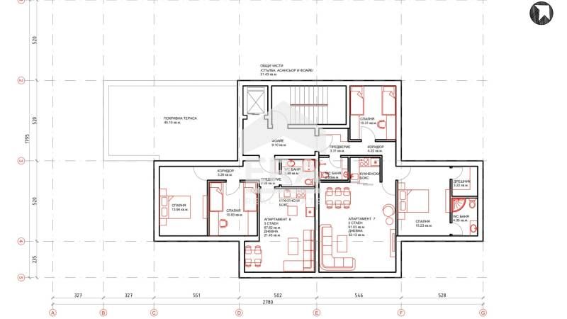
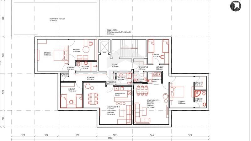
За имота има идеен проект за жилищна сграда съгласно приложените разпределения към офертата. Също така има и готов проект за апартхотел с РЗП 2000 м² с ресторант, СПА, фитнес и конферентна зала.
Парцела е с голямо лице на път поради което е много подходящ за изграждането и на търговски обект - медицински, търговски, козметичен или фитнес център. В съседство има изграден жилищен комплекс.
Парцелът има местоположение, предоставящо панорамни гледки към планината и подходящ за изграждането на разпознаваема сграда. Има 50м лице на асфалтираната ул. 'Асен Киселинчев', която предоставя целогодишен лесен достъп до него. Имотът е в регулация, заравнен и почистен, с налично електричество, водоподаване, оптичен интернет.
Попада в Жилищна зона с малкоетажно застрояване в природна среда, със следните параметри на застрояване:
- Плътност на застрояване: 30%;
- КИНТ: 0,9;
- Кота корниз: 10 м;
- Минимално озеленяване: 60%.
Намира се на входа на спортен комплекс „Панчарево“, Плувен комплекс „Sofia Beach”, до Англо-американското училище, до няколко жилищни комплекса с къщи „Crystal Bell”, „Бяла черква“ и др. На пешеходно разстояние са разположени училище (Англо-американското училище,), ЧДГ „Слънчогледи“.Развитата инфраструктура осигурява лесен и бърз достъп до „Бизнес парк София“ и Интер Експо Център,летище София, както и до Панчаревско езеро и до начална станция на камбинков лифт „Симеоново“. Прекрасната локация, спокойствието, тишината, чистия въздух и богатата растителност дават отлична възможност за реализацията на висококачествен проект.
CreditERA предоставя безплатна консултация и съдействие при финансиране на избрания от Вас имот от всички водещи банки в страната и ще договори най-добрите условия за вас!
Оферта №4003143
За имота има идеен проект за жилищна сграда съгласно приложените разпределения към офертата. Също така има и готов проект за апартхотел с РЗП 2000 м² с ресторант, СПА, фитнес и конферентна зала.
Парцела е с голямо лице на път поради което е много подходящ за изграждането и на търговски обект - медицински, търговски, козметичен или фитнес център. В съседство има изграден жилищен комплекс.
Парцелът има местоположение, предоставящо панорамни гледки към планината и подходящ за изграждането на разпознаваема сграда. Има 50м лице на асфалтираната ул. 'Асен Киселинчев', която предоставя целогодишен лесен достъп до него. Имотът е в регулация, заравнен и почистен, с налично електричество, водоподаване, оптичен интернет.
Попада в Жилищна зона с малкоетажно застрояване в природна среда, със следните параметри на застрояване:
- Плътност на застрояване: 30%;
- КИНТ: 0,9;
- Кота корниз: 10 м;
- Минимално озеленяване: 60%.
Намира се на входа на спортен комплекс „Панчарево“, Плувен комплекс „Sofia Beach”, до Англо-американското училище, до няколко жилищни комплекса с къщи „Crystal Bell”, „Бяла черква“ и др. На пешеходно разстояние са разположени училище (Англо-американското училище,), ЧДГ „Слънчогледи“.Развитата инфраструктура осигурява лесен и бърз достъп до „Бизнес парк София“ и Интер Експо Център,летище София, както и до Панчаревско езеро и до начална станция на камбинков лифт „Симеоново“. Прекрасната локация, спокойствието, тишината, чистия въздух и богатата растителност дават отлична възможност за реализацията на висококачествен проект.
CreditERA предоставя безплатна консултация и съдействие при финансиране на избрания от Вас имот от всички водещи банки в страната и ще договори най-добрите условия за вас!
Оферта №4003143
ID: 142694090
Контакт с продавача
xxx xxx xxx