Бизнес
Цена на кв.м: 1593.41
Тип апартамент: 3 - стаен
Квадратура: 91 кв.м
Година на строителство: 2025 г.
Строителство: Тухла
Етаж: 4-ти
Брой етажи на сградата: 13
Последен етаж
Отопление: Електричество
Обзавеждане: Необзаведен
Състояние на сградата: В строеж
Преход: Без преход
Особености: асансьор, паркинг
Описание
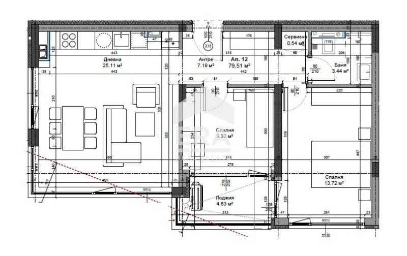
ЕКСКЛУЗИВНО! ЗАПОЧНАЛ СТРОЕЖ! ТРИСТАЕН ЮГОЗАПАДЕН АПАРТАМЕНТ, В НОВОСТРОЯЩА СЕ СГРАДА ГЛЕДКА. ЕРА Варна Тренд предлага за продажба тристаен апартамент със застроена площ 79,51 кв.м (91,31 кв.м с общите части), разположен на четвърти етаж от общо 13 етажа. Състои се от входно антре (7,19 кв.м), дневна с кухненски бокс (25,11 кв.м), две спални (13,72 кв.м и 9,32 кв.м) с излаз на обща лоджия (4,63 кв.м), баня с тоалетна (3,44 кв.м) и килер (0,54 кв.м). Изложението на всички стаи е южно, като част от дневната е ориентирана и на запад. Статутът е на апартамент.
Жилището се продава необзаведено. Ще бъде завършено до степен БДС – варо-гипсова мазилка и циментова замазка, многокамерен ПВЦ профил, двоен стъклопакет, двуосово отваряне; блиндирана входна врата. Отоплението ще бъде с електричество.
Тристайният апартамент се намира в близост до Вятърна мелница, над Цветен квартал, в нова луксозна сграда ГЛЕДКА, с прекрасна панорама към морето, нос Галата и града. Строителят е сигурен и доказал се на пазара, с изградено солидно портфолио от завършени и новостроящи се сгради, със спазени изпълнителни срокове. Сградата е проектирана с пет подземни и девет надземни етажа. Предлагат се за продажба двустайни и тристайни жилища, с различна квадратура, етаж, изложение и цена, като апартаментите на първите етажи разполагат със собствени обособени дворове. Сградата ще бъде изпълнена с най-висок клас материали, с модерна разчупена визия, функционално разгърната в пространството, предлагаща удобство и практичност на жилищните площи. Предвидени са подземни паркоместа, с лесен подход до всяко ниво. Достъпът до сградата е лесен - от бул. Христо Смирненски или бул. Цар Освободител. Открита строителна площадка - месец май 2025 г. Срок за въвеждане в експлоатация (Акт 16) - до края на 2028 г.
Оферта №0221954
Жилището се продава необзаведено. Ще бъде завършено до степен БДС – варо-гипсова мазилка и циментова замазка, многокамерен ПВЦ профил, двоен стъклопакет, двуосово отваряне; блиндирана входна врата. Отоплението ще бъде с електричество.
Тристайният апартамент се намира в близост до Вятърна мелница, над Цветен квартал, в нова луксозна сграда ГЛЕДКА, с прекрасна панорама към морето, нос Галата и града. Строителят е сигурен и доказал се на пазара, с изградено солидно портфолио от завършени и новостроящи се сгради, със спазени изпълнителни срокове. Сградата е проектирана с пет подземни и девет надземни етажа. Предлагат се за продажба двустайни и тристайни жилища, с различна квадратура, етаж, изложение и цена, като апартаментите на първите етажи разполагат със собствени обособени дворове. Сградата ще бъде изпълнена с най-висок клас материали, с модерна разчупена визия, функционално разгърната в пространството, предлагаща удобство и практичност на жилищните площи. Предвидени са подземни паркоместа, с лесен подход до всяко ниво. Достъпът до сградата е лесен - от бул. Христо Смирненски или бул. Цар Освободител. Открита строителна площадка - месец май 2025 г. Срок за въвеждане в експлоатация (Акт 16) - до края на 2028 г.
Оферта №0221954
ID: 145650874
Контакт с продавача
xxx xxx xxx

