Бизнес
Цена на кв.м: 1276.60
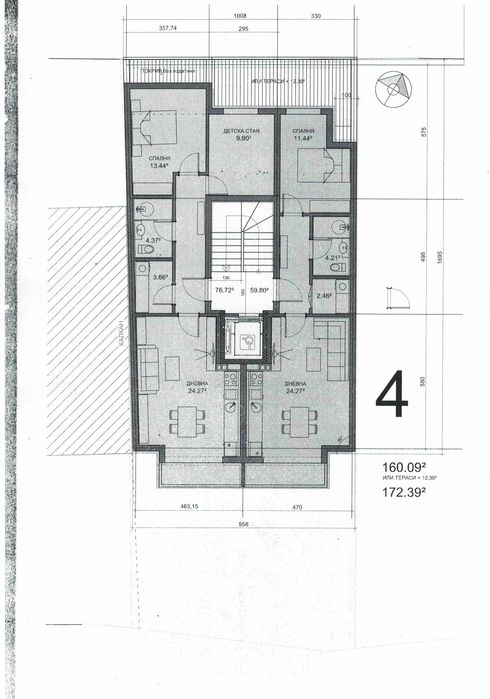
Тип апартамент: 3 - стаен
Квадратура: 94 кв.м
Година на строителство: 2027 г.
Строителство: Тухла
Етаж: 4-ти
Брой етажи на сградата: 6
Последен етаж
Отопление: Електричество
Обзавеждане: Необзаведен
Състояние на сградата: В строеж
Преход: Без преход
Особености: асансьор, саниран
Описание
,,ВЕСТА ИМОТИ ООД представя НОВ ПРОЕКТ на модерна пететажна сграда в кв. Аспарухово, ул.,,Марагидик . Сградата се отличава с изключителна функционалност на апартаментите. Общите части на сградата ще са луксозно завършени. Апартаментите се завършват по БДС. Цената, която клиентите получават е крайна без промяна до Акт 16, като се разсрочва при схема, удобна за клиента. Продава двустайни, тристайни, мезонет, гараж и паркоместа.
Отличен тристаен Ап. 94 кв.м., ет. 4, две спални, всекидневна, две тераси, санитарен възел.
,,Веста Имоти извършва всички необходими юридически и технически проверки на имота, който сте избрали, организира всички етапи на сделката до нейното финализиране с нотариално прехвърляне на имота; наемни отношения.
Отличен тристаен Ап. 94 кв.м., ет. 4, две спални, всекидневна, две тераси, санитарен възел.
,,Веста Имоти извършва всички необходими юридически и технически проверки на имота, който сте избрали, организира всички етапи на сделката до нейното финализиране с нотариално прехвърляне на имота; наемни отношения.
ID: 146732568
Контакт с продавача
xxx xxx xxx
Добавена 16 януари 2026 г.
Тристаен в сграда - предстоящ проект
234699.60 лв. / 120000 €
Потребител
Локация
гр. Варна, Аспарухово
Област Варна