Бизнес
Цена на кв.м: 1552.08
Тип апартамент: 3 - стаен
Квадратура: 96 кв.м
Година на строителство: 2025 г.
Строителство: Тухла
Етаж: 3-ти
Брой етажи на сградата: 5
Последен етаж
Отопление: Електричество
Обзавеждане: Необзаведен
Състояние на сградата: В строеж
Преход: Без преход
Особености: асансьор
Описание
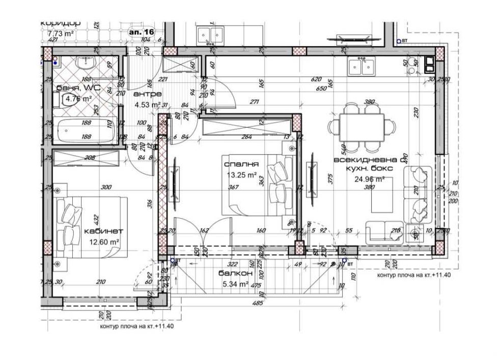
Предлагаме за продажба тристаен апартамент с отлично разпределение и южно изложение, разположен на трети етаж от пететажна сграда в кв. Виница.
Жилището е с обща площ от 96 кв.м., и се състои от:
* Просторна всекидневна – 25 м², с място за кухненски кът, трапезария и зона за отдих;
* Две спални – по 13 м², с излаз към обща тераса, която предлага приятна гледка и южно слънце през целия ден;
* Баня с тоалет – 5 м²;
* Входно антре с удобно място за гардероб или шкафове за съхранение.
* Към апартамента има изба, включена в цената.
Възможност за закупуване на паркомясто или гараж в сградата.
Сградата е на етап пред Акт 16 (разрешение за ползване), с модерна визия, качествено строителство и добре поддържани общи части.
Имотът е подходящ както за семейно жилище, така и за инвестиция с цел отдаване под наем – районът е спокоен, с добра инфраструктура, бърз достъп до центъра на Варна и морето.
Жилището е с обща площ от 96 кв.м., и се състои от:
* Просторна всекидневна – 25 м², с място за кухненски кът, трапезария и зона за отдих;
* Две спални – по 13 м², с излаз към обща тераса, която предлага приятна гледка и южно слънце през целия ден;
* Баня с тоалет – 5 м²;
* Входно антре с удобно място за гардероб или шкафове за съхранение.
* Към апартамента има изба, включена в цената.
Възможност за закупуване на паркомясто или гараж в сградата.
Сградата е на етап пред Акт 16 (разрешение за ползване), с модерна визия, качествено строителство и добре поддържани общи части.
Имотът е подходящ както за семейно жилище, така и за инвестиция с цел отдаване под наем – районът е спокоен, с добра инфраструктура, бърз достъп до центъра на Варна и морето.
ID: 146000808
Контакт с продавача
xxx xxx xxx

