Бизнес
Цена на кв.м: 1189.19
Тип апартамент: 3 - стаен
Квадратура: 185 кв.м
Година на строителство: 2026 г.
Строителство: Тухла
Етаж: 6-ти
Брой етажи на сградата: 6
Последен етаж
Отопление: Електричество
Обзавеждане: Необзаведен
Състояние на сградата: В строеж
Преход: Без преход
Особености: асансьор, саниран, видеонаблюдение
Описание
Компания Х представя на Вашето внимание три стаен апартамент в Остромила!
ЗА ИНВЕСТИТОРА: Проектът се ръководи от лице с над 10 години отпит, което има пръст в едни от най-известните и луксозни жилищни комплекси, които след завършването си промениха Пловдив и София завинаги
-изпълнени с внимание към детайла и общи части на световно ниво, сградите сами говорят за себе си.
А новото им попълнение в Остромила ще се превърне в прецендент за кварталът с гледка към Родопите, в това сме убедени!
МЕСТОПОЛОЖЕНИЕ: На метри от улица Остромила, в близост до спирки и възлово кръстовище, от където преминават няколко автобусни линии. Достъпът до центъра с автомобил е само за минути.
Средата е благоприятна за млади семейства и отгледжането на деца- разполагате с частен двор и и поддържани общи части, където да се наслаждавате на слънчевите следобеди през топлите сезони или на чаша вино през студените.
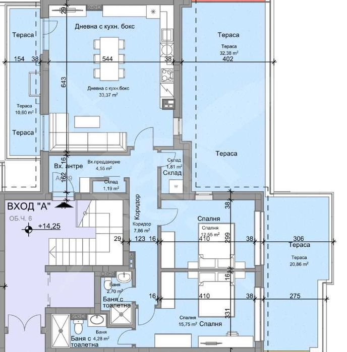
РАЗПРЕДЕЛЕНИЕ: Разполага с площ от 184,8кв.м. Състои се от: две спални, дневна с кухненски бокс, две бани с тоалетни, две тераси, два склада, входно преддверие и просторни коридори.
СРОК НА ИЗПЪЛНЕНИЕ: Ще бъде издаден с акт 16 в края на 2026 година, като към май 2025 година, сградата е на втора плоча. Сградата е на 5 етажа и има два входа.
Заповядайте да Ви го покажем. Използвайки нашите услуги Вие ще превърнете закупуването на новия си дом в едно приятно изживяване, ще получите персонален консултант, съдействие при кандидатстване за кредит от всички банки в България, интериорни дизайнери и екип, който да се погрижи за нужните документи по Вашата сделка. На Ваше разположение сме всеки ден, от понеделник до неделя от 09:00 до 20:00ч. Възползвайте се от безплатна консултация в наш офис, където ще ви спестим време и ще ви запознаем с всички актуални имоти в България, отговарящи на Вашето търсене. Свържете се с нас и цитирайте кода към имота: 979-28677
ЗА ИНВЕСТИТОРА: Проектът се ръководи от лице с над 10 години отпит, което има пръст в едни от най-известните и луксозни жилищни комплекси, които след завършването си промениха Пловдив и София завинаги
-изпълнени с внимание към детайла и общи части на световно ниво, сградите сами говорят за себе си.
А новото им попълнение в Остромила ще се превърне в прецендент за кварталът с гледка към Родопите, в това сме убедени!
МЕСТОПОЛОЖЕНИЕ: На метри от улица Остромила, в близост до спирки и възлово кръстовище, от където преминават няколко автобусни линии. Достъпът до центъра с автомобил е само за минути.
Средата е благоприятна за млади семейства и отгледжането на деца- разполагате с частен двор и и поддържани общи части, където да се наслаждавате на слънчевите следобеди през топлите сезони или на чаша вино през студените.
РАЗПРЕДЕЛЕНИЕ: Разполага с площ от 184,8кв.м. Състои се от: две спални, дневна с кухненски бокс, две бани с тоалетни, две тераси, два склада, входно преддверие и просторни коридори.
СРОК НА ИЗПЪЛНЕНИЕ: Ще бъде издаден с акт 16 в края на 2026 година, като към май 2025 година, сградата е на втора плоча. Сградата е на 5 етажа и има два входа.
Заповядайте да Ви го покажем. Използвайки нашите услуги Вие ще превърнете закупуването на новия си дом в едно приятно изживяване, ще получите персонален консултант, съдействие при кандидатстване за кредит от всички банки в България, интериорни дизайнери и екип, който да се погрижи за нужните документи по Вашата сделка. На Ваше разположение сме всеки ден, от понеделник до неделя от 09:00 до 20:00ч. Възползвайте се от безплатна консултация в наш офис, където ще ви спестим време и ще ви запознаем с всички актуални имоти в България, отговарящи на Вашето търсене. Свържете се с нас и цитирайте кода към имота: 979-28677
ID: 144335148
Контакт с продавача
xxx xxx xxx
