Бизнес
Цена на кв.м: 1687.50
Тип апартамент: 3 - стаен
Квадратура: 128 кв.м
Година на строителство: 2024 г.
Строителство: Тухла
Етаж: 2-ри
Брой етажи на сградата: 2
Последен етаж
Отопление: Електричество
Обзавеждане: Необзаведен
Състояние на сградата: Завършена
Преход: С преход
Особености: паркинг, саниран
Описание
код: A-749118
Innove Недвижими имоти представя атрактивен имот в сграда с АКТ 16 в един от най-предпочитаните райони на София Студентски град / Дианабад.
Разполага с:
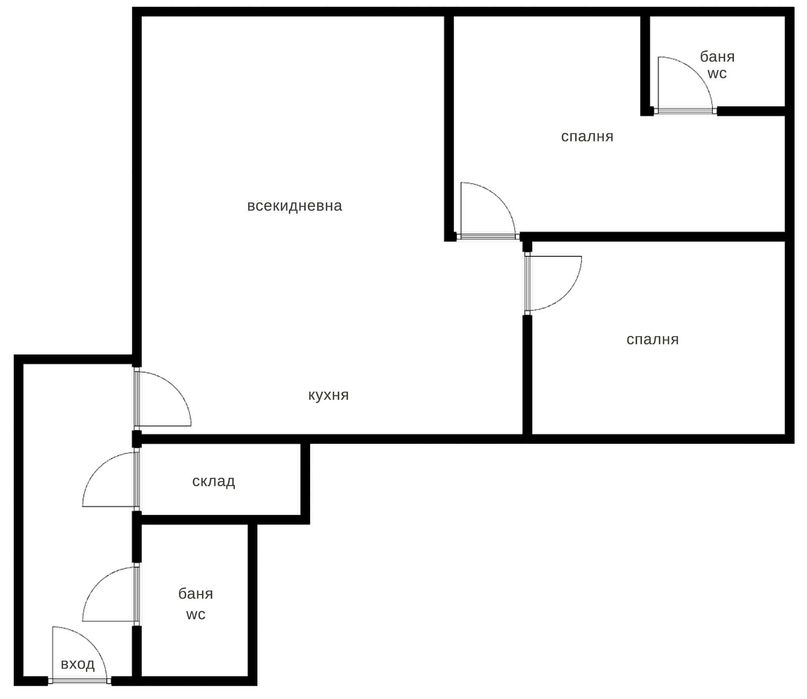
Преддверие 9.30м2
Склад 1.90м2
Баня (обща) 4.80м2
Дневна + трапезария + кухненски бокс 39.10м2
Спалня (родителска) 13.80м2 + 2.80м2 (лична баня) = 16.60м2
Спалня (детска) 16.70м2
Имотът се отличава с високи тавани от 3.20 м, което създава усещане за простор и светлина. Функционалното вътрешно пространство дава възможност за индивидуално разпределение според предпочитанията на бъдещия собственик подходящ както за собствен дом, така и за инвестиция с отлична възвращаемост.
Сградата е изпълнена с висок клас материали и прецизно завършени общи части.
Дограма: 4-камерен профил KMG 60 мм, стъклопакет 24 мм 4 сезона за по-добра топло- и шумоизолация.
Входна врата: блиндирана с две независими заключващи системи и по 3 активни шипа за максимална сигурност.
Локацията предлага бърз достъп до централни булеварди, университети, паркове и метро. В района има отлична инфраструктура и стабилно търсене на имоти под наем.
Имотът се предлага на шпакловка и замазка, с възможност за гъвкави решения при завършване.
За повече информация и огледи:
08********29
Innove Недвижими имоти представя атрактивен имот в сграда с АКТ 16 в един от най-предпочитаните райони на София Студентски град / Дианабад.
Разполага с:
Преддверие 9.30м2
Склад 1.90м2
Баня (обща) 4.80м2
Дневна + трапезария + кухненски бокс 39.10м2
Спалня (родителска) 13.80м2 + 2.80м2 (лична баня) = 16.60м2
Спалня (детска) 16.70м2
Имотът се отличава с високи тавани от 3.20 м, което създава усещане за простор и светлина. Функционалното вътрешно пространство дава възможност за индивидуално разпределение според предпочитанията на бъдещия собственик подходящ както за собствен дом, така и за инвестиция с отлична възвращаемост.
Сградата е изпълнена с висок клас материали и прецизно завършени общи части.
Дограма: 4-камерен профил KMG 60 мм, стъклопакет 24 мм 4 сезона за по-добра топло- и шумоизолация.
Входна врата: блиндирана с две независими заключващи системи и по 3 активни шипа за максимална сигурност.
Локацията предлага бърз достъп до централни булеварди, университети, паркове и метро. В района има отлична инфраструктура и стабилно търсене на имоти под наем.
Имотът се предлага на шпакловка и замазка, с възможност за гъвкави решения при завършване.
За повече информация и огледи:
08********29
ID: 146365986
Контакт с продавача
xxx xxx xxx
