Бизнес
Цена на кв.м: 1082.90
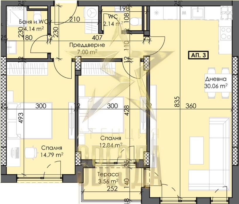
Тип апартамент: 3 - стаен
Квадратура: 104 кв.м
Година на строителство: 2025 г.
Строителство: Тухла
Етаж: 9-ти
Брой етажи на сградата: 10
Отопление: Електричество
Обзавеждане: Необзаведен
Състояние на сградата: Завършена
Преход: Без преход
Описание
**Представяме Ви изключителен имот за продажба в Пловдив, район Тракия** 
- **Модерна архитектура и елегантност**: Апартамент с модерна архитектура, включваща впечатляващи панорамни тераси и френски прозорци. Те гарантират изобилие от естествена светлина във всяко кътче на дома Ви.
- **Красива гледка**: Насладете се на великолепните гледки, които откриват панорамните тераси. Перфектно място за утринно кафе или вечерни събирания.
- **Доказан инвеститор**: Строителството е с гарантирано качество, благодарение на доказан инвеститор с множество успешно завършени обекти.
- **Паркиране без проблеми**: 100% осигурено паркиране за всички собственици и посетители.
- **Стратегическо местоположение**: Намира се в новоизграждащ се жилищен комплекс в район Тракия, известен със своята отлична инфраструктура и удобства.
- **В близост до търговски центрове**: Само на няколко минути от Мол Плаза, където можете да откриете най-добрите магазини, ресторанти и развлечения.
- **Удобен достъп до хранителни хипермаркети**: Никога няма да Ви липсват ежедневни стоки, благодарение на близостта до големи хранителни хипермаркети.
**За квартала:**
Район Тракия се развива интензивно, предлагащ на своите жители спокойствие и удобство в градска среда. Благодарение на добрите транспортни връзки и множество зелени площи, Тракия е предпочитано място за живот в Пловдив.
Този имот е идеален както за семейно жилище, така и за инвестиция. Не пропускайте възможността да станете част от тази развиваща се общност!
Агенция Звезда е доверен партньор на най-големите банкови институции в страната и съдейства за преференциални условия при нужда от кредитиране. Ще получите юридическо съдействие през целия процес на сделката, също и при подготовка на всички необходими документи.
- **Модерна архитектура и елегантност**: Апартамент с модерна архитектура, включваща впечатляващи панорамни тераси и френски прозорци. Те гарантират изобилие от естествена светлина във всяко кътче на дома Ви.
- **Красива гледка**: Насладете се на великолепните гледки, които откриват панорамните тераси. Перфектно място за утринно кафе или вечерни събирания.
- **Доказан инвеститор**: Строителството е с гарантирано качество, благодарение на доказан инвеститор с множество успешно завършени обекти.
- **Паркиране без проблеми**: 100% осигурено паркиране за всички собственици и посетители.
- **Стратегическо местоположение**: Намира се в новоизграждащ се жилищен комплекс в район Тракия, известен със своята отлична инфраструктура и удобства.
- **В близост до търговски центрове**: Само на няколко минути от Мол Плаза, където можете да откриете най-добрите магазини, ресторанти и развлечения.
- **Удобен достъп до хранителни хипермаркети**: Никога няма да Ви липсват ежедневни стоки, благодарение на близостта до големи хранителни хипермаркети.
**За квартала:**
Район Тракия се развива интензивно, предлагащ на своите жители спокойствие и удобство в градска среда. Благодарение на добрите транспортни връзки и множество зелени площи, Тракия е предпочитано място за живот в Пловдив.
Този имот е идеален както за семейно жилище, така и за инвестиция. Не пропускайте възможността да станете част от тази развиваща се общност!
Агенция Звезда е доверен партньор на най-големите банкови институции в страната и съдейства за преференциални условия при нужда от кредитиране. Ще получите юридическо съдействие през целия процес на сделката, също и при подготовка на всички необходими документи.
ID: 143122330
Контакт с продавача
xxx xxx xxx
