Бизнес
Цена на кв.м: 1347.83
Тип апартамент: 3 - стаен
Квадратура: 92 кв.м
Година на строителство: 2025 г.
Строителство: Тухла
Етаж: 4-ти
Брой етажи на сградата: 5
Отопление: Електричество
Обзавеждане: Необзаведен
Състояние на сградата: В строеж
Преход: Без преход
Особености: асансьор
Описание
**Продава се: Ново строителство, тристаен апартамент в кв. Бузлуджа, Велико Търново!**
Открийте своя нов дом или инвестиция във Велико Търново! Предлагаме ви просторен тристаен апартамент, разположен на четвърти етаж в модерна пететажна тухлена сграда, която ще бъде завършена през 2025 година. Сградата се изгражда с използване на висококачествени материали, което гарантира дълготрайност и комфорт.
**Цена:** 124000евро
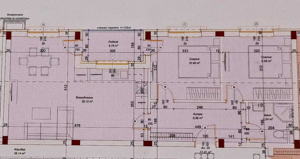
**Обща площ:** 92 кв.м
**Характеристики на имота:**
- **Брой стаи:** 3
- **Брой спални:** 2
- **Брой бани с тоалетни:** 1
- **Брой балкони:** 1 (Лоджия: 4,78 кв.м)
- **Асансьор:** Да
**Разпределение:**
- Антре: 8,58 кв.м
- Всекидневна: 29,12 кв.м
- Спалня 1: 9,98 кв.м
- Спалня 2: 10,49 кв.м
- Баня с тоалетна: 3,54 кв.м
**Екологични и модерни удобства:**
- Фотоволтаична електрическа централа, която ще произвежда чиста енергия
- Две станции за зареждане на електрически автомобили
**Изгодна инвестиционна възможност:** Сградата е дело на доказан строител и предлага високо качество на изключително изгодна цена. Остават само няколко свободни апартамента, така че побързайте да направите своето решение!
**За квартала:** Квартал Бузлуджа е един от най-развитите и предпочитани жилищни райони на Велико Търново. Тук ще намерите удобен достъп до магазини, училища и зелени площи, които ще направят ежедневието ви по-приятно и комфортно.
**Не пропускайте тази възможност!** Свържете се с нас, за да уредим оглед и да се възползвате от това изключително предложение още днес!
Открийте своя нов дом или инвестиция във Велико Търново! Предлагаме ви просторен тристаен апартамент, разположен на четвърти етаж в модерна пететажна тухлена сграда, която ще бъде завършена през 2025 година. Сградата се изгражда с използване на висококачествени материали, което гарантира дълготрайност и комфорт.
**Цена:** 124000евро
**Обща площ:** 92 кв.м
**Характеристики на имота:**
- **Брой стаи:** 3
- **Брой спални:** 2
- **Брой бани с тоалетни:** 1
- **Брой балкони:** 1 (Лоджия: 4,78 кв.м)
- **Асансьор:** Да
**Разпределение:**
- Антре: 8,58 кв.м
- Всекидневна: 29,12 кв.м
- Спалня 1: 9,98 кв.м
- Спалня 2: 10,49 кв.м
- Баня с тоалетна: 3,54 кв.м
**Екологични и модерни удобства:**
- Фотоволтаична електрическа централа, която ще произвежда чиста енергия
- Две станции за зареждане на електрически автомобили
**Изгодна инвестиционна възможност:** Сградата е дело на доказан строител и предлага високо качество на изключително изгодна цена. Остават само няколко свободни апартамента, така че побързайте да направите своето решение!
**За квартала:** Квартал Бузлуджа е един от най-развитите и предпочитани жилищни райони на Велико Търново. Тук ще намерите удобен достъп до магазини, училища и зелени площи, които ще направят ежедневието ви по-приятно и комфортно.
**Не пропускайте тази възможност!** Свържете се с нас, за да уредим оглед и да се възползвате от това изключително предложение още днес!
ID: 143905718
Контакт с продавача
xxx xxx xxx
Добавена 08 октомври 2025 г.
Тристаен Ново Строителство кв.Бузлуджа
124000 €
Потребител
Локация
гр. Велико Търново, Бузлуджа
Област Велико Търново
За този потребител