Бизнес
Цена на кв.м: 1620.48
Тип апартамент: 3 - стаен
Квадратура: 83 кв.м
Година на строителство: 2025 г.
Строителство: Тухла
Етаж: 4-ти
Брой етажи на сградата: 4
Последен етаж
Отопление: Електричество
Обзавеждане: Необзаведен
Състояние на сградата: В строеж
Преход: Без преход
Особености: асансьор
Описание
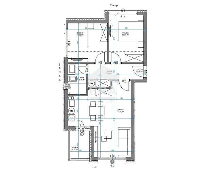
ЕКСКЛУЗИВНО! ЕРА Варна Тренд предлага за продажба тристаен югозападен апартамент с морска панорама, в новострояща се сграда на ул. Орхидея, на 500 м над бул. Христо Смирненски и хипермаркет Билла на ул. Подвис. Имотът е със застроена площ 70,64 кв.м (82,8 кв.м с общите части), разположен на четвърти етаж. Състои се от дневна с кухненски бокс (22,98 кв.м) и излаз на балкон (3,35 кв.м), две спални (10,02 кв.м и 10,59 кв.м), входно антре (6,95 кв.м) с ниша за перално помещение/килер и баня с тоалетна (3,76 кв.м). Изложението е юг (дневна) - запад/север (спални). Ще се открива красива морска панорама.
Жилището се продава необзаведено. Ще бъде завършено до степен БДС, с поставена ПВЦ дограма. Отоплението ще бъде с електричество.
Тристайният апартамент се намира на ул. Орхидея, в кв. Изгрев, на 500 м над бул. Христо Смирненски и хипермаркет Билла на ул. Подвис. Сградата е четириетажна, тухлена, с асансьор, на начален етап на строителство. Ще бъде въведена в експлоатация (Акт 16) през 2028 г. Има възможност за допълнително закупуване на открито паркомясто, на цена 21 000 евро. В сградата се предлагат и други тристайни жилища, също един двустаен и един четиристаен апартаменти. На пешеходно разстояние са още Военна болница на главния околовръстен път, Цветен квартал и кв. Левски, с детска ясла, детски градини, училища, Втори корпус на Икономически университет, спирки на градския транспорт.
Оферта №0222480
Жилището се продава необзаведено. Ще бъде завършено до степен БДС, с поставена ПВЦ дограма. Отоплението ще бъде с електричество.
Тристайният апартамент се намира на ул. Орхидея, в кв. Изгрев, на 500 м над бул. Христо Смирненски и хипермаркет Билла на ул. Подвис. Сградата е четириетажна, тухлена, с асансьор, на начален етап на строителство. Ще бъде въведена в експлоатация (Акт 16) през 2028 г. Има възможност за допълнително закупуване на открито паркомясто, на цена 21 000 евро. В сградата се предлагат и други тристайни жилища, също един двустаен и един четиристаен апартаменти. На пешеходно разстояние са още Военна болница на главния околовръстен път, Цветен квартал и кв. Левски, с детска ясла, детски градини, училища, Втори корпус на Икономически университет, спирки на градския транспорт.
Оферта №0222480
ID: 147484991
Контакт с продавача
xxx xxx xxx

