Бизнес
Цена на кв.м: 1636.99
Тип апартамент: 3 - стаен
Квадратура: 73 кв.м
Година на строителство: 2025 г.
Строителство: Тухла
Етаж: 3-ти
Брой етажи на сградата: 4
Отопление: Електричество
Обзавеждане: Необзаведен
Състояние на сградата: В строеж
Преход: С преход
Особености: асансьор, паркинг
Описание
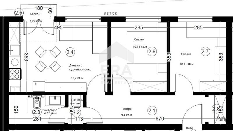
ЕКСКЛУЗИВНО! НАПРЕДНАЛ СТРОЕЖ! ЕРА Варна Тренд предлага за продажба тристаен апартамент в новострояща се сграда АСТРА, в жк Кайсиева градина, на 200 м от ОУ Стоян Михайловски и до Блок 226. Имотът е със застроена площ 62,7 кв.м (73,49 кв.м с общите части), разположен на трети етаж от общо 4 етажа. Състои се от входно антре (9,4 кв.м), дневна с кухненски бокс (17,7 кв.м) и излаз на балкон, две спални (по 10,11 кв.м всяка), килер/склад (1,48 кв.м), баня с тоалетна (4,27 кв.м) и перално помещение (1,31 кв.м). Изложението е изток.
Жилището се продава необзаведено. Ще бъде завършено до степен БДС, с поставена ПВЦ дограма. Отоплението ще бъде с електричество.
Тристайният апартамент се намира в четириетажна тухлена сграда с три тела, всяко с асаньор, на етап строеж на междинни етажи. Очаква се да бъде въведена в експлоатация през 2027 г. Предлагат се и други тристайни, както и двустайни жилища. Има възможност за допълнително закупуване на открито паркомясто на цена 10 500 евро или закрито паркомясто на цена 14 500 евро. В района има детска градина, основно училище, пазар, медицинска лаборатория, спирки на градския транспорт. На пешеходно разстояние е хипермаркет Метро.
Оферта №0222065
Жилището се продава необзаведено. Ще бъде завършено до степен БДС, с поставена ПВЦ дограма. Отоплението ще бъде с електричество.
Тристайният апартамент се намира в четириетажна тухлена сграда с три тела, всяко с асаньор, на етап строеж на междинни етажи. Очаква се да бъде въведена в експлоатация през 2027 г. Предлагат се и други тристайни, както и двустайни жилища. Има възможност за допълнително закупуване на открито паркомясто на цена 10 500 евро или закрито паркомясто на цена 14 500 евро. В района има детска градина, основно училище, пазар, медицинска лаборатория, спирки на градския транспорт. На пешеходно разстояние е хипермаркет Метро.
Оферта №0222065
ID: 146068595
Контакт с продавача
xxx xxx xxx

