Бизнес
Цена на кв.м: 1682.80
Тип апартамент: 3 - стаен
Квадратура: 93 кв.м
Година на строителство: 2025 г.
Строителство: Тухла
Етаж: 3-ти
Брой етажи на сградата: 8
Последен етаж
Отопление: Електричество
Обзавеждане: Необзаведен
Състояние на сградата: В строеж
Преход: Без преход
Особености: асансьор
Описание
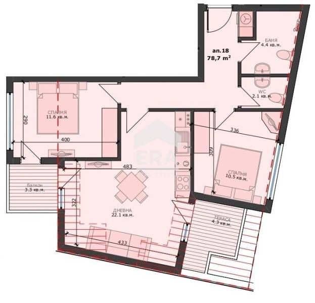
ЕРА Лайф обявява за продажба тристаен апартамент с площ 93,46 кв.м. (застроена площ 78,7 кв.м.), разположен на трети етаж от осем в новострояща се сграда. Имотът е със следното разпределение: входно антре, дневен тракт с открит кухненски бокс - 22,1 кв.м. с излаз на тераса - 4,3 кв.м., две спални (10,5 и 11,6 кв.м.), баня - 4,4 кв.м. и тоалетна - 21 кв.м. Виж раздел "План". Имотът е със статут на апартамент.
Изложение на имота: юг. Апартаментът ще бъде завършен по БДС стандарт - на шпакловка и замазка с поставена ПВЦ дограма и входна блиндирана врата. Отоплението е на ток. Продава се без обзавеждане.
Обявеният за продажба апартамент е част от сграда с монолитна стоманенобетонна конструкция, с носещи и преградни стени, изградени от тухли, с външна топлоизолация фибран и минерална мазилка. Общите части ще бъдат луксозно изпълнени с гранитогрес. Функционира асансьор с автоматични врати. Районът около сградата е озеленен.
Районът е с добра локация - пешеходно разстояние до централната градска част. В близост има основно училище, детски градини, търговски обекти, заведения за обществено хранене, Колхозен пазар. Имотът е подходящ както за живеене, така и за инвестиция. Код: 0708425
Оферта №0708425
Изложение на имота: юг. Апартаментът ще бъде завършен по БДС стандарт - на шпакловка и замазка с поставена ПВЦ дограма и входна блиндирана врата. Отоплението е на ток. Продава се без обзавеждане.
Обявеният за продажба апартамент е част от сграда с монолитна стоманенобетонна конструкция, с носещи и преградни стени, изградени от тухли, с външна топлоизолация фибран и минерална мазилка. Общите части ще бъдат луксозно изпълнени с гранитогрес. Функционира асансьор с автоматични врати. Районът около сградата е озеленен.
Районът е с добра локация - пешеходно разстояние до централната градска част. В близост има основно училище, детски градини, търговски обекти, заведения за обществено хранене, Колхозен пазар. Имотът е подходящ както за живеене, така и за инвестиция. Код: 0708425
Оферта №0708425
ID: 147557444
Контакт с продавача
xxx xxx xxx

