Бизнес
Цена на кв.м: 1410.12
Тип апартамент: 3 - стаен
Квадратура: 90 кв.м
Година на строителство: 2025 г.
Строителство: Тухла
Етаж: 5-ти
Брой етажи на сградата: 6
Отопление: Електричество
Обзавеждане: Необзаведен
Състояние на сградата: В строеж
Преход: Без преход
Особености: асансьор
Описание
ЕРА Парадайс Ви предлага за продажба апартаменти с една, две и три самостоятелни спални в новострояща се сграда в кв. Аспарухово, гр. Варна. На четири жилищни етажа са разположени 15 двустайни, 16 тристайни и 1 четиристаен апартамента. Модерен комфорт с невероятна гледка към морето и Варна! Всички апартаменти са просторни и функционални.
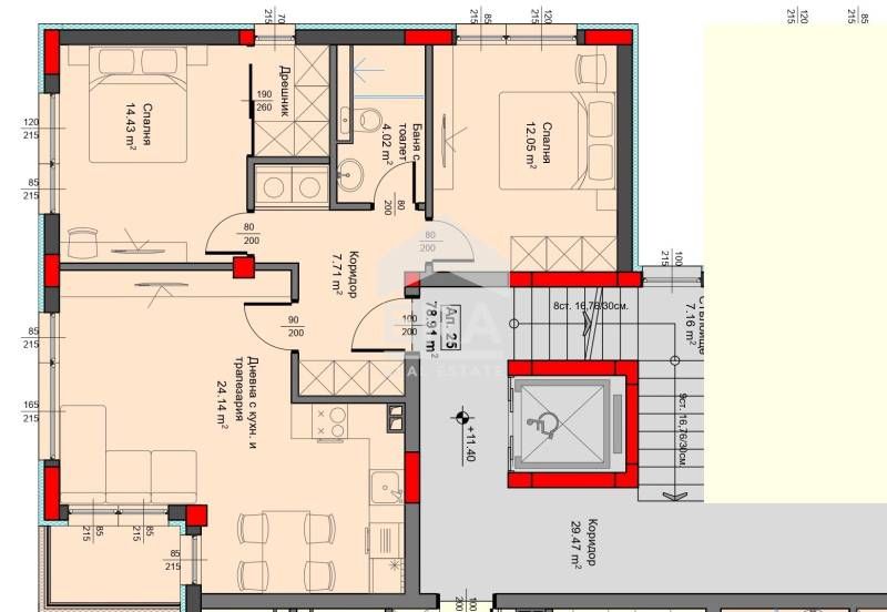
Апартаментът, който представяме в тази обява, е тристаен. Разпределението е функционално и удобно - просторна дневна с кухненска част и трапезария (24.14 кв. м), две самостоятелни спални (съответно с площ 14.43 и 12.05 кв. м), баня с тоалетна (4.02 кв. м), коридор (7.71 кв. м) и балкон.
Все още имате възможност да резервирате апартамент на етаж, с разпределение и изложение, според Вашите индивидуални нужди. Апартаментите ще бъдат предавани по БДС.
Схемите на плащане са гъвкави.
На разположение на живущите са 19 подземни и 18 дворни паркоместа.
Комплексът е проектиран с най-модерните фасадни решения. Строителната компания е с богато портфолио и изпълнение с бързи темпове, по съвременни технологии и с безкомпромисно качество. Проектът е изграден с модерни методики и внимание към всеки детайл.
Оферта №7100059
Апартаментът, който представяме в тази обява, е тристаен. Разпределението е функционално и удобно - просторна дневна с кухненска част и трапезария (24.14 кв. м), две самостоятелни спални (съответно с площ 14.43 и 12.05 кв. м), баня с тоалетна (4.02 кв. м), коридор (7.71 кв. м) и балкон.
Все още имате възможност да резервирате апартамент на етаж, с разпределение и изложение, според Вашите индивидуални нужди. Апартаментите ще бъдат предавани по БДС.
Схемите на плащане са гъвкави.
На разположение на живущите са 19 подземни и 18 дворни паркоместа.
Комплексът е проектиран с най-модерните фасадни решения. Строителната компания е с богато портфолио и изпълнение с бързи темпове, по съвременни технологии и с безкомпромисно качество. Проектът е изграден с модерни методики и внимание към всеки детайл.
Оферта №7100059
ID: 143691594
Контакт с продавача
xxx xxx xxx

