Бизнес
Цена на кв.м: 3601.07
Тип апартамент: 3 - стаен
Квадратура: 101 кв.м
Година на строителство: 2025 г.
Строителство: Тухла
Етаж: 7-ми
Брой етажи на сградата: 10
Последен етаж
Отопление: ТЕЦ
Обзавеждане: Необзаведен
Състояние на сградата: В строеж
Преход: Без преход
Особености: асансьор
Описание
ЕРА ГОЛД представя тристаен апартамент за продажба в луксозната бутикова сграда разположена в централната част на София, в изключително комуникативен район - в близост до парк „Свети Никола“, супермаркет BILLA, метростанция „Опълченска“, ул. „Пиротска“ и 18. СУ „Уилям Гладстон“.
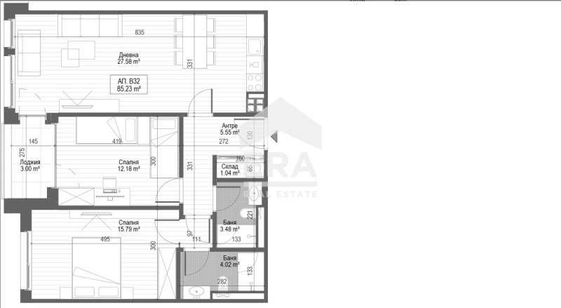
Разпределение: входно антре, просторна дневна с кухненски бокс с излаз към балкон, спалня с излаз към балкон, втора спалня, склад и две бани с тоалетна.
Обща площ: 101.03кв.м.
Застроена площ: 85.23кв.м
Изложение: ЗАПАД/ЮГ
Отоплението е планирано на ТЕЦ и климатици. Сградата е проектирана с разнообразие от жилища - двустайни, тристайни, четиристайни, многостайни апартаменти и мезонет с озеленена тераса, с различни квадратури и оптимални разпределения. Предвидена е възможност за индивидуални проектни решения според изискванията на бъдещите собственици. Част от апартаментите разкриват панорамни гледки към Витоша, Стара планина и центъра на София.
Състояние и технически характеристики
-Сградата е изпълнена с монолитна стоманобетонна конструкция, външни тухлени зидове с дебелина 25 см и вътрешни преградни стени – 12 см. Топлоизолацията е от каменна минерална вата с дебелина 12 см, осигуряваща отлична енергийна ефективност. Фасадата ще бъде изпълнена с клинкерни тухли – изключително устойчива система на замръзване, механични въздействия и атмосферни условия.
-Дограмата е Reynaers ConceptSystem 77 – алуминиева система с прекъснат термомост, комбинирана с троен стъклопакет Saint Gobain, гарантиращ висока шумо- и топлоизолация. Монтирани са дръжки HOPPE Toulon SecuForte, осигуряващи повишена защита срещу взлом.
Сграда и среда
-Жилищен комплекс с богато озеленена паркова зона с площ над 800 кв.м, включваща разнообразна растителност, детски площадки и зони за отдих. Комплексът разполага с подземни нива с общо 111 гаражи и паркоместа, с възможност за инсталиране на зарядни станции за електромобили. Осигурени са постоянно видеонаблюдение и охрана, гарантиращи спокойствието на живущите.
Сградата се намира на локация с отлична инфраструктура и бърз достъп до градски транспорт, търговски обекти, учебни заведения и зелени площи.
-Етап на строителство:
Очакван Акт 14: август 2026 г.
Очакван Акт 16 (Разрешение за ползване): първа половина на 2027 г.
-Схема на плащане
30% – при подписване на предварителен договор (преди Акт 14)
60% – при получаване на Акт 14
10% – при получаване на Акт 16 (Разрешение за ползване)
CreditERA предоставя безплатна консултация и съдействие при финансиране на избрания от Вас имот от всички водещи банки в страната и ще договори най-добрите условия за вас!
Оферта №4062727
Разпределение: входно антре, просторна дневна с кухненски бокс с излаз към балкон, спалня с излаз към балкон, втора спалня, склад и две бани с тоалетна.
Обща площ: 101.03кв.м.
Застроена площ: 85.23кв.м
Изложение: ЗАПАД/ЮГ
Отоплението е планирано на ТЕЦ и климатици. Сградата е проектирана с разнообразие от жилища - двустайни, тристайни, четиристайни, многостайни апартаменти и мезонет с озеленена тераса, с различни квадратури и оптимални разпределения. Предвидена е възможност за индивидуални проектни решения според изискванията на бъдещите собственици. Част от апартаментите разкриват панорамни гледки към Витоша, Стара планина и центъра на София.
Състояние и технически характеристики
-Сградата е изпълнена с монолитна стоманобетонна конструкция, външни тухлени зидове с дебелина 25 см и вътрешни преградни стени – 12 см. Топлоизолацията е от каменна минерална вата с дебелина 12 см, осигуряваща отлична енергийна ефективност. Фасадата ще бъде изпълнена с клинкерни тухли – изключително устойчива система на замръзване, механични въздействия и атмосферни условия.
-Дограмата е Reynaers ConceptSystem 77 – алуминиева система с прекъснат термомост, комбинирана с троен стъклопакет Saint Gobain, гарантиращ висока шумо- и топлоизолация. Монтирани са дръжки HOPPE Toulon SecuForte, осигуряващи повишена защита срещу взлом.
Сграда и среда
-Жилищен комплекс с богато озеленена паркова зона с площ над 800 кв.м, включваща разнообразна растителност, детски площадки и зони за отдих. Комплексът разполага с подземни нива с общо 111 гаражи и паркоместа, с възможност за инсталиране на зарядни станции за електромобили. Осигурени са постоянно видеонаблюдение и охрана, гарантиращи спокойствието на живущите.
Сградата се намира на локация с отлична инфраструктура и бърз достъп до градски транспорт, търговски обекти, учебни заведения и зелени площи.
-Етап на строителство:
Очакван Акт 14: август 2026 г.
Очакван Акт 16 (Разрешение за ползване): първа половина на 2027 г.
-Схема на плащане
30% – при подписване на предварителен договор (преди Акт 14)
60% – при получаване на Акт 14
10% – при получаване на Акт 16 (Разрешение за ползване)
CreditERA предоставя безплатна консултация и съдействие при финансиране на избрания от Вас имот от всички водещи банки в страната и ще договори най-добрите условия за вас!
Оферта №4062727
ID: 146955836
Контакт с продавача
xxx xxx xxx

