Бизнес
Цена на кв.м: 1781.91
Тип апартамент: 3 - стаен
Квадратура: 94 кв.м
Година на строителство: 2025 г.
Строителство: Тухла
Етаж: 1-ви
Брой етажи на сградата: 10
Последен етаж
Отопление: Електричество
Обзавеждане: Необзаведен
Състояние на сградата: В строеж
Преход: Без преход
Особености: асансьор, паркинг
Описание
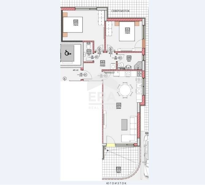
ЕРА Варна Тренд предлага за продажба тристаен апартамент в нова жилищна сграда на начален етап на строителство. Намира се в кв. Виница, в близост до обръщача на автобусите. Имотът е със застроена площ 82,5 кв.м (93,98 кв.м с общите части), разположен на първи партерен етаж от общо 10 етажа. Състои се от просторна дневна с кухненски бокс (28 кв.м) и излаз на собствен двор/тераса (11 кв.м), две спални (15 кв.м и 12 кв.м), коридор (7,17 кв.м), баня с тоалетна (4,43 кв.м) и самостоятелна тоалетна (2 кв.м). Изложението е югоизток (дневна) - североизток (спални).
Жилището се продава необзаведено. Ще бъде завършено до степен БДС, с поставена ПВЦ дограма. Сградата ще бъде газифицирана.
Тристайният апартамент се намира в десететажна тухлена сграда с асансьор, на начален етап на строителство. Очаква се да бъде въведена в експлоатация през 2027 г. Има възможност за допълнително закупуване на закрито паркомясто - 25 000 евро.
Оферта №0221934
Жилището се продава необзаведено. Ще бъде завършено до степен БДС, с поставена ПВЦ дограма. Сградата ще бъде газифицирана.
Тристайният апартамент се намира в десететажна тухлена сграда с асансьор, на начален етап на строителство. Очаква се да бъде въведена в експлоатация през 2027 г. Има възможност за допълнително закупуване на закрито паркомясто - 25 000 евро.
Оферта №0221934
ID: 145742571
Контакт с продавача
xxx xxx xxx

