Бизнес
Цена на кв.м: 1101.38
Тип апартамент: 3 - стаен
Квадратура: 87 кв.м
Година на строителство: 2026 г.
Строителство: Тухла
Етаж: 3-ти
Брой етажи на сградата: 4
Отопление: Електричество
Обзавеждане: Необзаведен
Състояние на сградата: В строеж
Преход: Без преход
Описание
НОВОСТРОЯЩА СГРАДА В БУТИКОВ КОМПЛЕКС
КАЧЕСТВЕНО СТРОИТЕЛСТВО И ФУНКЦИОНАЛЕН ДИЗАЙН
РАЗСРОЧЕНО ПЛАЩАНЕ БЕЗ ОСКЪПЯВАНЕ
ЛОКАЦИЯ:
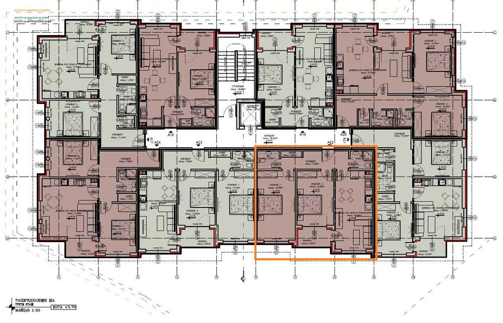
Агенция за недвижими имоти „МИРА“, Ви предлага тристаен апартамент №22 в новострояща се жилищна сграда, разположена в комплекс от три бутикови многофамилни сгради в кв. Воеводски, гр. Хасково. Имотът се намира на тиха и живописна локация с директен достъп до ул. Панорама, сред много зеленина, нови и поддържани къщи.
ХАРАКТЕРИСТИКИ НА АПАРТАМЕНТ №22
Площ: 87,11 кв.м
Разпределение:
Антре/коридор
Просторна всекидневна с кухненски бокс и излаз на тераса
Спалня с излаз на тераса Детска спалня с излаз на тераса
Баня с тоалетна
Килер
ЗА СГРАДАТА:
Комплексът включва тристайни, двустайни и апартаменти със самостоятелен двор, просторни балкони и панорамни тераси.
Разположен на четири жилищни етажа, с общо 1550 кв.м озеленена площ – идеален за семейства с деца и хора, търсещи спокойствие.
Функционални разпределения, съобразени със съвременните изисквания за комфорт.
Един вход, контрол на достъпа и видеонаблюдение за сигурността на живущите.
Апартаментите се издават на шпакловка и замазка, с възможност за индивидуално завършване.
Възможност за допълнително закупуване на паркоместа и гаражи:
Външно паркомясто: 15 000 лв
Подземно паркомясто: 25 000 лв
Подземен гараж: 30 000 лв
ПРЕДИМСТВА НА ЛОКАЦИЯТА:
Близост до парк „Ямача“ – идеално за разходки и спорт.
Магазини, училища и детски градини в непосредствена близост.
Бърз достъп до центъра на града и основни пътни артерии.
ВАЖНО:
ГЪВКАВА СХЕМА ЗА ПЛАЩАНЕ – без оскъпяване!
Цените ще се повишават с напредването на строителството!
Инвестирайте сега и спестете!
КАЧЕСТВЕНО СТРОИТЕЛСТВО И ФУНКЦИОНАЛЕН ДИЗАЙН
РАЗСРОЧЕНО ПЛАЩАНЕ БЕЗ ОСКЪПЯВАНЕ
ЛОКАЦИЯ:
Агенция за недвижими имоти „МИРА“, Ви предлага тристаен апартамент №22 в новострояща се жилищна сграда, разположена в комплекс от три бутикови многофамилни сгради в кв. Воеводски, гр. Хасково. Имотът се намира на тиха и живописна локация с директен достъп до ул. Панорама, сред много зеленина, нови и поддържани къщи.
ХАРАКТЕРИСТИКИ НА АПАРТАМЕНТ №22
Площ: 87,11 кв.м
Разпределение:
Антре/коридор
Просторна всекидневна с кухненски бокс и излаз на тераса
Спалня с излаз на тераса Детска спалня с излаз на тераса
Баня с тоалетна
Килер
ЗА СГРАДАТА:
Комплексът включва тристайни, двустайни и апартаменти със самостоятелен двор, просторни балкони и панорамни тераси.
Разположен на четири жилищни етажа, с общо 1550 кв.м озеленена площ – идеален за семейства с деца и хора, търсещи спокойствие.
Функционални разпределения, съобразени със съвременните изисквания за комфорт.
Един вход, контрол на достъпа и видеонаблюдение за сигурността на живущите.
Апартаментите се издават на шпакловка и замазка, с възможност за индивидуално завършване.
Възможност за допълнително закупуване на паркоместа и гаражи:
Външно паркомясто: 15 000 лв
Подземно паркомясто: 25 000 лв
Подземен гараж: 30 000 лв
ПРЕДИМСТВА НА ЛОКАЦИЯТА:
Близост до парк „Ямача“ – идеално за разходки и спорт.
Магазини, училища и детски градини в непосредствена близост.
Бърз достъп до центъра на града и основни пътни артерии.
ВАЖНО:
ГЪВКАВА СХЕМА ЗА ПЛАЩАНЕ – без оскъпяване!
Цените ще се повишават с напредването на строителството!
Инвестирайте сега и спестете!
ID: 145966569
Контакт с продавача
xxx xxx xxx
Добавена 07 ноември 2025 г.
Тристаен апартамент в Панорама Парк 3, кв. Воеводски, гр. Хасково
95820 €
Потребител
Локация
гр. Хасково, Воеводски
Област Хасково
За този потребител
