Бизнес
Цена на кв.м: 1463.33
Тип апартамент: 3 - стаен
Квадратура: 102 кв.м
Година на строителство: 2025 г.
Строителство: Тухла
Етаж: 6-ти
Брой етажи на сградата: 6
Последен етаж
Отопление: Електричество
Обзавеждане: Необзаведен
Състояние на сградата: В строеж
Преход: Без преход
Особености: асансьор, гараж
Описание
Предлагаме за продажба тристаен апартамент в новострояща се сграда в стария град на Поморие, на пешеходно разстояние от плажа, центъра, магазини и заведения.
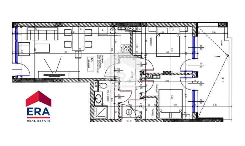
Имотът е с жилищна площ 86,9 кв.м и обща площ 102,94 кв.м и се състои от две спални, всекидневна ,баня с тоалетна, склад и две тераси.
Сградата е на етап Акт 14, с планирано завършване през 2027 г. Апартаментът се издава „до ключ“: подови настилки в коридор-гранитогрес, бяла санитария в банята и WC, кухня-гранитогрес, дневна и спалня - ламинат.
Имотът се предлага на атрактивна цена, подходящ както за ваканционен имот, така и за инвестиция.
По време на строителството се използват високотехнологични процеси за отводняване на целия обект. В основите са вложени съвременни висококачествени материали, като сертифициран водоплътен бетон клас XC, който осигурява висока устойчивост и водонепроницаема структура. Добавени са кристализиращи добавки за повишаване водоплътността на бетона и затварящи възникнали микропукнатини. Желязната арматура, формираща скелета на сградата, също е с доказан произход, което придава сила, устойчивост и гаранция за стабилност и издържливост. С цел защита от влага са положени трипластова италианска битумна мембрана Flexobit 5mm, което осигурява надеждност и много по-дълъг живот на конструкцията на сградата, предвидена хидроизолация по всичките външни тераси. Външните зидове са проектирани с висок клас австрийски керамични тухли с дебелина 25 см, с дишаща и устойчива на вятър клетъчна структура, които ще бъдат облицовани с висок клас топлоизолационни плочи 10 см, положени с висококачествено лепило, което от своя страна подобрява изолационните свойства и осигурява прохлада в летните дни и топли зимни месеци. Фасадата ще е изпълнена със силиконова мазилка, която придава характерен стил на сградата. Стълбищата са предвидени да бъдат облицовани с висококачествен гранитогрес и монтирани алуминиеви парапети. Предвидени са безшумни хидравлични асансьори, съгласно най-съвремените изисквания за безопасно пътуване.
Апартаментите са с нисък процент общи части, което означава повече пространство за вас и вашето семейство. Проектирани са с мисъл за функционалност и удобство на обитателите. Правилните форми създават усещане за хармония и ред, а големите прозорци предават естествена светлина, превръщайки всеки дом в уютно убежище.
Имотът се предлага на атрактивна цена, подходящ както за ваканционен имот, така и за инвестиция.
Всеки имот от ЕРА е лично проверен и заснет от наш консултант.
CREDITERA е регистриран кредитен посредник към БНБ и предоставя всички видове кредити към всички банки безплатно!
Заявете финансиране за избрания от Вас имот още днес – ние ще Ви помогнем с усмивка и професионално отношение!
Над 360 консултанти на ЕРА вече реализират мечтите на клиентите си – станете и Вие част от нас!
Оферта №2302195
Имотът е с жилищна площ 86,9 кв.м и обща площ 102,94 кв.м и се състои от две спални, всекидневна ,баня с тоалетна, склад и две тераси.
Сградата е на етап Акт 14, с планирано завършване през 2027 г. Апартаментът се издава „до ключ“: подови настилки в коридор-гранитогрес, бяла санитария в банята и WC, кухня-гранитогрес, дневна и спалня - ламинат.
Имотът се предлага на атрактивна цена, подходящ както за ваканционен имот, така и за инвестиция.
По време на строителството се използват високотехнологични процеси за отводняване на целия обект. В основите са вложени съвременни висококачествени материали, като сертифициран водоплътен бетон клас XC, който осигурява висока устойчивост и водонепроницаема структура. Добавени са кристализиращи добавки за повишаване водоплътността на бетона и затварящи възникнали микропукнатини. Желязната арматура, формираща скелета на сградата, също е с доказан произход, което придава сила, устойчивост и гаранция за стабилност и издържливост. С цел защита от влага са положени трипластова италианска битумна мембрана Flexobit 5mm, което осигурява надеждност и много по-дълъг живот на конструкцията на сградата, предвидена хидроизолация по всичките външни тераси. Външните зидове са проектирани с висок клас австрийски керамични тухли с дебелина 25 см, с дишаща и устойчива на вятър клетъчна структура, които ще бъдат облицовани с висок клас топлоизолационни плочи 10 см, положени с висококачествено лепило, което от своя страна подобрява изолационните свойства и осигурява прохлада в летните дни и топли зимни месеци. Фасадата ще е изпълнена със силиконова мазилка, която придава характерен стил на сградата. Стълбищата са предвидени да бъдат облицовани с висококачествен гранитогрес и монтирани алуминиеви парапети. Предвидени са безшумни хидравлични асансьори, съгласно най-съвремените изисквания за безопасно пътуване.
Апартаментите са с нисък процент общи части, което означава повече пространство за вас и вашето семейство. Проектирани са с мисъл за функционалност и удобство на обитателите. Правилните форми създават усещане за хармония и ред, а големите прозорци предават естествена светлина, превръщайки всеки дом в уютно убежище.
Имотът се предлага на атрактивна цена, подходящ както за ваканционен имот, така и за инвестиция.
Всеки имот от ЕРА е лично проверен и заснет от наш консултант.
CREDITERA е регистриран кредитен посредник към БНБ и предоставя всички видове кредити към всички банки безплатно!
Заявете финансиране за избрания от Вас имот още днес – ние ще Ви помогнем с усмивка и професионално отношение!
Над 360 консултанти на ЕРА вече реализират мечтите на клиентите си – станете и Вие част от нас!
Оферта №2302195
ID: 147317081
Контакт с продавача
xxx xxx xxx

