Бизнес
Цена на кв.м: 1753.37
Тип апартамент: 3 - стаен
Квадратура: 98 кв.м
Година на строителство: 2025 г.
Строителство: Тухла
Етаж: 2-ри
Брой етажи на сградата: 6
Последен етаж
Отопление: Електричество
Обзавеждане: Необзаведен
Състояние на сградата: В строеж
Преход: Без преход
Особености: асансьор
Описание
ERA Парадайс Ви предлага за продажба просторен тристаен апартамент в новострояща се сграда в кв. Аспарухово, гр. Варна, само на 7 минути с автомобил от центъра на града.
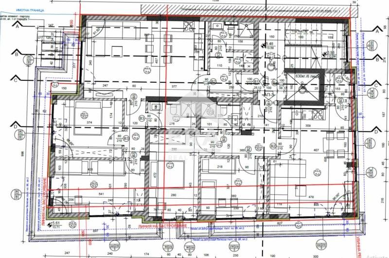
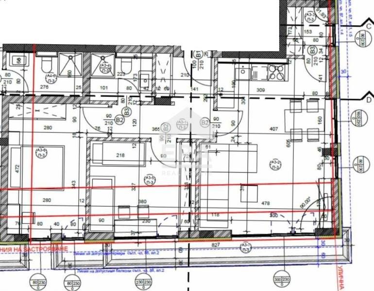
Апартаментът е разположен на втори жилищен етаж (трети реален) и се състои от дневна с кухненска част (28 кв. м), две самостоятелни спални (съответно с площ (14 кв. м и 12.20 кв. м), баня с тоалетна в едно помещение (4.00 кв. м), килер (2 кв. м), балкон (6 кв.м.) с излаз от всички стаи и антре (8 кв. м). Жилището ще бъде завършено по БДС.
Сградата ще бъде въведена в експлоатация в края на 2026-та година.
Към апартамента може да бъде закупено открито паркомясто във вътрешния двор на сградата на цена от 19000 евро.
Сградата е с модерна и изчистена визия. Ще бъде изпълнена с висококачествени материали. Локацията на имота, в централната част на кв. Аспарухово, в близост до плажа, Парка, центъра, училища и детски градини, я прави едно от най-желаните и привлекателни места за живеене в квартала. В близост са разположени автобусна спирка, фитнес, лекарски кабинети, обществени услуги, заведения за хранене и търговски обекти, както и всички необходими удобства.
Свържете се с нас за повече информация и огледи!
Оферта №7100208
Апартаментът е разположен на втори жилищен етаж (трети реален) и се състои от дневна с кухненска част (28 кв. м), две самостоятелни спални (съответно с площ (14 кв. м и 12.20 кв. м), баня с тоалетна в едно помещение (4.00 кв. м), килер (2 кв. м), балкон (6 кв.м.) с излаз от всички стаи и антре (8 кв. м). Жилището ще бъде завършено по БДС.
Сградата ще бъде въведена в експлоатация в края на 2026-та година.
Към апартамента може да бъде закупено открито паркомясто във вътрешния двор на сградата на цена от 19000 евро.
Сградата е с модерна и изчистена визия. Ще бъде изпълнена с висококачествени материали. Локацията на имота, в централната част на кв. Аспарухово, в близост до плажа, Парка, центъра, училища и детски градини, я прави едно от най-желаните и привлекателни места за живеене в квартала. В близост са разположени автобусна спирка, фитнес, лекарски кабинети, обществени услуги, заведения за хранене и търговски обекти, както и всички необходими удобства.
Свържете се с нас за повече информация и огледи!
Оферта №7100208
ID: 144768836
Контакт с продавача
xxx xxx xxx

