Бизнес
Цена на кв.м: 2452.99
Тип апартамент: 3 - стаен
Квадратура: 117 кв.м
Година на строителство: 2025 г.
Строителство: Тухла
Етаж: 2-ри
Брой етажи на сградата: 8
Последен етаж
Отопление: Газ
Обзавеждане: Необзаведен
Състояние на сградата: Завършена
Преход: Без преход
Описание
КУПИ ЗА EUR 1075 на месец!
За да не изпуснете този имот, обадете се сега и цитирайте този код: 27107.
"БЕСТ СЕЛЪРС" предлага на Вашето внимание тристаен апартамент в кв. "Витоша".
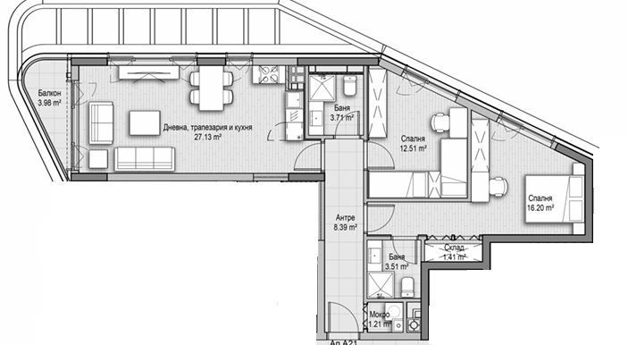
РАЗПРЕДЕЛЕНИЕ: Входно антре, просторна всекидневна с кухненски бокс, две спални, два санитарни възела, мокро помещение, складово помещение и тераса.
СГРАДА: Сградата се очаква да бъде въведена в експлоатация през март 2028 година. Етаж 2/8.
СХЕМА НА ПЛАЩАНЕ:
Вариант 1: 20% при сключване на предварителен договор, 80% на акт 15, когато се прехвърля собствеността;
Вариант 2: 20% при сключване на предварителен договор, 70% на акт 15 и прехвърляне на собственост, 10% на акт 16;
Вариант 3: със собствени средства - 20% при сключване на предварителен договор, 40% на акт 14, 40% на акт 15 при прехвърляне на собственост.
ЛОКАЦИЯ: кв. "Витоша". Апартаментът се намира в новострояща се сграда, разположена на една от предпочитаните локации в столицата. На пешеходно разстояние от Зоологическа градина, Ловен парк, Централна ветеринарна клиника, ДГ 175 "Слънчеви лъчи" и Посолство на Сирия. В непосредствена близост до Борисовата градина, Британско училище в София и ЧСУ "Константин-Кирил Философ". Районът е комуникативен, разполага с различни търговски обекти, заведения, услуги и спирки на градски транспорт. Свободно междублоково пространство за паркиране. Локацията осигурява бърз достъп до бул. ”Симеоновско шосе".
---
"БЕСТ СЕЛЪРС" е Вашият партньор при сключването на сделка с недвижим имот от първия оглед до финалния подпис. Екипът ни от професионалисти е твърдо решен да промени представата Ви за пазара на недвижими имоти и да Ви остави с приятни емоции след приключването на една от най-важните сделки в живота Ви. Можете да разчитате на нас за ПЪЛНО съдействие в търговските преговори, абсолютно прозрачна обстойна проверка на историята на имота за целия период, консултация и набавяне на пълния пакет документация, необходими за финализиране. На купувачите, разчитащи на банков кредит сме готови да осигурим НАПЪЛНО БЕЗПЛАТНО професионално кредитно обслужване от водещи НЕЗАВИСИМИ кредитни посредници. ОДОБРЕНИЕ ДО 24 часа.
За да не изпуснете този имот, обадете се сега и цитирайте този код: 27107.
"БЕСТ СЕЛЪРС" предлага на Вашето внимание тристаен апартамент в кв. "Витоша".
РАЗПРЕДЕЛЕНИЕ: Входно антре, просторна всекидневна с кухненски бокс, две спални, два санитарни възела, мокро помещение, складово помещение и тераса.
СГРАДА: Сградата се очаква да бъде въведена в експлоатация през март 2028 година. Етаж 2/8.
СХЕМА НА ПЛАЩАНЕ:
Вариант 1: 20% при сключване на предварителен договор, 80% на акт 15, когато се прехвърля собствеността;
Вариант 2: 20% при сключване на предварителен договор, 70% на акт 15 и прехвърляне на собственост, 10% на акт 16;
Вариант 3: със собствени средства - 20% при сключване на предварителен договор, 40% на акт 14, 40% на акт 15 при прехвърляне на собственост.
ЛОКАЦИЯ: кв. "Витоша". Апартаментът се намира в новострояща се сграда, разположена на една от предпочитаните локации в столицата. На пешеходно разстояние от Зоологическа градина, Ловен парк, Централна ветеринарна клиника, ДГ 175 "Слънчеви лъчи" и Посолство на Сирия. В непосредствена близост до Борисовата градина, Британско училище в София и ЧСУ "Константин-Кирил Философ". Районът е комуникативен, разполага с различни търговски обекти, заведения, услуги и спирки на градски транспорт. Свободно междублоково пространство за паркиране. Локацията осигурява бърз достъп до бул. ”Симеоновско шосе".
---
"БЕСТ СЕЛЪРС" е Вашият партньор при сключването на сделка с недвижим имот от първия оглед до финалния подпис. Екипът ни от професионалисти е твърдо решен да промени представата Ви за пазара на недвижими имоти и да Ви остави с приятни емоции след приключването на една от най-важните сделки в живота Ви. Можете да разчитате на нас за ПЪЛНО съдействие в търговските преговори, абсолютно прозрачна обстойна проверка на историята на имота за целия период, консултация и набавяне на пълния пакет документация, необходими за финализиране. На купувачите, разчитащи на банков кредит сме готови да осигурим НАПЪЛНО БЕЗПЛАТНО професионално кредитно обслужване от водещи НЕЗАВИСИМИ кредитни посредници. ОДОБРЕНИЕ ДО 24 часа.
ID: 146094200
Контакт с продавача
xxx xxx xxx
