Бизнес
Цена на кв.м: 2561.90
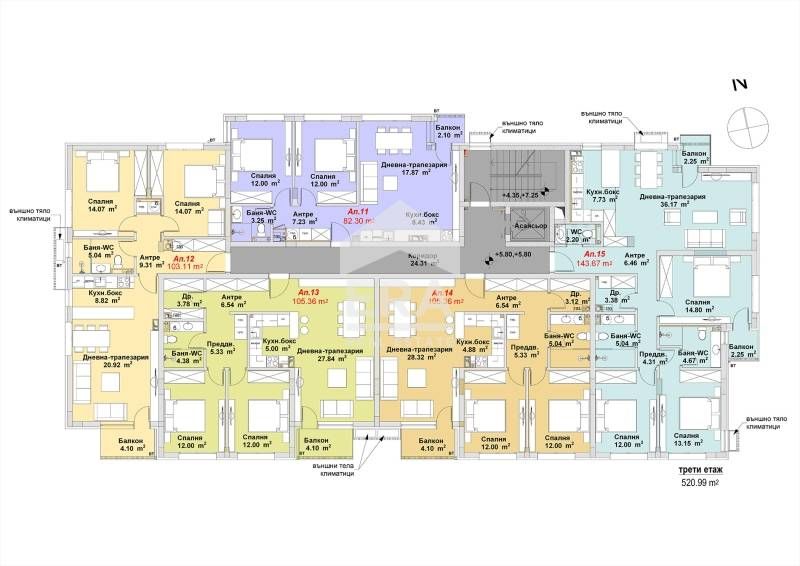
Тип апартамент: 3 - стаен
Квадратура: 105 кв.м
Година на строителство: 2025 г.
Строителство: Тухла
Етаж: 2-ри
Брой етажи на сградата: 3
Отопление: Електричество
Обзавеждане: Необзаведен
Състояние на сградата: В строеж
Преход: Без преход
Особености: асансьор, гараж
Описание
ERA Invest има удоволствието да Ви представи новострояща се луксозна сграда в най - хубавата част на м - т Гърдова.
На Вашето внимание е тристаен апартамент със застроена площ от 91, 88 кв.м. и обща площ от 105, 87 кв.м.
Апартаментът е разположен на втори надпартерен етаж с южно изложение.
Предлагаме и други тристайни и четеристайни апартаменти в същата сграда. Апартаментите са идеални както за живеене, така и за отдаване под наем.
Сградата е на етап КОТА БИЛО. Планирано завършване - края на 2025 г.
Районът е богато озеленен с естествена среда, разположен в полите на Витоша, до главни пътни артерии. Комуникацията с града се извършва лесно и удобно посредством ул. Александър Пушкин и Околовръстен път.
Общите части на сградата ще бъдат луксозно изпълнени и оборудвани с гранит, дървена ламперия и луксозен хидравличен асансьор. Апартаментите са проектирани по европейски стандарти, което определя един по-добър жилищен обем и предоставя усещането за много простор и слънчева светлина. Предвидена е шумоизолация, прозорците ще бъдат оборудвани с шесткамерна дограма с трислоен стъклопакет и К стъкло, шумо и топлоизолация. Проектът е с богато озеленени общи части и самостоятелна паркова среда с детски кът.
Още при проектиране на сградата са заложени най-модерните технологии и съвременни материали, които ще бъдат използвани в процеса на строителството, за да се създаде висок стандарт, уют и спокойствие на живущите в комплекса.
Сградата ще бъде построена и завършена, съгласно най-високите стандарти:
* фасадно лед осветление и декоративно градинско осветление, което да очертае парцела и зелените площи;
* система за контрол на достъпа към сградата и подземния гараж;
* система за видеонаблюдение което обхваща периметъра около сградата;
* видеодомофонна система с контрол на достъп с карта или чипове;
* СОТ система за всеки апартамент;
* електронни водомери при които цялата информация ще се сканира от входа на сградата;
* изводи за електрически щори за всеки прозорец в жилищната част;
* изводи за климатици във всяка стая и изводи за поставяне на лири;
* блиндирани врати.
Отопление: Изводи за климатици във всяка стая
Изолация: Сградите са топлоизолирани с 10 см EPS изолация. Покривите са топлоизолирани с XPS изолация 10 см и двойно хидроизолирани. Всички тераси също са хидроизолирани.
Стени: ограждащите и преградните стени са тухлени, при спазване на БДС с гарантирано качество на материалите. Заложени са висококачествените тухли Wienerberger. Фасадните стени са комбинация от полимерна мазилка и естествен камък.
Дограма: Дограмата е с трислоен стъклопакет с К стъкло профил. Най-качественото решение за вашия уют през различните сезони.
Входни врати: блиндирани.
Инсталации: Към всяко жилище са осигурени звънчева, телефонна и видеодомофонна инсталации, мрежа за включване на кабелна телевизия и интернет.
Енергийна ефективност: Постигането на ниски енергийни разходи е приоритет в съвременните проекти. Максимална енергийна ефективност с качествена изолация, материали и детайли.
Ако имате нужда от кредит, можем да ви предложим напълно безплатна професионална кредитна консултация и цялостно обслужване осигуряващо за вас най-добрите условия предлагани в момента на пазара. ERA е регистриран към БНБ кредитен посредник.
Оферта №6400161
На Вашето внимание е тристаен апартамент със застроена площ от 91, 88 кв.м. и обща площ от 105, 87 кв.м.
Апартаментът е разположен на втори надпартерен етаж с южно изложение.
Предлагаме и други тристайни и четеристайни апартаменти в същата сграда. Апартаментите са идеални както за живеене, така и за отдаване под наем.
Сградата е на етап КОТА БИЛО. Планирано завършване - края на 2025 г.
Районът е богато озеленен с естествена среда, разположен в полите на Витоша, до главни пътни артерии. Комуникацията с града се извършва лесно и удобно посредством ул. Александър Пушкин и Околовръстен път.
Общите части на сградата ще бъдат луксозно изпълнени и оборудвани с гранит, дървена ламперия и луксозен хидравличен асансьор. Апартаментите са проектирани по европейски стандарти, което определя един по-добър жилищен обем и предоставя усещането за много простор и слънчева светлина. Предвидена е шумоизолация, прозорците ще бъдат оборудвани с шесткамерна дограма с трислоен стъклопакет и К стъкло, шумо и топлоизолация. Проектът е с богато озеленени общи части и самостоятелна паркова среда с детски кът.
Още при проектиране на сградата са заложени най-модерните технологии и съвременни материали, които ще бъдат използвани в процеса на строителството, за да се създаде висок стандарт, уют и спокойствие на живущите в комплекса.
Сградата ще бъде построена и завършена, съгласно най-високите стандарти:
* фасадно лед осветление и декоративно градинско осветление, което да очертае парцела и зелените площи;
* система за контрол на достъпа към сградата и подземния гараж;
* система за видеонаблюдение което обхваща периметъра около сградата;
* видеодомофонна система с контрол на достъп с карта или чипове;
* СОТ система за всеки апартамент;
* електронни водомери при които цялата информация ще се сканира от входа на сградата;
* изводи за електрически щори за всеки прозорец в жилищната част;
* изводи за климатици във всяка стая и изводи за поставяне на лири;
* блиндирани врати.
Отопление: Изводи за климатици във всяка стая
Изолация: Сградите са топлоизолирани с 10 см EPS изолация. Покривите са топлоизолирани с XPS изолация 10 см и двойно хидроизолирани. Всички тераси също са хидроизолирани.
Стени: ограждащите и преградните стени са тухлени, при спазване на БДС с гарантирано качество на материалите. Заложени са висококачествените тухли Wienerberger. Фасадните стени са комбинация от полимерна мазилка и естествен камък.
Дограма: Дограмата е с трислоен стъклопакет с К стъкло профил. Най-качественото решение за вашия уют през различните сезони.
Входни врати: блиндирани.
Инсталации: Към всяко жилище са осигурени звънчева, телефонна и видеодомофонна инсталации, мрежа за включване на кабелна телевизия и интернет.
Енергийна ефективност: Постигането на ниски енергийни разходи е приоритет в съвременните проекти. Максимална енергийна ефективност с качествена изолация, материали и детайли.
Ако имате нужда от кредит, можем да ви предложим напълно безплатна професионална кредитна консултация и цялостно обслужване осигуряващо за вас най-добрите условия предлагани в момента на пазара. ERA е регистриран към БНБ кредитен посредник.
Оферта №6400161
ID: 142435575
Контакт с продавача
xxx xxx xxx
Добавена Днес в 10:22 ч.
Тристаен апартамент в луксозна сграда в м - т Гърдова глава
526118.27 лв. / 269000 €
Потребител
Локация
гр. София, м-т Гърдова глава
Област София-град
За този потребител