Бизнес
Цена на кв.м: 3000
Тип апартамент: 3 - стаен
Квадратура: 98 кв.м
Година на строителство: 2026 г.
Строителство: Тухла
Етаж: 2-ри
Брой етажи на сградата: 5
Последен етаж
Отопление: Електричество
Обзавеждане: Необзаведен
Състояние на сградата: Завършена
Преход: Без преход
Описание
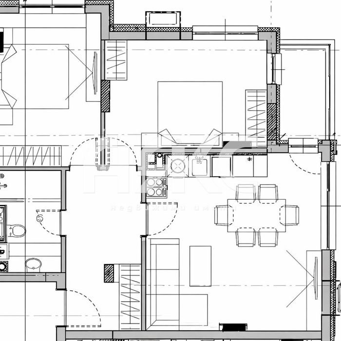
Предлагаме за продажба просторен тристаен апартамент в кв. Манастирски ливади, разположен на 2-ри етаж от 5 в тухлена сграда, която е на етап Акт 15.
Жилището е с площ от 98 кв.м и предлага функционално разпределение: хол с кухненски бокс, две спални, баня с тоалетна и тераса, осигуряваща естествена светлина и пространство за отдих. Към имота има и мокро помещение, удобно за домакински нужди.
Сградата е изградена с качествени материали и ще разполага с добре поддържани общи части. Районът е предпочитан за живеене – с отлична инфраструктура, в близост до градски транспорт, магазини, училища, детски градини и бърз достъп до основни пътни връзки.
Апартаментът предоставя чудесна възможност за създаване на дом по собствен вкус или за инвестиция в район с постоянно търсене и дългосрочен потенциал.
За повече информация и за организиране на оглед, не се колебайте да се свържете с нас. Ще се радваме да ви предоставим всички детайли и да уговорим удобен час за посещение на имота!
Отговорен брокер - Йоан Мариянов
08******92
Жилището е с площ от 98 кв.м и предлага функционално разпределение: хол с кухненски бокс, две спални, баня с тоалетна и тераса, осигуряваща естествена светлина и пространство за отдих. Към имота има и мокро помещение, удобно за домакински нужди.
Сградата е изградена с качествени материали и ще разполага с добре поддържани общи части. Районът е предпочитан за живеене – с отлична инфраструктура, в близост до градски транспорт, магазини, училища, детски градини и бърз достъп до основни пътни връзки.
Апартаментът предоставя чудесна възможност за създаване на дом по собствен вкус или за инвестиция в район с постоянно търсене и дългосрочен потенциал.
За повече информация и за организиране на оглед, не се колебайте да се свържете с нас. Ще се радваме да ви предоставим всички детайли и да уговорим удобен час за посещение на имота!
Отговорен брокер - Йоан Мариянов
08******92
ID: 146636232
Контакт с продавача
xxx xxx xxx
Добавена 07 януари 2026 г.
Тристаен апартамент в кв. Манастирски ливади - АКТ 15
575014.02 лв. / 294000 €
Потребител
Локация
гр. София, Манастирски ливади
Област София-град