Бизнес
Цена на кв.м: 2823.81
Тип апартамент: 3 - стаен
Квадратура: 84 кв.м
Година на строителство: 2026 г.
Строителство: Тухла
Етаж: Партер
Брой етажи на сградата: 5
Последен етаж
Отопление: Газ
Обзавеждане: Необзаведен
Състояние на сградата: Завършена
Преход: Без преход
Описание
КУПИ ЗА EUR 889 на месец!
За да не изпуснете този имот, обадете се сега и цитирайте този код: 25091.
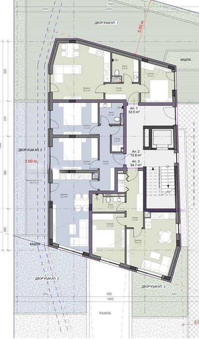
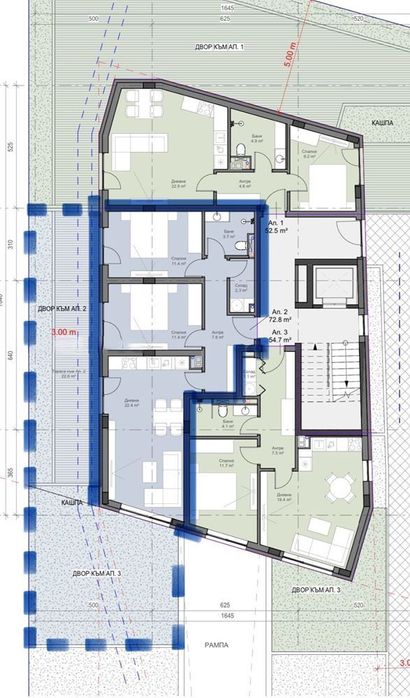
'БЕСТ СЕЛЪРС' предлага на Вашето внимание тристаен апартамент в кв. "Горна Баня".
РАЗПРЕДЕЛЕНИЕ: Входно антре, просторна всекидневна с кухненски бокс, две спални, санитарен възел и мокро помещение. Към апартамента има двор - 76м2.
СГРАДА: Сградата се очаква да бъде въведена в експлоатация пред 2026 година. Към момента е на акт 14. Етаж 0/5.
ЛОКАЦИЯ: кв. "Горна баня". Невероятна гледка към Витоша! Апартаментът се намира в новострояща се сграда с АКТ 14. В непосредствена близост до СБАЛ по ортопедия "Проф. Бойчо Бойчев", метростанция "Горна баня" и Нов Български Университет, частни детски градини, Италианския лицей и големи хранителни вериги. Районът се характеризира със зелени пространства и тиха жилищна среда. Бърз и лесен достъп до бул. "Никола Петков".
---
'БЕСТ СЕЛЪРС' е Вашият партньор при сключването на сделка с недвижим имот от първия оглед до финалния подпис. Екипът ни от професионалисти е твърдо решен да промени представата Ви за пазара на недвижими имоти и да Ви остави с приятни емоции след приключването на една от най-важните сделки в живота Ви. Можете да разчитате на нас за ПЪЛНО съдействие в търговските преговори, абсолютно прозрачна обстойна проверка на историята на имота за целия период, консултация и набавяне на пълния пакет документация, необходими за финализиране. На купувачите, разчитащи на банков кредит сме готови да осигурим НАПЪЛНО БЕЗПЛАТНО професионално кредитно обслужване от водещи НЕЗАВИСИМИ кредитни посредници. ОДОБРЕНИЕ ДО 24 часа.
За да не изпуснете този имот, обадете се сега и цитирайте този код: 25091.
'БЕСТ СЕЛЪРС' предлага на Вашето внимание тристаен апартамент в кв. "Горна Баня".
РАЗПРЕДЕЛЕНИЕ: Входно антре, просторна всекидневна с кухненски бокс, две спални, санитарен възел и мокро помещение. Към апартамента има двор - 76м2.
СГРАДА: Сградата се очаква да бъде въведена в експлоатация пред 2026 година. Към момента е на акт 14. Етаж 0/5.
ЛОКАЦИЯ: кв. "Горна баня". Невероятна гледка към Витоша! Апартаментът се намира в новострояща се сграда с АКТ 14. В непосредствена близост до СБАЛ по ортопедия "Проф. Бойчо Бойчев", метростанция "Горна баня" и Нов Български Университет, частни детски градини, Италианския лицей и големи хранителни вериги. Районът се характеризира със зелени пространства и тиха жилищна среда. Бърз и лесен достъп до бул. "Никола Петков".
---
'БЕСТ СЕЛЪРС' е Вашият партньор при сключването на сделка с недвижим имот от първия оглед до финалния подпис. Екипът ни от професионалисти е твърдо решен да промени представата Ви за пазара на недвижими имоти и да Ви остави с приятни емоции след приключването на една от най-важните сделки в живота Ви. Можете да разчитате на нас за ПЪЛНО съдействие в търговските преговори, абсолютно прозрачна обстойна проверка на историята на имота за целия период, консултация и набавяне на пълния пакет документация, необходими за финализиране. На купувачите, разчитащи на банков кредит сме готови да осигурим НАПЪЛНО БЕЗПЛАТНО професионално кредитно обслужване от водещи НЕЗАВИСИМИ кредитни посредници. ОДОБРЕНИЕ ДО 24 часа.
ID: 145663430
Контакт с продавача
xxx xxx xxx