Бизнес
Цена на кв.м: 1196.13
Тип апартамент: 3 - стаен
Квадратура: 103 кв.м
Година на строителство: 2027 г.
Строителство: Тухла
Етаж: 4-ти
Брой етажи на сградата: 16
Последен етаж
Отопление: Електричество
Обзавеждане: Необзаведен
Състояние на сградата: В строеж
Преход: Без преход
Описание
Компания „X“ представя на Вашето внимание тристаен апартамент в кв. Кършияка.
МЕСТОПОЛОЖЕНИЕ: Квартал Кършияка е един от най-големите и популярни квартали в град Пловдив. Кършияка е жилищен и търговски квартал, където може да се намерят множество жилищни сгради, магазини, ресторанти, кафенета, учебни заведения, паркове и други удобства..
СТРОИТЕЛСТВО: Апартаментът се намира на 4-ти етаж в сграда ново строителство.
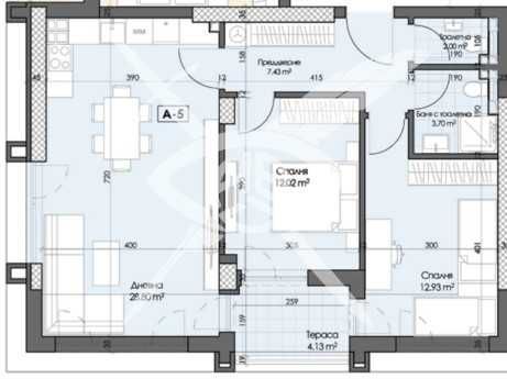
РАЗПРЕДЕЛЕНИЕ: Жилището разполага с площ от 103 кв.м. разпределена по следния начин: дневна с трапезария и кухненски бокс, две спални, баня с тоалетна, самостоятелна тоалетна и тераса.
СЪСТОЯНИЕ: В строеж.
Заповядайте да Ви го покажем. Използвайки нашите услуги Вие ще превърнете закупуването на новия си дом в едно приятно изживяване, ще получите персонален консултант, съдействие при кандидатстване за кредит от всички банки в България, интериорни дизайнери и екип, който да се погрижи за нужните документи по Вашата сделка. На Ваше разположение сме всеки ден, от понеделник до неделя от 09:00 до 20:00ч. Възползвайте се от безплатна консултация в наш офис, където ще ви спестим време и ще ви запознаем с всички актуални имоти в България, отговарящи на Вашето търсене. Свържете се с нас на 08******90 или на 08******90 и цитирайте кода към имота: 1049- 30160
МЕСТОПОЛОЖЕНИЕ: Квартал Кършияка е един от най-големите и популярни квартали в град Пловдив. Кършияка е жилищен и търговски квартал, където може да се намерят множество жилищни сгради, магазини, ресторанти, кафенета, учебни заведения, паркове и други удобства..
СТРОИТЕЛСТВО: Апартаментът се намира на 4-ти етаж в сграда ново строителство.
РАЗПРЕДЕЛЕНИЕ: Жилището разполага с площ от 103 кв.м. разпределена по следния начин: дневна с трапезария и кухненски бокс, две спални, баня с тоалетна, самостоятелна тоалетна и тераса.
СЪСТОЯНИЕ: В строеж.
Заповядайте да Ви го покажем. Използвайки нашите услуги Вие ще превърнете закупуването на новия си дом в едно приятно изживяване, ще получите персонален консултант, съдействие при кандидатстване за кредит от всички банки в България, интериорни дизайнери и екип, който да се погрижи за нужните документи по Вашата сделка. На Ваше разположение сме всеки ден, от понеделник до неделя от 09:00 до 20:00ч. Възползвайте се от безплатна консултация в наш офис, където ще ви спестим време и ще ви запознаем с всички актуални имоти в България, отговарящи на Вашето търсене. Свържете се с нас на 08******90 или на 08******90 и цитирайте кода към имота: 1049- 30160
ID: 143940797
Контакт с продавача
xxx xxx xxx
