Бизнес
Цена на кв.м: 1275.23
Тип апартамент: 3 - стаен
Квадратура: 109 кв.м
Година на строителство: 2024 г.
Строителство: Тухла
Етаж: 9-ти
Брой етажи на сградата: 9
Последен етаж
Отопление: Електричество
Обзавеждане: Необзаведен
Състояние на сградата: В строеж
Преход: Без преход
Описание
Компания Х представя на Вашето внимание тристаен апартамент в Хоризонт.
МЕСТОПОЛОЖЕНИЕ: Намира се в спокойна част на района, в близост до всичко
необходимо за еднно домакинство, както и спирки на градски транспорт и
учебни заведения.
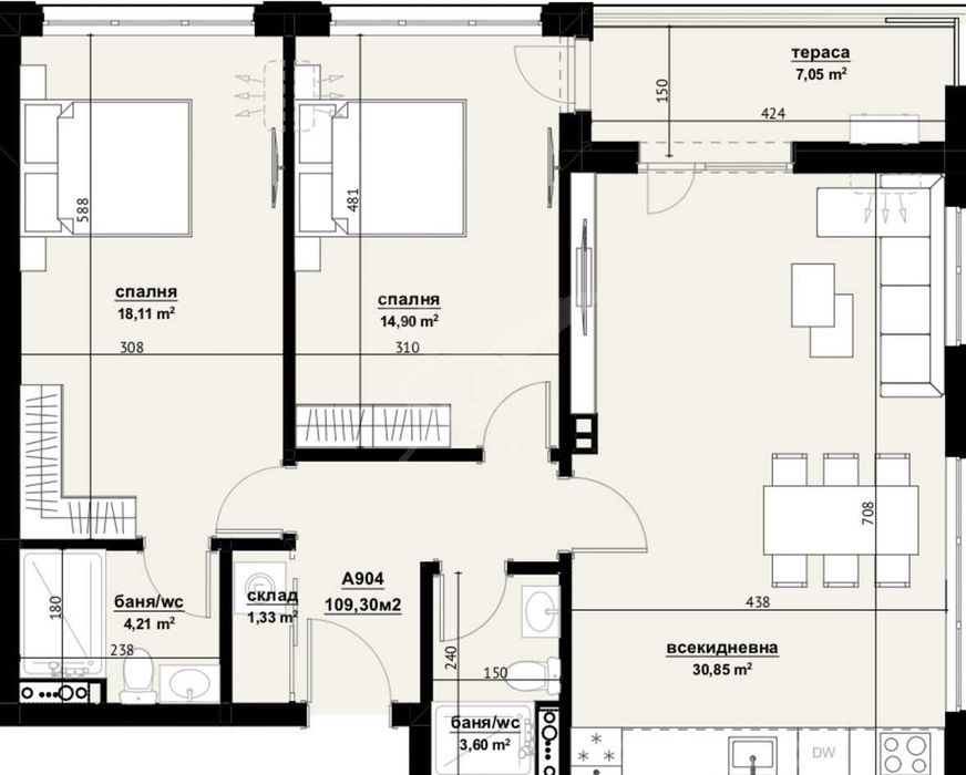
СТРОИТЕЛСТВО: Апартаментът е разположен на девети етаж, тухла.
РАЗПРЕДЕЛЕНИЕ: Жилището разполага с площ 109.30 кв.м., състои се от хол с
кухненски бокс, две спални, две бани с тоалетна, склад и тераса.
СЪСТОЯНИЕ: Имотът се предлага както на тапа, така и на степен до ключ,
което Ви дава възможността да го усторите по Ваш вкус и да го превърнете
в мечтания дом!
Заповядайте да Ви го покажем. Използвайки нашите услуги Вие ще
превърнете закупуването на новия си дом в едно приятно изживяване, ще
получите персонален консултант, съдействие при кандидатстване за кредит
от всички банки в България, интериорни дизайнери и екип, който да се
погрижи за нужните документи по Вашата сделка. На Ваше разположение сме
всеки ден, от понеделник до неделя от 09:00 до 20:00ч. Възползвайте се
от безплатна консултация в наш офис, където ще ви спестим време и ще ви
запознаем с всички актуални имоти в България, отговарящи на Вашето
търсене. Свържете се с нас и цитирайте
кода към имота: 799 - 23906
МЕСТОПОЛОЖЕНИЕ: Намира се в спокойна част на района, в близост до всичко
необходимо за еднно домакинство, както и спирки на градски транспорт и
учебни заведения.
СТРОИТЕЛСТВО: Апартаментът е разположен на девети етаж, тухла.
РАЗПРЕДЕЛЕНИЕ: Жилището разполага с площ 109.30 кв.м., състои се от хол с
кухненски бокс, две спални, две бани с тоалетна, склад и тераса.
СЪСТОЯНИЕ: Имотът се предлага както на тапа, така и на степен до ключ,
което Ви дава възможността да го усторите по Ваш вкус и да го превърнете
в мечтания дом!
Заповядайте да Ви го покажем. Използвайки нашите услуги Вие ще
превърнете закупуването на новия си дом в едно приятно изживяване, ще
получите персонален консултант, съдействие при кандидатстване за кредит
от всички банки в България, интериорни дизайнери и екип, който да се
погрижи за нужните документи по Вашата сделка. На Ваше разположение сме
всеки ден, от понеделник до неделя от 09:00 до 20:00ч. Възползвайте се
от безплатна консултация в наш офис, където ще ви спестим време и ще ви
запознаем с всички актуални имоти в България, отговарящи на Вашето
търсене. Свържете се с нас и цитирайте
кода към имота: 799 - 23906
ID: 142341799
Контакт с продавача
xxx xxx xxx
