Бизнес
Цена на кв.м: 721.14
Тип апартамент: 3 - стаен
Квадратура: 147 кв.м
Година на строителство: 2026 г.
Строителство: Тухла
Етаж: 5-ти
Брой етажи на сградата: 5
Последен етаж
Отопление: Електричество
Обзавеждане: Необзаведен
Състояние на сградата: В строеж
Преход: Без преход
Описание
Директно от строител.
Без комисиона от купувача.
Предлагаме Ви чудесен тристаен апартамент в новострояща се сграда в гр. Айтос. Панорама.
Атрактивно местоположение.
Апартаментът е разположен на последният етаж с прекрасна панорама, състои се от:
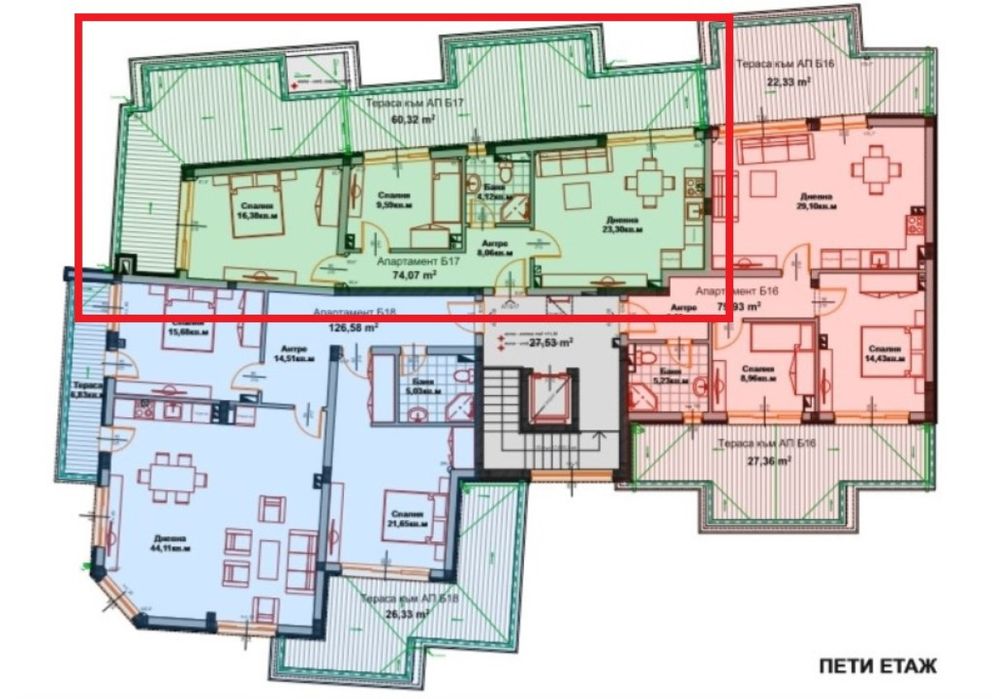
- Всекидневна с обособени кът за хранене и кухня, спалня, баня с тоалетна, коридор - 74,07 кв.м.
- Просторна тераса - 60,32 кв.м.
- Склад в сутерена - 2,38 кв.м.
- Общи части - 9,74 св.м.
Степен на завършеност - на тапа.
В сградата ще има асансьор.
Начало на строителството - 2023 год.
Срок за завършване - 2026 год.
Възможност за закупуване на паркомясто.
Предлагаме и други апартаменти двустайни и тристайни в същата сграда.
**Можем да организираме оглед на имота в удобно за вас време, като за целта се свържете с нас на посочените телефони и цитирате този код: ДП-48774.
**Агенция Ем Джи Естейт е член на НСНИ и администратор на лични данни.
**Преди огледа се провежда среща в нашия офис, за да се запознаем с изискванията Ви и за да оформим документи съгласно ЗЗД и ЗМИП.
**По време на огледа се подписва Протокол за оглед.
**За този имот не се дължи комисион към агенцията.
**Предлагаме Ви юридическо съдействие през целия процес на покупката,
**Лицензиран кредитен консултант ще Ви съдейства при банково кредитиране.
Без комисиона от купувача.
Предлагаме Ви чудесен тристаен апартамент в новострояща се сграда в гр. Айтос. Панорама.
Атрактивно местоположение.
Апартаментът е разположен на последният етаж с прекрасна панорама, състои се от:
- Всекидневна с обособени кът за хранене и кухня, спалня, баня с тоалетна, коридор - 74,07 кв.м.
- Просторна тераса - 60,32 кв.м.
- Склад в сутерена - 2,38 кв.м.
- Общи части - 9,74 св.м.
Степен на завършеност - на тапа.
В сградата ще има асансьор.
Начало на строителството - 2023 год.
Срок за завършване - 2026 год.
Възможност за закупуване на паркомясто.
Предлагаме и други апартаменти двустайни и тристайни в същата сграда.
**Можем да организираме оглед на имота в удобно за вас време, като за целта се свържете с нас на посочените телефони и цитирате този код: ДП-48774.
**Агенция Ем Джи Естейт е член на НСНИ и администратор на лични данни.
**Преди огледа се провежда среща в нашия офис, за да се запознаем с изискванията Ви и за да оформим документи съгласно ЗЗД и ЗМИП.
**По време на огледа се подписва Протокол за оглед.
**За този имот не се дължи комисион към агенцията.
**Предлагаме Ви юридическо съдействие през целия процес на покупката,
**Лицензиран кредитен консултант ще Ви съдейства при банково кредитиране.
ID: 146586782
Контакт с продавача
xxx xxx xxx
Добавена 04 януари 2026 г.
Тристаен апартамент в гр. Айтос - 146,51 кв.м.
207333.63 лв. / 106008 €
Потребител
Локация
гр. Айтос
Област Бургас