Бизнес
Цена на кв.м: 1157.66
Тип апартамент: 3 - стаен
Квадратура: 111 кв.м
Година на строителство: 2026 г.
Строителство: Тухла
Етаж: 7-ми
Брой етажи на сградата: 10
Последен етаж
Отопление: Електричество
Обзавеждане: Необзаведен
Състояние на сградата: В строеж
Преход: Без преход
Описание
Компания `Х` представя на Вашето внимание тристаен апартамент в Тракия .
МЕСТОПОЛОЖЕНИЕ: Тракия е един от най-зелените и модерни квартали на Пловдив, с отлично развита инфраструктура, множество паркове, спортни площадки и широки междублокови пространства. Районът предлага разнообразие от магазини, училища, детски градини и удобен градски транспорт. Благодарение на подредената среда и модерното строителство, Тракия е предпочитан квартал както за семейства, така и за млади хора.
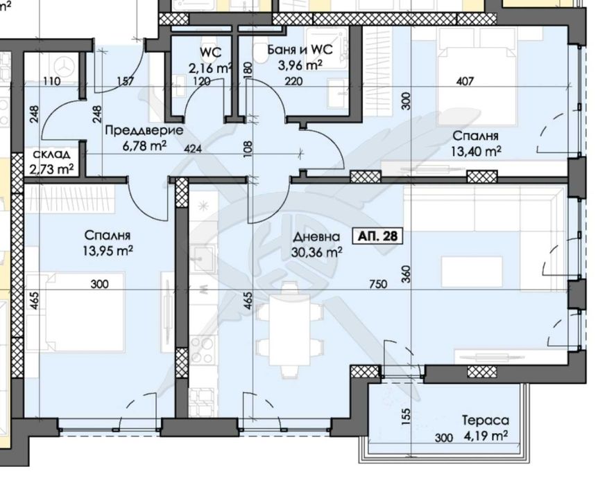
РАЗПРЕДЕЛЕНИЕ: Разполага с площ от 111 кв.м., разгърнхата в следното функционално разпределение: кухненски бокс с хол, две спални, баня с тоалетна, тераса.
СЪСТОЯНИЕ: Сградата е в строеж.
Заповядайте да Ви го покажем. Използвайки нашите услуги Вие ще превърнете закупуването на новия си дом в едно приятно изживяване, ще получите персонален консултант, съдействие при кандидатстване за кредит от всички банки в България, интериорни дизайнери и екип, който да се погрижи за нужните документи по Вашата сделка. На Ваше разположение сме всеки ден, от понеделник до неделя от 09:00 до 20:00ч. Възползвайте се от безплатна консултация в наш офис, където ще ви спестим време и ще ви запознаем с всички актуални имоти в България, отговарящи на Вашето търсене. Свържете се с нас на 08******90 или на 08******90 и цитирайте кода към имота: 95988
МЕСТОПОЛОЖЕНИЕ: Тракия е един от най-зелените и модерни квартали на Пловдив, с отлично развита инфраструктура, множество паркове, спортни площадки и широки междублокови пространства. Районът предлага разнообразие от магазини, училища, детски градини и удобен градски транспорт. Благодарение на подредената среда и модерното строителство, Тракия е предпочитан квартал както за семейства, така и за млади хора.
РАЗПРЕДЕЛЕНИЕ: Разполага с площ от 111 кв.м., разгърнхата в следното функционално разпределение: кухненски бокс с хол, две спални, баня с тоалетна, тераса.
СЪСТОЯНИЕ: Сградата е в строеж.
Заповядайте да Ви го покажем. Използвайки нашите услуги Вие ще превърнете закупуването на новия си дом в едно приятно изживяване, ще получите персонален консултант, съдействие при кандидатстване за кредит от всички банки в България, интериорни дизайнери и екип, който да се погрижи за нужните документи по Вашата сделка. На Ваше разположение сме всеки ден, от понеделник до неделя от 09:00 до 20:00ч. Възползвайте се от безплатна консултация в наш офис, където ще ви спестим време и ще ви запознаем с всички актуални имоти в България, отговарящи на Вашето търсене. Свържете се с нас на 08******90 или на 08******90 и цитирайте кода към имота: 95988
ID: 146334953
Контакт с продавача
xxx xxx xxx
