Частна
Описание
Продавам 3-стаен апартамент с нескриваема панорама, в новострояща се сграда в района на жк. Кайсиева Градина, район с висока комуникативност и всички удобства в непосредствена близост. Обектът със срок на завършване 2027г.
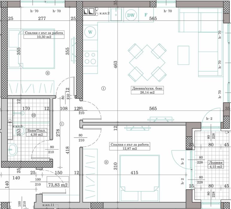
Жилището ще бъде на 10-ти от общо 11 етажа, като изложението му е изток-север и отчасти юг. Чистата площ е 74 кв.м (84 кв.м с общи части).
Апартаментът се състои от дневна с кухненски бокс (26,14 кв.м), две спални (13 кв.м и 10,3 кв.м), лоджия (4,15 кв.м) към дневната и едната спалня, баня с тоалетна (4,5 кв.м) и коридор. Към имота има бонус - изба, която е с площ 5,27 кв.м.
Има възможност за опционално закупуване на външно паркомясто с площ 12,50 кв.м, което е на цена от 15 000 евро.
Апартаментът ще бъде завършен до степен БДС, но строителят предлага възможност за довършване до ключ на изключително изгодни цени.
Още технически детайли за жилището:
- входна врата, блиндирана с двустранно заключване,
- бонус - интериорни врати, по избор на клиента,
- монтирана висок клас петкамерна ПВЦ дограма Рехау, обков Ротто или Сегения, двуцветна с цвят бял отвътре и цветна отвън в зависимост от архитектурата на фасадата, минимална дебелина на стъклопакета 30 мм.
Фасада и общи части:
- Фасадата ще бъде изпълнена с висококачествени материали, включително:
Парапети от закалено стъкло, придаващи модерен и изискан облик.
- Топлоизолация с твърда каменна вата (10 см) в партерната част за енергийна ефективност.
- Вентилируема обшивка Еталбонд , осигуряваща дълготрайност и стил.
- Общите части ще бъдат завършени с внимание към детайла:
- Стълбищна клетка декоративна мазилка, иноксов парапет и облицовка с гранитни плочи.
- Стени -Външните ограждащи и вътрешни преградни стени са от тухлена зидария с тухли WIENERBERGER на варо-циментов разтвор.
- Покрив Плосък покрив-пароизолация, топлоизолация, армирана замазка, хидроизолация, защитна посипка от филц или защитна настилка от подходящи за това материали.
- Наклонен покрив-паро -изолация, топлоизолация, хидроизолация, керамични керемиди или покривна система, предвидена в архитектурния проект.
- Асансьор (2 бр.) Италианси, луксозен асансьор. Още особености: Хидравличен, кабина лукс, инокс и скинплейт, декоративно осветителен таван, огледало, парапет, автоматична кабинна врата, светлинно показване местоположението на кабината, устройство за контрол на товара.
Жилището ще бъде на 10-ти от общо 11 етажа, като изложението му е изток-север и отчасти юг. Чистата площ е 74 кв.м (84 кв.м с общи части).
Апартаментът се състои от дневна с кухненски бокс (26,14 кв.м), две спални (13 кв.м и 10,3 кв.м), лоджия (4,15 кв.м) към дневната и едната спалня, баня с тоалетна (4,5 кв.м) и коридор. Към имота има бонус - изба, която е с площ 5,27 кв.м.
Има възможност за опционално закупуване на външно паркомясто с площ 12,50 кв.м, което е на цена от 15 000 евро.
Апартаментът ще бъде завършен до степен БДС, но строителят предлага възможност за довършване до ключ на изключително изгодни цени.
Още технически детайли за жилището:
- входна врата, блиндирана с двустранно заключване,
- бонус - интериорни врати, по избор на клиента,
- монтирана висок клас петкамерна ПВЦ дограма Рехау, обков Ротто или Сегения, двуцветна с цвят бял отвътре и цветна отвън в зависимост от архитектурата на фасадата, минимална дебелина на стъклопакета 30 мм.
Фасада и общи части:
- Фасадата ще бъде изпълнена с висококачествени материали, включително:
Парапети от закалено стъкло, придаващи модерен и изискан облик.
- Топлоизолация с твърда каменна вата (10 см) в партерната част за енергийна ефективност.
- Вентилируема обшивка Еталбонд , осигуряваща дълготрайност и стил.
- Общите части ще бъдат завършени с внимание към детайла:
- Стълбищна клетка декоративна мазилка, иноксов парапет и облицовка с гранитни плочи.
- Стени -Външните ограждащи и вътрешни преградни стени са от тухлена зидария с тухли WIENERBERGER на варо-циментов разтвор.
- Покрив Плосък покрив-пароизолация, топлоизолация, армирана замазка, хидроизолация, защитна посипка от филц или защитна настилка от подходящи за това материали.
- Наклонен покрив-паро -изолация, топлоизолация, хидроизолация, керамични керемиди или покривна система, предвидена в архитектурния проект.
- Асансьор (2 бр.) Италианси, луксозен асансьор. Още особености: Хидравличен, кабина лукс, инокс и скинплейт, декоративно осветителен таван, огледало, парапет, автоматична кабинна врата, светлинно показване местоположението на кабината, устройство за контрол на товара.
ID: 145656414
Контакт с продавача
xxx xxx xxx
Добавена 07 октомври 2025 г.
Тристаен Апартамент С Нескриваема Панорама В Новострояща Се Сграда
126000 €
Потребител
Локация
гр. Варна, Кайсиева градина
Област Варна