Бизнес
Цена на кв.м: 3000
Тип апартамент: 3 - стаен
Квадратура: 123 кв.м
Година на строителство: 2025 г.
Строителство: Тухла
Етаж: 6-ти
Брой етажи на сградата: 9
Последен етаж
Отопление: Газ
Обзавеждане: Необзаведен
Състояние на сградата: В строеж
Преход: С преход
Особености: асансьор, паркинг, видеонаблюдение
Описание
ЕРА Голд Ви представя тристаен апартамент с високи тавани за продажба, в нова луксозна сграда пред АКТ 16 на бул. Черни връх в кв. Кръстова вада.
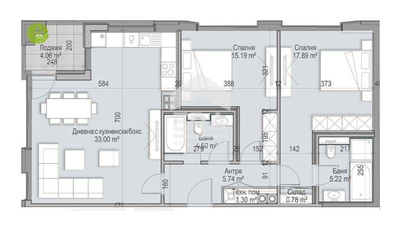
Апартаментът се състои от входно антре, дневна с кухня и трапезария 30 кв. м. , 2 спални, 2 бани с тоалетна, склад и лоджия. Изложение: Северозапад.
Обща площ: 123 кв. м.
Застроена площ: 109 кв. м.
Предава се на мазилка Baumit Ratio 1000L с 5 мм шумоизолация, тераси с двоен под, входни блиндирани врати от Solid 55 и монтирани двуконтурен газов котел “Viessmann” и изградена система за подово отопление Опция за завършване до ключ.
ДЕТАЙЛИ
Тухли: "Wienerberger" porotherm 25 N+F
Дограма: алуминиеви профили Reynaers Master Line 8
Троен стъклопакет с външно стъкло AGC StopRay Vision 70
Каменна окачена фасада с 3 см дебелина на камъка
Топлоизолация фасада: Rockwool
Мазилки външни: Baumit CreativTop
Сухо строителство: Knauf
Хидроизолация: "Sika"
Луксозни общи части с настилки от мрамор, предвидена рецепция и портиер
Контрол на достъп с лицево разпознаване
Видеонаблюдение в общите части и околното пространство
Асансьор: Високоскоростен Smart KONE за 15 човека
Сградата разполага с подземен паркинг на 2 нива, с възможност за закупуване на паркоместа на цена 40 000 евро. Всички цени са без ДДС!
CreditERA предоставя безплатна консултация и съдействие при финансиране на избрания от Вас имот от всички водещи банки в страната и ще договори най-добрите условия за вас!
Оферта №4004888
Апартаментът се състои от входно антре, дневна с кухня и трапезария 30 кв. м. , 2 спални, 2 бани с тоалетна, склад и лоджия. Изложение: Северозапад.
Обща площ: 123 кв. м.
Застроена площ: 109 кв. м.
Предава се на мазилка Baumit Ratio 1000L с 5 мм шумоизолация, тераси с двоен под, входни блиндирани врати от Solid 55 и монтирани двуконтурен газов котел “Viessmann” и изградена система за подово отопление Опция за завършване до ключ.
ДЕТАЙЛИ
Тухли: "Wienerberger" porotherm 25 N+F
Дограма: алуминиеви профили Reynaers Master Line 8
Троен стъклопакет с външно стъкло AGC StopRay Vision 70
Каменна окачена фасада с 3 см дебелина на камъка
Топлоизолация фасада: Rockwool
Мазилки външни: Baumit CreativTop
Сухо строителство: Knauf
Хидроизолация: "Sika"
Луксозни общи части с настилки от мрамор, предвидена рецепция и портиер
Контрол на достъп с лицево разпознаване
Видеонаблюдение в общите части и околното пространство
Асансьор: Високоскоростен Smart KONE за 15 човека
Сградата разполага с подземен паркинг на 2 нива, с възможност за закупуване на паркоместа на цена 40 000 евро. Всички цени са без ДДС!
CreditERA предоставя безплатна консултация и съдействие при финансиране на избрания от Вас имот от всички водещи банки в страната и ще договори най-добрите условия за вас!
Оферта №4004888
ID: 145564652
Контакт с продавача
xxx xxx xxx