Бизнес
Цена на кв.м: 1804.88
Тип апартамент: 3 - стаен
Квадратура: 123 кв.м
Година на строителство: 2028 г.
Строителство: Тухла
Етаж: 3-ти
Брой етажи на сградата: 5
Последен етаж
Отопление: Локално
Обзавеждане: Необзаведен
Състояние на сградата: В строеж
Преход: Без преход
Особености: асансьор, гараж, паркинг, саниран
Описание
Предлагам за продажба тристаен апартамент в новострояща се сграда в к.к. Чайка, с срок на изпълнение до 2 години. Проектът се реализира от доказан строител, с безкомпромисен подбор на качествени материали и отлично изпълнение. Сградата предлага невероятна морска панорама от всички нива.
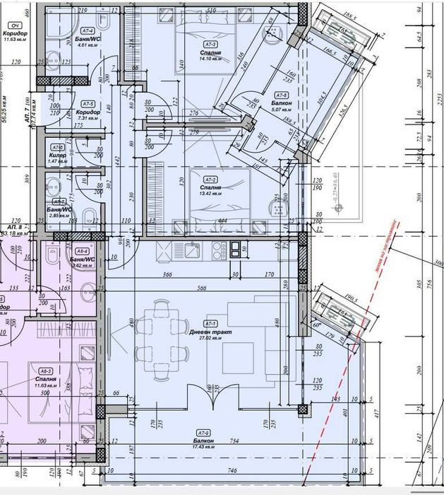
Трети етаж, чиста площ 107,74m² / обща площ 123,18m²
Изложение: Юг/Изток
Функционално разпределение:
Коридор - 7,31m²
Баня с тоалет 1 – 4,61m²
Баня с тоалет 2 - 2,85m²
Килер - 1,47m²
Дневен тракт – 27,02m²
Спалня 1 – 14,10m²
Спалня 2 - 13,42m²
Тераса - 5,07m² Юг, Изток
Тераса 2 - 17,42m² Юг
Подземно паркомясто - 20000€
Имотът е отличен избор както за жилище, така и за инвестиция в един от най-предпочитаните райони на Варна.
Трети етаж, чиста площ 107,74m² / обща площ 123,18m²
Изложение: Юг/Изток
Функционално разпределение:
Коридор - 7,31m²
Баня с тоалет 1 – 4,61m²
Баня с тоалет 2 - 2,85m²
Килер - 1,47m²
Дневен тракт – 27,02m²
Спалня 1 – 14,10m²
Спалня 2 - 13,42m²
Тераса - 5,07m² Юг, Изток
Тераса 2 - 17,42m² Юг
Подземно паркомясто - 20000€
Имотът е отличен избор както за жилище, така и за инвестиция в един от най-предпочитаните райони на Варна.
ID: 145999869
Контакт с продавача
xxx xxx xxx
Добавена Днес в 08:06 ч.
Тристаен апартамент, ново строителство
222000 €
Потребител
Локация
гр. Варна, Лятно кино Тракия
Област Варна