Бизнес
Цена на кв.м: 1399.02
Тип апартамент: 3 - стаен
Квадратура: 102 кв.м
Година на строителство: 2027 г.
Строителство: Тухла
Етаж: 3-ти
Брой етажи на сградата: 4
Отопление: Електричество
Обзавеждане: Необзаведен
Състояние на сградата: В строеж
Преход: Без преход
Описание
Предлагаме ви за продажба тристаен апартамент в предстояща за изграждане четириетажна сграда с асансьор и контролиран достъп в кв. Виница - предпочитан и спокоен район с бърз достъп до централната част на града и морето.
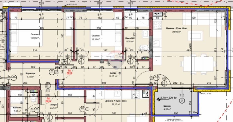
Жилището се намира на 3-ти етаж, вход Б и е с чиста площ от 82.91 кв.м.
Апартаментът е с функционално разпределение и включва:
- всекидневна с кухненска част (24.06 кв.м) с излаз към тераса (4.58 кв.м)
- спалня (10.18 кв.м)
- спалня (13.60 кв.м)
- баня с тоалетна в едно помещение (5.29 кв.м)
- коридор (10.13 кв.м)
Към имота има 9.47 кв.м прилежащи идеални части от общите части на сградата.
Има възможност за покупка както на открито така и на закрито паркомясто или гараж.
В сградата има свободни други тристайни и двустайни жилища.
Имотът е подходящ както за лично ползване, така и за инвестиция. Сградата ще бъде изградена с модерна визия и качествени материали, осигуряващи комфорт и уют на бъдещите собственици.
Жилището се намира на 3-ти етаж, вход Б и е с чиста площ от 82.91 кв.м.
Апартаментът е с функционално разпределение и включва:
- всекидневна с кухненска част (24.06 кв.м) с излаз към тераса (4.58 кв.м)
- спалня (10.18 кв.м)
- спалня (13.60 кв.м)
- баня с тоалетна в едно помещение (5.29 кв.м)
- коридор (10.13 кв.м)
Към имота има 9.47 кв.м прилежащи идеални части от общите части на сградата.
Има възможност за покупка както на открито така и на закрито паркомясто или гараж.
В сградата има свободни други тристайни и двустайни жилища.
Имотът е подходящ както за лично ползване, така и за инвестиция. Сградата ще бъде изградена с модерна визия и качествени материали, осигуряващи комфорт и уют на бъдещите собственици.
ID: 147374284
Контакт с продавача
xxx xxx xxx

