Бизнес
Цена на кв.м: 1823.51
Тип апартамент: 3 - стаен
Квадратура: 108 кв.м
Година на строителство: 2027 г.
Строителство: Тухла
Етаж: 1-ви
Брой етажи на сградата: 4
Последен етаж
Отопление: Електричество
Обзавеждане: Необзаведен
Състояние на сградата: Завършена
Преход: Без преход
Описание
Предлагаме Ви тристаен апартамент за продажба в квартал Галата, град Варна.
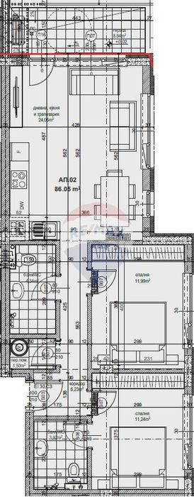
Жилището ще бъде разположено на първи етаж в предстояща за изграждане четириетажна сграда с асансьор и контролиран достъп.
На чиста площ от 86 кв.м. са разпределени:
* всекидневна с кухненска част /24.06 кв.м./ с излаз на тераса;
* спалня /11,24 кв.м./ с прилежаща баня с тоалетна /3,92 кв.м./;
* спалня /11,99кв.м./;
* баня с тоалет в едно помещение /4,34 кв.м./;
* перално помещение/1,50 кв.м./;
* коридор /6,23 кв.м/;
* тераса /8,84 кв.м./.
Към имота има 21,97 кв.м. прилежащи идеални части от общите части на сградата и % от дворното място, в което е построена. Има възможност за покупка както на паркомясто в закрит или открит паркинг, така и на гараж.
Сградата е разположена в един от най-живописните райони на Варна квартал Галата. Място, където просторът на морския хоризонт, чистият въздух и спокойната атмосфера създават среда за живот с различно качество по-балансирана, по-естествена и по-близка до природата.
Сградата е проектирана като бутикова резиденция, в която архитектурата, пространството и гледката се сливат в хармонично цяло.
В сградата има свободни и други двустайни и тристайни жилища.
Жилището ще бъде разположено на първи етаж в предстояща за изграждане четириетажна сграда с асансьор и контролиран достъп.
На чиста площ от 86 кв.м. са разпределени:
* всекидневна с кухненска част /24.06 кв.м./ с излаз на тераса;
* спалня /11,24 кв.м./ с прилежаща баня с тоалетна /3,92 кв.м./;
* спалня /11,99кв.м./;
* баня с тоалет в едно помещение /4,34 кв.м./;
* перално помещение/1,50 кв.м./;
* коридор /6,23 кв.м/;
* тераса /8,84 кв.м./.
Към имота има 21,97 кв.м. прилежащи идеални части от общите части на сградата и % от дворното място, в което е построена. Има възможност за покупка както на паркомясто в закрит или открит паркинг, така и на гараж.
Сградата е разположена в един от най-живописните райони на Варна квартал Галата. Място, където просторът на морския хоризонт, чистият въздух и спокойната атмосфера създават среда за живот с различно качество по-балансирана, по-естествена и по-близка до природата.
Сградата е проектирана като бутикова резиденция, в която архитектурата, пространството и гледката се сливат в хармонично цяло.
В сградата има свободни и други двустайни и тристайни жилища.
ID: 147281934
Контакт с продавача
xxx xxx xxx

