Бизнес
Цена на кв.м: 2161.19
Тип апартамент: 3 - стаен
Квадратура: 100 кв.м
Година на строителство: 2026 г.
Строителство: Тухла
Етаж: 6-ти
Брой етажи на сградата: 6
Последен етаж
Отопление: Електричество
Обзавеждане: Необзаведен
Състояние на сградата: В строеж
Преход: Без преход
Особености: асансьор
Описание
Компания X представя на Вашето внимание тристаен апартамент в кв.Кършияка.
МЕСТОПОЛОЖЕНИЕ:Кършияка е един от най-старите квартали в град Пловдив, България. Той се намира в централната част на града и е известен със своята историческа атмосфера, архитектурни паметници и културни забележителности.
СТРОИТЕЛСТВО: Апартаментът се намира на 6-ти етаж , тухла.
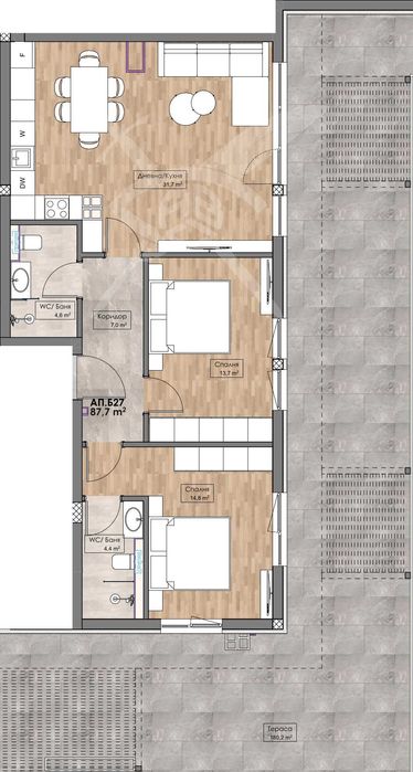
РАЗПРЕДЕЛЕНИЕ: Жилището разполага с площ от 100кв.м. дневна,кухня, две спални,две бани с тоалетна,склад, тераса.
СЪСТОЯНИЕ: В строеж.
Заповядайте да Ви го покажем. Използвайки нашите услуги Вие ще превърнете закупуването на новия си дом в едно приятно изживяване, ще получите персонален консултант, съдействие при кандидатстване за кредит от всички банки в България, интериорни дизайнери и екип, който да се погрижи за нужните документи по Вашата сделка. На Ваше разположение сме всеки ден, от понеделник до неделя от 09:00 до 20:00ч. Възползвайте се от безплатна консултация в наш офис, където ще ви спестим време и ще ви запознаем с всички актуални имоти в България, отговарящи на Вашето търсене. Свържете се с нас на 08******90 /на цената на един градски разговор/ или на 08******90 и цитирайте кода към имота:667-22932
МЕСТОПОЛОЖЕНИЕ:Кършияка е един от най-старите квартали в град Пловдив, България. Той се намира в централната част на града и е известен със своята историческа атмосфера, архитектурни паметници и културни забележителности.
СТРОИТЕЛСТВО: Апартаментът се намира на 6-ти етаж , тухла.
РАЗПРЕДЕЛЕНИЕ: Жилището разполага с площ от 100кв.м. дневна,кухня, две спални,две бани с тоалетна,склад, тераса.
СЪСТОЯНИЕ: В строеж.
Заповядайте да Ви го покажем. Използвайки нашите услуги Вие ще превърнете закупуването на новия си дом в едно приятно изживяване, ще получите персонален консултант, съдействие при кандидатстване за кредит от всички банки в България, интериорни дизайнери и екип, който да се погрижи за нужните документи по Вашата сделка. На Ваше разположение сме всеки ден, от понеделник до неделя от 09:00 до 20:00ч. Възползвайте се от безплатна консултация в наш офис, където ще ви спестим време и ще ви запознаем с всички актуални имоти в България, отговарящи на Вашето търсене. Свържете се с нас на 08******90 /на цената на един градски разговор/ или на 08******90 и цитирайте кода към имота:667-22932
ID: 140125072
Контакт с продавача
xxx xxx xxx
