Бизнес
Цена на кв.м: 1480.39
Тип апартамент: 3 - стаен
Квадратура: 99 кв.м
Година на строителство: 2026 г.
Строителство: Тухла
Етаж: 7-ми
Брой етажи на сградата: 9
Последен етаж
Отопление: Електричество
Обзавеждане: Необзаведен
Състояние на сградата: В строеж
Преход: Без преход
Особености: асансьор, паркинг, саниран
Описание
Титан Пропъртис има удоволствието да Ви представи тристаен, просторен апартамент в луксозна сграда с прецизно изпълнена фасада, съчетаваща архитектурна естетика и висока енергийна ефективност с богато разнообразие от апартаменти и отлична локация в най-търсената част на кв. Христо Смирненски, в близост до зелени площи, училища, детски градини, магазини и основни пътни артерии.
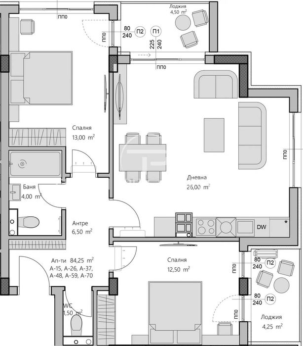
Апартаментът е ситуиран на 7-ми от 9-ти жилищен етаж и разполага с площ от 99 кв.м., със следното практично разпределение: Входно антре, хол с кухненски бокс, две спални склад, две големи бани с тоалетни, тераса. Жилището е със система 'умен дом' комфорт и управление от разстояние. Височина на таваните 2.70 м, осигуряваща простор и светлина.
Сградата разполага с високоскоростни асансьори.
Има надземни паркоместа на атрактивна цена от 15 000 , с прекарана инсталация за зареждане на електромобили (мощност 10 kW, трифазен ток) Избор от подземни паркоместа и гаражи.
Акт 14 очакван в края на 2025 г. Акт 16 предвиден за 2026 г. Етап на строителство: завършена четвърта плоча.
Идеален избор за семейно жилище или инвестиция с висока възвръщаемост!
За оглед на това и други атрактивни предложения, не се колебайте да ни потърсите на посочения телефон или да ни изпратите данните си чрез формата за запитване на сайта.
Референтен номер: 1091
Апартаментът е ситуиран на 7-ми от 9-ти жилищен етаж и разполага с площ от 99 кв.м., със следното практично разпределение: Входно антре, хол с кухненски бокс, две спални склад, две големи бани с тоалетни, тераса. Жилището е със система 'умен дом' комфорт и управление от разстояние. Височина на таваните 2.70 м, осигуряваща простор и светлина.
Сградата разполага с високоскоростни асансьори.
Има надземни паркоместа на атрактивна цена от 15 000 , с прекарана инсталация за зареждане на електромобили (мощност 10 kW, трифазен ток) Избор от подземни паркоместа и гаражи.
Акт 14 очакван в края на 2025 г. Акт 16 предвиден за 2026 г. Етап на строителство: завършена четвърта плоча.
Идеален избор за семейно жилище или инвестиция с висока възвръщаемост!
За оглед на това и други атрактивни предложения, не се колебайте да ни потърсите на посочения телефон или да ни изпратите данните си чрез формата за запитване на сайта.
Референтен номер: 1091
ID: 144860326
Контакт с продавача
xxx xxx xxx
