Бизнес
Цена на кв.м: 1332.14
Тип апартамент: 3 - стаен
Квадратура: 84 кв.м
Година на строителство: 2027 г.
Строителство: Тухла
Етаж: 1-ви
Брой етажи на сградата: 5
Последен етаж
Отопление: Електричество
Обзавеждане: Необзаведен
Състояние на сградата: В строеж
Преход: Без преход
OLX Доставка
Описание
Компания ’X’ представя на Вашето внимание тристаен апартамент в кв. Христо Смирненски.
МЕСТОПОЛОЖЕНИЕ: Квартал Христо Смирненски е един от големите жилищни квартали в град Пловдив. Христо Смирненски е живописен и разнообразен квартал, който предлага удобства за живот и развлечения на своите жители.
СТРОИТЕЛСТВО: Апартаментът е разположен на 1-ви етаж в сграда ново строителство.
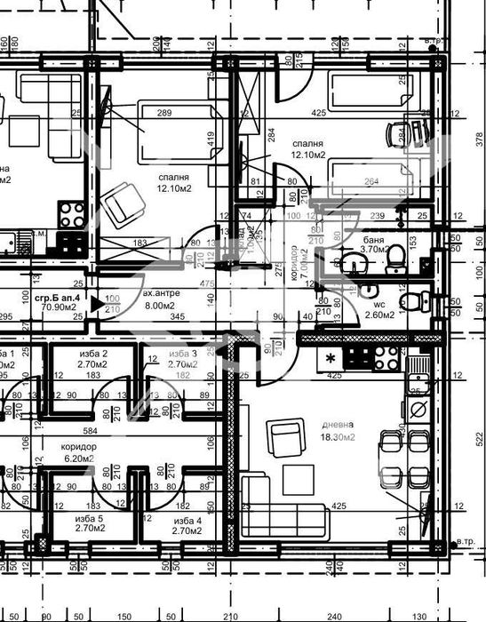
РАЗПРЕДЕЛЕНИЕ: Жилището разполага с площ от 84 кв.м., която е разпределена по следния начин: антре, дневна с трапезария и кухненски бокс, две спални, баня с тоалетна, тоалетна, склад и дворна веранда -46,30кв.м.
СЪСТОЯНИЕ: Необзаведен.
Заповядайте да Ви го покажем. Използвайки нашите услуги Вие ще превърнете закупуването на новия си дом в едно приятно изживяване, ще получите персонален консултант, съдействие при кандидатстване за кредит от всички банки в България, интериорни дизайнери и екип, който да се погрижи за нужните документи по Вашата сделка. На Ваше разположение сме всеки ден, от понеделник до неделя от 09:00 до 20:00ч. Възползвайте се от безплатна консултация в наш офис, където ще ви спестим време и ще ви запознаем с всички актуални имоти в България, отговарящи на Вашето търсене. Свържете се с нас на 08*********90 или на 08*********90 и цитирайте кода към имота: 1050-30333
МЕСТОПОЛОЖЕНИЕ: Квартал Христо Смирненски е един от големите жилищни квартали в град Пловдив. Христо Смирненски е живописен и разнообразен квартал, който предлага удобства за живот и развлечения на своите жители.
СТРОИТЕЛСТВО: Апартаментът е разположен на 1-ви етаж в сграда ново строителство.
РАЗПРЕДЕЛЕНИЕ: Жилището разполага с площ от 84 кв.м., която е разпределена по следния начин: антре, дневна с трапезария и кухненски бокс, две спални, баня с тоалетна, тоалетна, склад и дворна веранда -46,30кв.м.
СЪСТОЯНИЕ: Необзаведен.
Заповядайте да Ви го покажем. Използвайки нашите услуги Вие ще превърнете закупуването на новия си дом в едно приятно изживяване, ще получите персонален консултант, съдействие при кандидатстване за кредит от всички банки в България, интериорни дизайнери и екип, който да се погрижи за нужните документи по Вашата сделка. На Ваше разположение сме всеки ден, от понеделник до неделя от 09:00 до 20:00ч. Възползвайте се от безплатна консултация в наш офис, където ще ви спестим време и ще ви запознаем с всички актуални имоти в България, отговарящи на Вашето търсене. Свържете се с нас на 08*********90 или на 08*********90 и цитирайте кода към имота: 1050-30333
ID: 143298494
Контакт с продавача
xxx xxx xxx
