Навигиране до основното съдържание
OLX Christmas Logo
Чат

Нотификации

Добави обява
Тристаен апартамент 151 кв.м.
Тристаен апартамент 151 кв.м.
Тристаен апартамент 151 кв.м.
Тристаен апартамент 151 кв.м.
Тристаен апартамент 151 кв.м.
ПромотирайОбнови

Бизнес

Цена на кв.м: 1655.63

Тип апартамент: 3 - стаен

Квадратура: 151 кв.м

Година на строителство: 2025 г.

Строителство: Тухла

Етаж: 3-ти

Брой етажи на сградата: 6

Последен етаж

Отопление: Електричество

Обзавеждане: Необзаведен

Състояние на сградата: В строеж

Преход: Без преход

Особености: асансьор

Описание

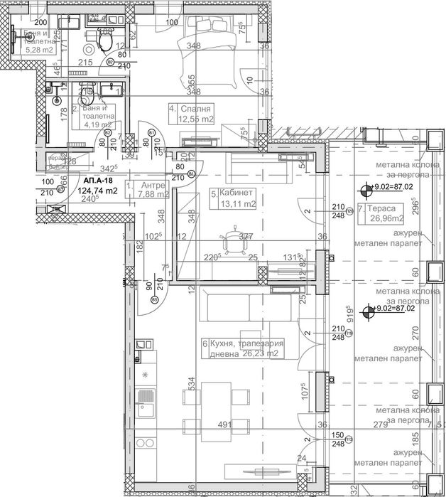
'КРЕС ИНВЕСТ 2007' ЕООД предлага на вашето внимание чудесен тристаен апартамент (А-18) в процес на строителство. Новият проект на компанията - 'Casa Elara', предлага жилища от всеки тип - едностайни, двустайни, тристайни и четиристайни. Апартамент А-18 е разположен трети етаж в секция 'А' и се състои от: дневна с кухня, две спални, коридор, 2 бани с тоалетна и голяма тераса с вдъхновяваща гледка към морето. Срокът за завършване на проекта е пролетта на 2027 година.
ID: 142950736

Контакт с продавача

Крес Инвест

В OLX от юни 2015 г.

Последно онлайн 17 ноември 2025 г.

xxx xxx xxx

Добавена 10 декември 2025 г.

Тристаен апартамент 151 кв.м.

488957.50 лв. / 250000 €

Потребител

Локация

Location

м-т Манастирски рид

Област Варна

Свали приложението на OLX за твоя телефон!