Бизнес
Цена на кв.м: 1744.19
Брой етажи на сградата: 3
Квадратура: 258 кв.м
Квадратура на двора: 600 кв.м
Година на строителство: 2024 г.
Строителство: Тухла
Отопление: Електричество
Състояние на сградата: Завършена
Описание
Предлагаме Ви за продажба модерна новострояща се триетажна къща в м-ст Манастирски Рид, гр. Варна.
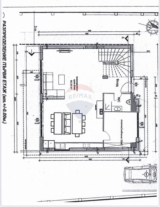
Къщата е с РЗП от 258 кв.м, на три етажа със следното разпределение:
* на първи етаж, с площ от 93 кв.м са разположени: просторна всекидневна с кухненски бокс / 65 кв.м /, спалня, килер, тоалет, вътрешно стълбище към етаж 2. Височината на тавана на първо ниво е над 3 м.
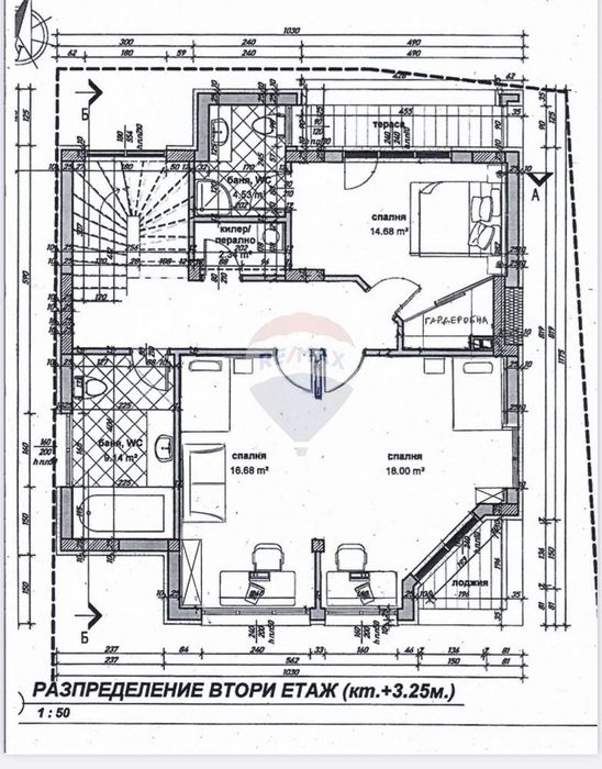
* на втори етаж, с площ от 114 кв.м са разположени три слънчеви спални. Едната спалня /18 кв.м/ е с излаз на тераса с гледка море, другата спалня /16 кв.м / също е с морска гледка, третата спалня /15 кв.м/ е с прилежащи към нея гардеробна, баня и тоалет. На това има и перално помещение и вътрешно стълбище към етаж 2;
* на трети етаж, с площ от 51 кв.м са разположени едно помещение /11 кв.м/, подходящо за спалня, кабинет, фитнес, с излаз на голяма панорамна тераса с прекрасна морска панорама, баня и тоалет.
Фасадата е с висококачествена външна изолация - 10 см, декоративна мазилка и камък. Отоплението е водно подово, налична е инсталация за термопомпа, СОТ, кабелна ТВ, интернет. Има пречиствателна станция за битови отпадни води.
Къщата се строи с най-висок клас строителни материали. Предлага се в степен на завършеност по БДС. Има възможност за завършване до ключ. Възможно преустройство спрямо желанията на клиента!
Дворното място е с площ от 600 кв.м. Има паркоместа за три коли!
Атрактивна локация, лесен и бърз достъп по асфалтирани улици, на 300 м от главен път Варна - Златни пясъци, спирка и магазини.
Уникална морска панорама, чист, въздух, тишина и спокойствие!
Къщата е с РЗП от 258 кв.м, на три етажа със следното разпределение:
* на първи етаж, с площ от 93 кв.м са разположени: просторна всекидневна с кухненски бокс / 65 кв.м /, спалня, килер, тоалет, вътрешно стълбище към етаж 2. Височината на тавана на първо ниво е над 3 м.
* на втори етаж, с площ от 114 кв.м са разположени три слънчеви спални. Едната спалня /18 кв.м/ е с излаз на тераса с гледка море, другата спалня /16 кв.м / също е с морска гледка, третата спалня /15 кв.м/ е с прилежащи към нея гардеробна, баня и тоалет. На това има и перално помещение и вътрешно стълбище към етаж 2;
* на трети етаж, с площ от 51 кв.м са разположени едно помещение /11 кв.м/, подходящо за спалня, кабинет, фитнес, с излаз на голяма панорамна тераса с прекрасна морска панорама, баня и тоалет.
Фасадата е с висококачествена външна изолация - 10 см, декоративна мазилка и камък. Отоплението е водно подово, налична е инсталация за термопомпа, СОТ, кабелна ТВ, интернет. Има пречиствателна станция за битови отпадни води.
Къщата се строи с най-висок клас строителни материали. Предлага се в степен на завършеност по БДС. Има възможност за завършване до ключ. Възможно преустройство спрямо желанията на клиента!
Дворното място е с площ от 600 кв.м. Има паркоместа за три коли!
Атрактивна локация, лесен и бърз достъп по асфалтирани улици, на 300 м от главен път Варна - Златни пясъци, спирка и магазини.
Уникална морска панорама, чист, въздух, тишина и спокойствие!
ID: 138570240
Контакт с продавача
xxx xxx xxx

