Бизнес
Състояние: ново
Описание
Сглобяема къща „СЪБЪРБЪН“ | 30–60 м² | Wood Frame | 499 €/м² (975 лв./м²)
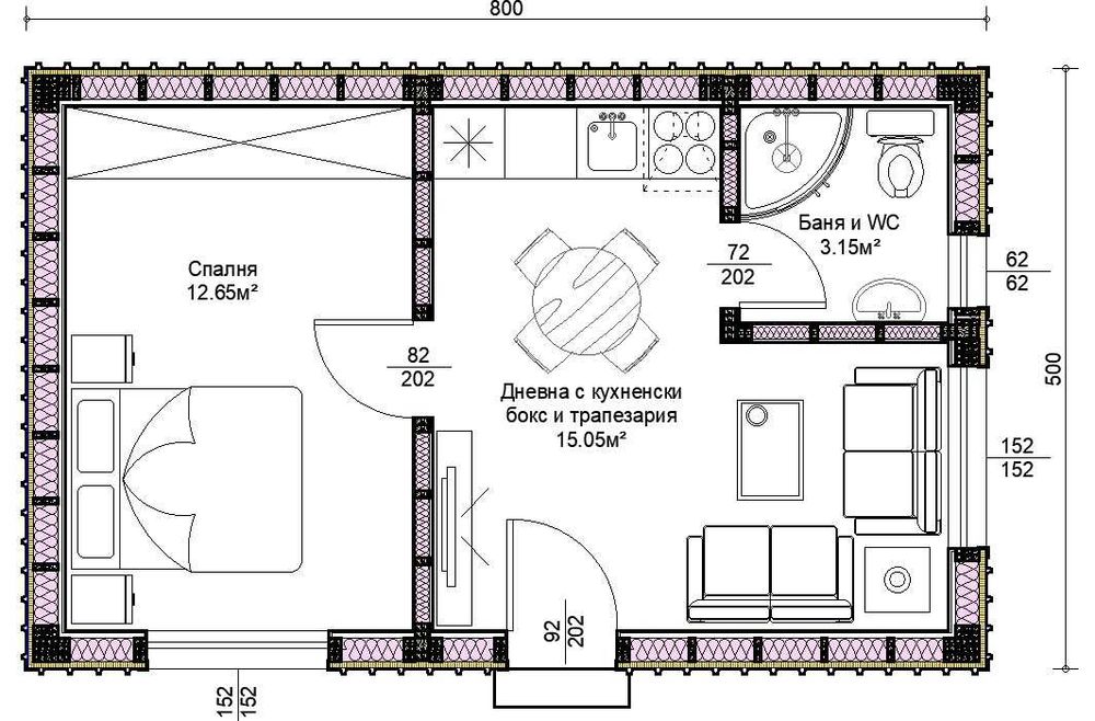
Къща „СЪБЪРБЪН“ е модерно, практично и достъпно решение за целогодишно семейно обитаване. Дневна с кухненски бокс и трапезария, 1 или 2 спални /в зависимост от квадратурата/, баня с тоалетна и възможност за покрита веранда – всичко адаптирано към Вашия парцел и начин на живот.
Поетапно изграждане: желаете ли допълнителна стая, веранда или разширение – можем да планираме проекта така, че всеки етап да добавя нова функционалност.
Надеждност, доказана с десетилетия опит
Дървената рамкова конструкция Wood Frame е най-предпочитаната технология за жилищни сгради в САЩ, Канада и Европа, доказала се като стабилна, ефективна и дълготрайна. Хиляди къщи от този тип издържат 50–100+ години при правилна поддръжка, осигурявайки комфорт, топло- и шумоизолация, както и безопасна и устойчива среда за семейството. С нашите материали от висок клас и внимателен монтаж получавате модерна, сигурна и устойчива къща, която е проверена и одобрена от опита на професионалистите по целия свят.
Технология и материали:
• Дървена носеща рамкова конструкция – Wood Frame Construction с висококачествена конструктивна дървесина от Германия или Австрия с клас на якост С24, камерно изсушена с влажност 15%, без усуквания и пукнатини.
• Самостоятелни (единични) фундаменти – при ивични основи цената е различна
• Дебелина на външните стени между 30 и 38см /в зависимост от начина на изпълнение/ с топлоизолация от минерална вата /негорима/ и/или стъклофибърна вата/; отлична шумоизолация 50-55db /в зависимост от конфигурацията/; пароизолационна мембрана два слоя с различна степен на паропропускливост, която предотвратява появата на мухъл и извежда ефективно влагата извън вътрешността на къщата; хидроизолационна мембрана и обмазка /на долната част на стените/, хидроизолационна лента на рискови участъци.
• PVC дограма
• „Дишаща“ фасада с въздушна камера – стандартно с пластифицирана ламарина, но има опции за друго изпълнение
Условия:
• Цена 499 €/м²-> 975лв./ м² (при степен на завършеност готова фасада и ОСБ от вътрешна страна)
• Необходимо е единствено да разполагате с парцел
• Проектирането, организацията и строителството поемам изцяло
Цената не включва: проектантски услуги, надзор, държавни такси, подови настилки и вътрешни довършителни работи – за всичко това можем да предложим персонализирана оферта.
Как работим:
1. Изпращате снимки на имота и локация
2. Уточняваме концепцията по телефона/онлайн
3. Оглед на място
4. Консултация за разпределение, материали и технологии
5. След одобрение започваме строителството
Гаранция
Гарантирам професионално изпълнение, коректност и пълна ангажираност –
от първоначалната идея до готовия дом.
Работя в цяла България.
Обадете се за безплатна първоначална консултация и ориентировъчна оферта според Вашия парцел.
#сглобяемаКъща #дървенаКъща #къщаПоПоръчка #woodframe
#енергийнаЕфективност #нисъкРазход #къщаНаМясто
#бързоСтроителство #устойчивоСтроителство #новДом
#София #Пловдив #Варна #Бургас #Русе #СтараЗагора
#Плевен #Благоевград #ВеликоТърново #Габрово #Враца
#Шумен #Добрич #Перник #Хасково #Ямбол #Кюстендил
Къща „СЪБЪРБЪН“ е модерно, практично и достъпно решение за целогодишно семейно обитаване. Дневна с кухненски бокс и трапезария, 1 или 2 спални /в зависимост от квадратурата/, баня с тоалетна и възможност за покрита веранда – всичко адаптирано към Вашия парцел и начин на живот.
Поетапно изграждане: желаете ли допълнителна стая, веранда или разширение – можем да планираме проекта така, че всеки етап да добавя нова функционалност.
Надеждност, доказана с десетилетия опит
Дървената рамкова конструкция Wood Frame е най-предпочитаната технология за жилищни сгради в САЩ, Канада и Европа, доказала се като стабилна, ефективна и дълготрайна. Хиляди къщи от този тип издържат 50–100+ години при правилна поддръжка, осигурявайки комфорт, топло- и шумоизолация, както и безопасна и устойчива среда за семейството. С нашите материали от висок клас и внимателен монтаж получавате модерна, сигурна и устойчива къща, която е проверена и одобрена от опита на професионалистите по целия свят.
Технология и материали:
• Дървена носеща рамкова конструкция – Wood Frame Construction с висококачествена конструктивна дървесина от Германия или Австрия с клас на якост С24, камерно изсушена с влажност 15%, без усуквания и пукнатини.
• Самостоятелни (единични) фундаменти – при ивични основи цената е различна
• Дебелина на външните стени между 30 и 38см /в зависимост от начина на изпълнение/ с топлоизолация от минерална вата /негорима/ и/или стъклофибърна вата/; отлична шумоизолация 50-55db /в зависимост от конфигурацията/; пароизолационна мембрана два слоя с различна степен на паропропускливост, която предотвратява появата на мухъл и извежда ефективно влагата извън вътрешността на къщата; хидроизолационна мембрана и обмазка /на долната част на стените/, хидроизолационна лента на рискови участъци.
• PVC дограма
• „Дишаща“ фасада с въздушна камера – стандартно с пластифицирана ламарина, но има опции за друго изпълнение
Условия:
• Цена 499 €/м²-> 975лв./ м² (при степен на завършеност готова фасада и ОСБ от вътрешна страна)
• Необходимо е единствено да разполагате с парцел
• Проектирането, организацията и строителството поемам изцяло
Цената не включва: проектантски услуги, надзор, държавни такси, подови настилки и вътрешни довършителни работи – за всичко това можем да предложим персонализирана оферта.
Как работим:
1. Изпращате снимки на имота и локация
2. Уточняваме концепцията по телефона/онлайн
3. Оглед на място
4. Консултация за разпределение, материали и технологии
5. След одобрение започваме строителството
Гаранция
Гарантирам професионално изпълнение, коректност и пълна ангажираност –
от първоначалната идея до готовия дом.
Работя в цяла България.
Обадете се за безплатна първоначална консултация и ориентировъчна оферта според Вашия парцел.
#сглобяемаКъща #дървенаКъща #къщаПоПоръчка #woodframe
#енергийнаЕфективност #нисъкРазход #къщаНаМясто
#бързоСтроителство #устойчивоСтроителство #новДом
#София #Пловдив #Варна #Бургас #Русе #СтараЗагора
#Плевен #Благоевград #ВеликоТърново #Габрово #Враца
#Шумен #Добрич #Перник #Хасково #Ямбол #Кюстендил
ID: 146502935
Контакт с продавача
xxx xxx xxx
Добавена 15 януари 2026 г.
Сглобяема къща „СЪБЪРБЪН“ | 30–60 м² | Wood Frame | 499€/м²|975лв./м²
975.96 лв. / 499 €
Потребител
Локация