Бизнес
Цена на кв.м: 7.49
Брой етажи на сградата: 1
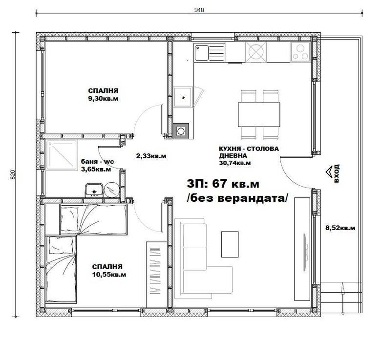
Квадратура: 80 кв.м
Квадратура на двора: 1 кв.м
Година на строителство: 2025 г.
Строителство: Друго
Отопление: Без отопление
Състояние на сградата: Завършена
Описание
Допълнителна информация
Сглобяема къща по индивидуален проект - от 599 €/м²
САМО СЕГА: КЪЩА "АЗУЛ": 35-60м² / по индивидуален проект
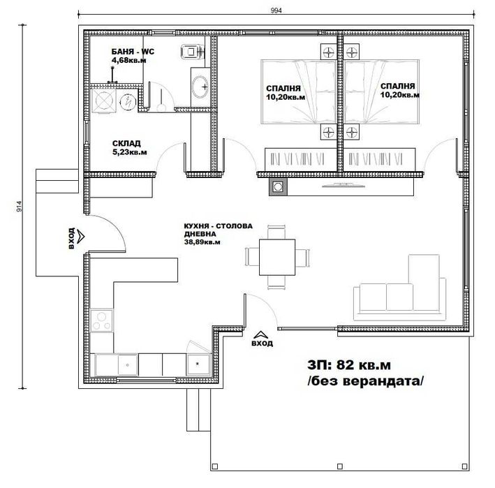
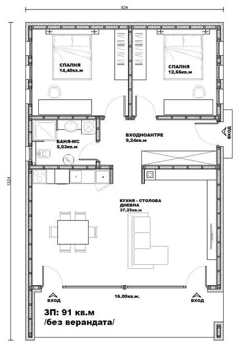
Къща „Азул“ е проектирана с мисъл за комфорт и функционалност. Разпределението включва светла дневна с кухненски бокс, уютна спалня, пълноценно оборудвана баня и тераса или веранда за отдих и гости. Всеки елемент е внимателно планиран, за да осигури оптимално използване на пространството и максимален комфорт, независимо дали къщата ще бъде ваш дом, вила или къща за гости.
Търсите собствен дом, изграден според Вашите нужди и вкус?
Ние предлагаме качествено и бързо изграждане на къщи с дървена конструкция, изпълнявани на място, по индивидуален проект - не серийно, а съобразено с Вашия парцел и изисквания.
Технология и материали:
• Дървена носеща конструкция тип ”Дървена рамкова конструкция” с доказана здравина и дълъг живот
• Стоманобетонен фундамент / ивични основи
• Каменна минерална вата - отлична топло- и шумоизолация
• Пароизолация и хидроизолация за защита и комфорт през всички сезони
Условия:
• Цени от 599 €/м² (в зависимост от строежа и степента на завършеност)
• От клиента се изисква само осигурен парцел
• Проектирането, организацията и изпълнението са изцяло наша отговорност
Как работя?
След като се свържете с мен:
- Изпращате снимка на имота, скица и локация, където ще се изгражда къщата.
- Провеждаме разговор или среща, за да уточним всички изисквания и идеи.
- Оглед на място, за да преценя терена и подхода за изпълнение.
Консултирам ви относно:
- най-подходящите материали и технологии за конкретния обект;
- оптималното разпределение на къщата;
- всички законодателни изисквания при проектирането и строителството.
След одобрение на проекта започва същинската част – изграждането на къщата на място.
Гарантирам професионален подход, точност и пълна ангажираност на всеки етап – от идеята до готовия дом.
В посочената цена не са включени: проект, строителен надзор и държавни такси.
Изграждаме къщи в цяла България!
#сглобяемаКъща #пасивнаКъща #дървенаКъща #индивидуаленПроект #собственДом #къщаДоКлюч #строителствоБългария #новДом #бързоСтроителство #енергийнаЕфективност #комфортенДом #къщаНаМярка #бюджетнаКъща #достъпниЦени #устойчивоСтроителство #монтажНаКъщи #топлоизолация #екоКъща #инвестицияВДом #мечтаниятДом #София #Пловдив #Варна #Бургас #СтараЗагора #Русе #Плевен #Сливен #Добрич #Шумен
Сглобяема къща по индивидуален проект - от 599 €/м²
САМО СЕГА: КЪЩА "АЗУЛ": 35-60м² / по индивидуален проект
Къща „Азул“ е проектирана с мисъл за комфорт и функционалност. Разпределението включва светла дневна с кухненски бокс, уютна спалня, пълноценно оборудвана баня и тераса или веранда за отдих и гости. Всеки елемент е внимателно планиран, за да осигури оптимално използване на пространството и максимален комфорт, независимо дали къщата ще бъде ваш дом, вила или къща за гости.
Търсите собствен дом, изграден според Вашите нужди и вкус?
Ние предлагаме качествено и бързо изграждане на къщи с дървена конструкция, изпълнявани на място, по индивидуален проект - не серийно, а съобразено с Вашия парцел и изисквания.
Технология и материали:
• Дървена носеща конструкция тип ”Дървена рамкова конструкция” с доказана здравина и дълъг живот
• Стоманобетонен фундамент / ивични основи
• Каменна минерална вата - отлична топло- и шумоизолация
• Пароизолация и хидроизолация за защита и комфорт през всички сезони
Условия:
• Цени от 599 €/м² (в зависимост от строежа и степента на завършеност)
• От клиента се изисква само осигурен парцел
• Проектирането, организацията и изпълнението са изцяло наша отговорност
Как работя?
След като се свържете с мен:
- Изпращате снимка на имота, скица и локация, където ще се изгражда къщата.
- Провеждаме разговор или среща, за да уточним всички изисквания и идеи.
- Оглед на място, за да преценя терена и подхода за изпълнение.
Консултирам ви относно:
- най-подходящите материали и технологии за конкретния обект;
- оптималното разпределение на къщата;
- всички законодателни изисквания при проектирането и строителството.
След одобрение на проекта започва същинската част – изграждането на къщата на място.
Гарантирам професионален подход, точност и пълна ангажираност на всеки етап – от идеята до готовия дом.
В посочената цена не са включени: проект, строителен надзор и държавни такси.
Изграждаме къщи в цяла България!
#сглобяемаКъща #пасивнаКъща #дървенаКъща #индивидуаленПроект #собственДом #къщаДоКлюч #строителствоБългария #новДом #бързоСтроителство #енергийнаЕфективност #комфортенДом #къщаНаМярка #бюджетнаКъща #достъпниЦени #устойчивоСтроителство #монтажНаКъщи #топлоизолация #екоКъща #инвестицияВДом #мечтаниятДом #София #Пловдив #Варна #Бургас #СтараЗагора #Русе #Плевен #Сливен #Добрич #Шумен
ID: 146089964
Контакт с продавача
xxx xxx xxx
Добавена Днес в 12:21 ч.
Сглобяема къща по индивидуален проект - собствен дом от 599 €/м²
599 €
Потребител
Локация
гр. Стара Загора, Била
Област Стара Загора