Бизнес
Цена на кв.м: 3137.25
Тип апартамент: 2 - стаен
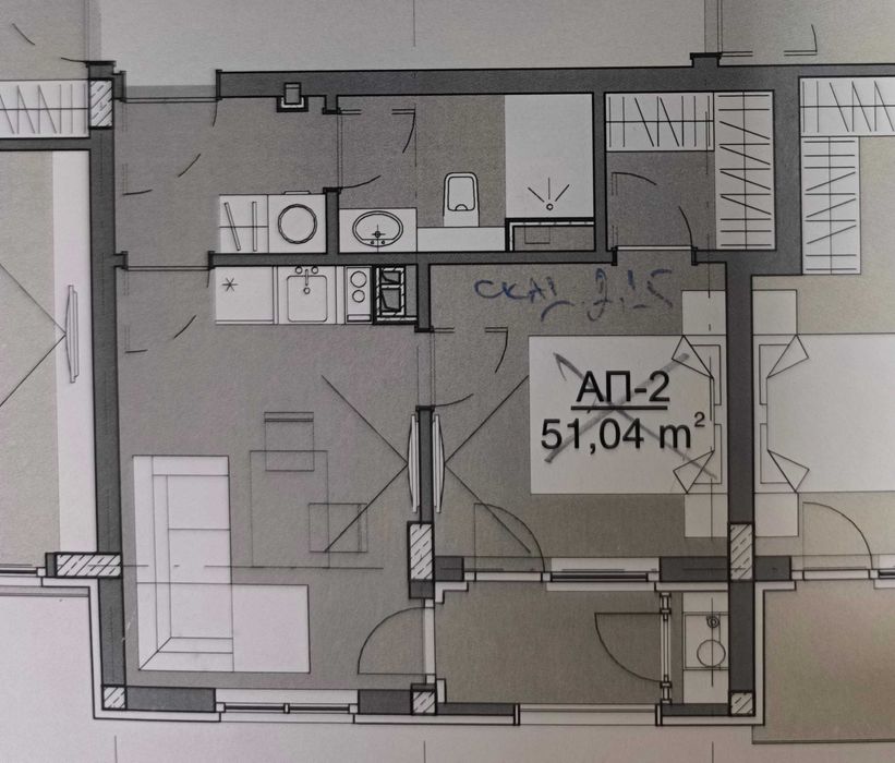
Квадратура: 51 кв.м
Година на строителство: 2025 г.
Строителство: Тухла
Етаж: 1-ви
Брой етажи на сградата: 6
Последен етаж
Отопление: Електричество
Обзавеждане: Необзаведен
Състояние на сградата: В строеж
Преход: Без преход
Описание
Имоти Казанлък SDN Estates LTD предлага за продажба просторен и светъл апартамент с площ 51,04 кв.м, разположен в чисто нова, висококачествено изпълнена сграда в широкия център на гр. Казанлък. Имотът е идеален както за живеене, така и за инвестиция, благодарение на функционалното разпределение и престижната локация.
Разпределение:
- Коридор
- Всекидневна с кухня – светла, просторна и подходяща за модерни интериорни решения
- Една спалня с гардеробна– спокойна, удобни и добре осветена
- Една баня с тоалетна
- Мокро помещение
- Тераса – подходяща за сутрешно кафе или малка кът за релакс
- Южен
Характеристики:
- Чисто нова сграда с модерна визия
- Висококачествени материали и прецизно изпълнение
- Разположен на оживен булевард в широкия център
- Прекрасна осветеност и оптимална ориентация
- Функционално разпределение без излишни площи
- Цена: 160 000 лева / 81 806 евро
Подходящ за семейство, младо домакинство или инвестиционен имот за отдаване под наем
Агенцията съдейства за отпускане на банков кредит при преференциални условия.
За повече информация заповядайте в офиса на агенцията или на телефон 08********88, 08********85.
Разпределение:
- Коридор
- Всекидневна с кухня – светла, просторна и подходяща за модерни интериорни решения
- Една спалня с гардеробна– спокойна, удобни и добре осветена
- Една баня с тоалетна
- Мокро помещение
- Тераса – подходяща за сутрешно кафе или малка кът за релакс
- Южен
Характеристики:
- Чисто нова сграда с модерна визия
- Висококачествени материали и прецизно изпълнение
- Разположен на оживен булевард в широкия център
- Прекрасна осветеност и оптимална ориентация
- Функционално разпределение без излишни площи
- Цена: 160 000 лева / 81 806 евро
Подходящ за семейство, младо домакинство или инвестиционен имот за отдаване под наем
Агенцията съдейства за отпускане на банков кредит при преференциални условия.
За повече информация заповядайте в офиса на агенцията или на телефон 08********88, 08********85.
ID: 146323306
Контакт с продавача
xxx xxx xxx
Добавена 11 декември 2025 г.
Съвременен апартамент в нова луксозна сграда с акт 14
160000 лв. / 81806.70 €
Потребител
Локация
гр. Казанлък
Област Стара Загора