Бизнес
Цена на кв.м: 2532.47
Брой етажи на сградата: 2
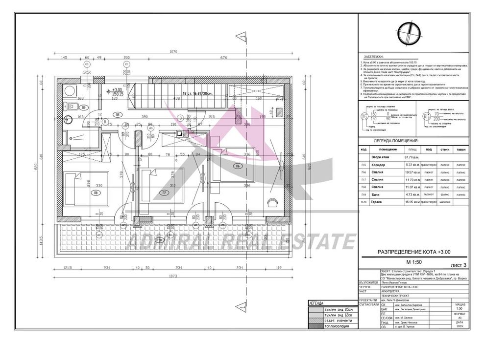
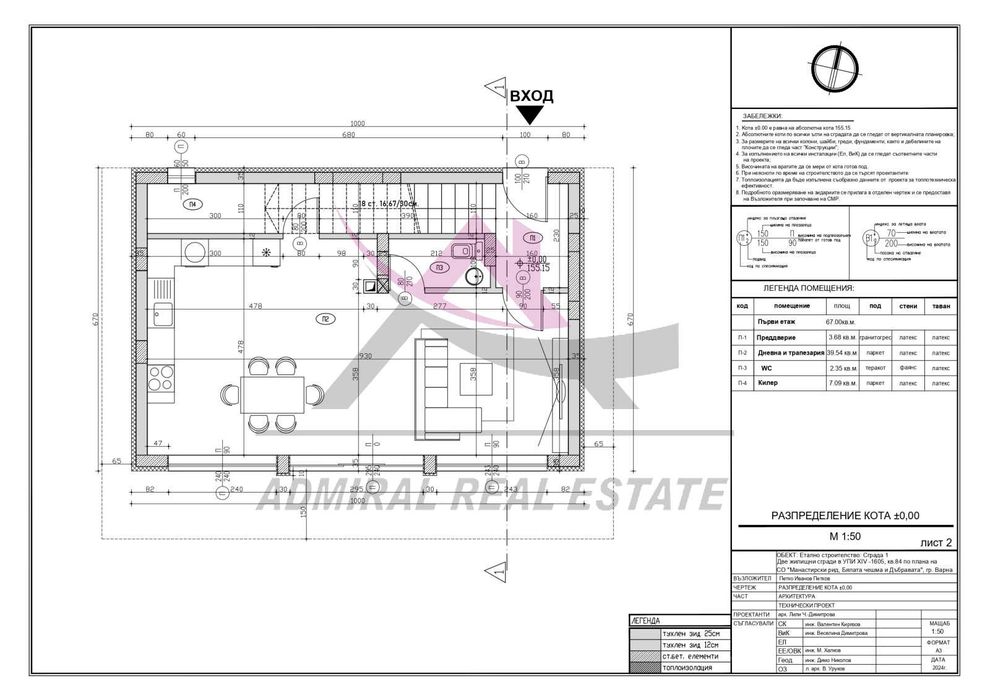
Квадратура: 154 кв.м
Квадратура на двора: 410 кв.м
Година на строителство: 2026 г.
Строителство: Тухла
Отопление: Електричество
Състояние на сградата: В строеж
Особености: гараж
Описание
Адмирал Риъл Естейт представя за ПРОДАЖБА уникална еднофамилна къща, съчетаваща съвременен дизайн, високо качество на изпълнение и устойчив, екологичен подход към начина на живот. Имотът се намира в тиха и зелена зона в местност до Конната база във Виница, подходяща както за постоянно живеене, така и за уикенд отдих. РАЗПРЕДЕЛЕНИЕ И ПЛОЩИ Обща застроена площ: 154 кв.м Веранда: 20 кв.м – идеална за сутрешно кафе или вечерни срещи с приятели Две паркоместа: по 20 кв.м всяко Общ двор: 410 кв.м – равен, озеленен и отлично организиран РАЗПРЕДЕЛЕНИЕ 3 спални , хол , отделно кухня с трапезария , бани отделно тоалет , килер . Къщата предлага функционално и комфортно вътрешно пространство с ясно обособени зони за почивка и ежедневие, осигуряващи удобство и светлина през цялата година. КАЧЕСТВО НА СТРОИТЕЛСТВОТО Изпълнението на проекта се отличава с внимание към детайла и използване на висококачествени материали: Дограма KÖMMERLING с троен стъклопакет – отлична шумо- и топлоизолация Фасадна изолация: 10 см стиропор с минерална мазилка, гарантираща енергийна ефективност Покрив: PVC мембрана – осигурява дълготрайност и защита от атмосферни влияния Вътрешни мазилки: варови – регулират влажността в помещенията и имат антибактериални свойства ЕНЕРГИЙНА НЕЗАВИСИМОСТ И УДОБСТВО Имотът е проектиран с мисъл за устойчиво и икономично потребление: Фотоволтаична централа – 6 kW Батерия – 10 kW, осигуряваща ниски месечни разходи и енергийна независимост от електроразпределителната мрежа Всички инсталации са изградени с фокус върху ефективността и комфорта на обитаване РАЗПЛАЩАТЕЛНИ СХЕМИ Предлагат се гъвкави схеми на плащане и индивидуален подход към всеки клиент, с възможност за договаряне според етапа на строителството и възможностите на купувача. ДОПЪЛНИТЕЛНА ИНФОРМАЦИЯ Тип имот: Къща Тип строителство: Ново строителство Година на завършване: 2026 г. Брой къщи: Две напълно еднакви къщи, всяка с отделен двор и по две паркоместа
Номер на обявата 230163 За повече информация и огледи Виктория Дишлиева 08********73
Номер на обявата 230163 За повече информация и огледи Виктория Дишлиева 08********73
ID: 146001569
Контакт с продавача
xxx xxx xxx

