Бизнес
Цена на кв.м: 1321.45
Тип апартамент: 2 - стаен
Квадратура: 73 кв.м
Година на строителство: 2028 г.
Строителство: Тухла
Етаж: 2-ри
Брой етажи на сградата: 4
Последен етаж
Отопление: Електричество
Обзавеждане: Необзаведен
Състояние на сградата: В строеж
Преход: Без преход
Особености: асансьор
Описание
Референтен номер: 3585. АКО ТЪРСИТЕ МЯСТО, КЪДЕТО СЪВРЕМЕННИЯТ СТИЛ СЕ СРЕЩА С ПРИРОДАТА И СКОКОЙСТВИЕТО- ТУК Е ВАШЕТО МЯСТО! НОВИЯТ БУТИКОВ КОМПЛЕКС В КВ. ОСТРОМИЛА, СЪЗДАДЕН ОТ ДОКАЗАН ИНВЕСТИТОР, ПРЕДЛАГА УЮТ, ФУНКЦИОНАЛНОСТ И ЗЕЛЕНИ ПРОСТРАНСТВА ЗА ИСТИНСКИ ПЪЛНОЦЕНЕН ГРАДСКИ ЖИВОТ!
НИСКО СТРОИТЕЛСТВО! ФУНКЦИОНАЛНИ АПАРТАМЕНТИ! ГЪВКАВИ СХЕМИ НА ПЛАЩАНЕ! ФУНКЦИОНАЛНИ АПАРТАМЕНТИ! ЗОНИ ЗА ОТДИХ! ГОЛЕМИ ОБЩИ ЗЕЛЕНИ ПРОСТРАНСТВА! ОСИГУРЕНО ПАРКИРАНЕ! ВИСОКОКАЧЕСТВЕНО СТРОИТЕЛСТВО! МОДЕРНА АРХИТЕКТУРА! ДОКАЗАН ИНВЕСТИТОР!
Предлагаме ви да закупите двустаен апартамент в новостроящ се модерен комплекс в кв. Остромила!
Основни характеристики на имота:
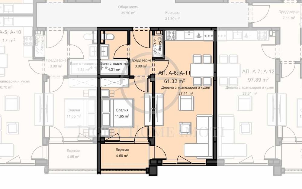
- Площ: 72,75 кв.м
- Разпределение: Просторен и светъл хол с кухненска част, голяма спалня, баня с тоалетна, входно антре, перално-склад и тераса.
- Вид строителство: Ново, Тухла
- Етажност: 2 от 4
- Паркиране: Възможност за закупуване на надземни паркоместа и гаражи.
Състояние на имота: Апартамента ще бъде издаден на шпакловка и замазка, което ви позволява да си го отремонтирате и обзаведете по свой собствен вкус!
Гъвкави Схеми на плащане:
СТОП КАПАРО 2500€ 20% ПД 70% АКТ 15 10% АКТ 16
Отстъпка 80€ /кв.м СТОП КАПАРО 2500€ 25% ПД 25% АКТ 14 25% ПОСТАВЕНА ДОГРАМА 25% АКТ 16
Отстъпка 80€ /кв.м СТОП КАПАРО 2500€ 30% ПД 30% АКТ 14 30% ПОСТАВЕНА ДОГРАМА 10% АКТ 16
Отстъпка 80€ /кв.м СТОП КАПАРО 2500€ 20% ПД 20% КОТА 0 20% АКТ 14 20% ПОСТАВЕНА ДОГРАМА 20% АКТ 16
Отстъпка 90€/ кв.м СТОП КАПАРО 2500€ 30% ПД 50% АКТ 14 10% АКТ 15 10% АКТ 16
Отстъпка 90€/ кв.м СТОП КАПАРО 2500€ 20% ПД 70% АКТ 14 10% АКТ 16
Отстъпка 100€/ кв.м СТОП КАПАРО 2500€ 90% ПД 10% АКТ 16
Локация: Тихо и спокойно място за живеене, а в същото време в близост до големи вериги магазини, детски градини, училища, спирки на градския транспорт и всичко, което е необходимо на Вас и Вашето семейство!
За повече информация и организиране на огледи, моля, свържете се с нас на посочения номер, като ще Ви е необходим следният референтен номер: 3585
Лайт Хоум имоти е доверен партньор на най-големите банкови институции в страната и съдейства за преференциални условия при нужда от кредитиране. Ще получите юридическо съдействие през целия процес на сделката, както и съдействие при подготовка, подаване и получаване на всички необходими документи за сделката.
НИСКО СТРОИТЕЛСТВО! ФУНКЦИОНАЛНИ АПАРТАМЕНТИ! ГЪВКАВИ СХЕМИ НА ПЛАЩАНЕ! ФУНКЦИОНАЛНИ АПАРТАМЕНТИ! ЗОНИ ЗА ОТДИХ! ГОЛЕМИ ОБЩИ ЗЕЛЕНИ ПРОСТРАНСТВА! ОСИГУРЕНО ПАРКИРАНЕ! ВИСОКОКАЧЕСТВЕНО СТРОИТЕЛСТВО! МОДЕРНА АРХИТЕКТУРА! ДОКАЗАН ИНВЕСТИТОР!
Предлагаме ви да закупите двустаен апартамент в новостроящ се модерен комплекс в кв. Остромила!
Основни характеристики на имота:
- Площ: 72,75 кв.м
- Разпределение: Просторен и светъл хол с кухненска част, голяма спалня, баня с тоалетна, входно антре, перално-склад и тераса.
- Вид строителство: Ново, Тухла
- Етажност: 2 от 4
- Паркиране: Възможност за закупуване на надземни паркоместа и гаражи.
Състояние на имота: Апартамента ще бъде издаден на шпакловка и замазка, което ви позволява да си го отремонтирате и обзаведете по свой собствен вкус!
Гъвкави Схеми на плащане:
СТОП КАПАРО 2500€ 20% ПД 70% АКТ 15 10% АКТ 16
Отстъпка 80€ /кв.м СТОП КАПАРО 2500€ 25% ПД 25% АКТ 14 25% ПОСТАВЕНА ДОГРАМА 25% АКТ 16
Отстъпка 80€ /кв.м СТОП КАПАРО 2500€ 30% ПД 30% АКТ 14 30% ПОСТАВЕНА ДОГРАМА 10% АКТ 16
Отстъпка 80€ /кв.м СТОП КАПАРО 2500€ 20% ПД 20% КОТА 0 20% АКТ 14 20% ПОСТАВЕНА ДОГРАМА 20% АКТ 16
Отстъпка 90€/ кв.м СТОП КАПАРО 2500€ 30% ПД 50% АКТ 14 10% АКТ 15 10% АКТ 16
Отстъпка 90€/ кв.м СТОП КАПАРО 2500€ 20% ПД 70% АКТ 14 10% АКТ 16
Отстъпка 100€/ кв.м СТОП КАПАРО 2500€ 90% ПД 10% АКТ 16
Локация: Тихо и спокойно място за живеене, а в същото време в близост до големи вериги магазини, детски градини, училища, спирки на градския транспорт и всичко, което е необходимо на Вас и Вашето семейство!
За повече информация и организиране на огледи, моля, свържете се с нас на посочения номер, като ще Ви е необходим следният референтен номер: 3585
Лайт Хоум имоти е доверен партньор на най-големите банкови институции в страната и съдейства за преференциални условия при нужда от кредитиране. Ще получите юридическо съдействие през целия процес на сделката, както и съдействие при подготовка, подаване и получаване на всички необходими документи за сделката.
ID: 147006960
Контакт с продавача
xxx xxx xxx

