Бизнес
Цена на кв.м: 1265.29
Тип апартамент: 1 - стаен
Квадратура: 49 кв.м
Година на строителство: 2026 г.
Строителство: Тухла
Етаж: 6-ти
Брой етажи на сградата: 6
Последен етаж
Отопление: Електричество
Обзавеждане: Необзаведен
Състояние на сградата: В строеж
Преход: Без преход
Особености: асансьор
Описание
Референтен номер: 3122. ЕДНОСТАЕН АПАРТАМЕНТ С АКТ 14 / ОСТРОМИЛА
Предлагаме Ви да закупите едностаен апартамент с акт 14 в кв. Остромила
Основни характеристики:
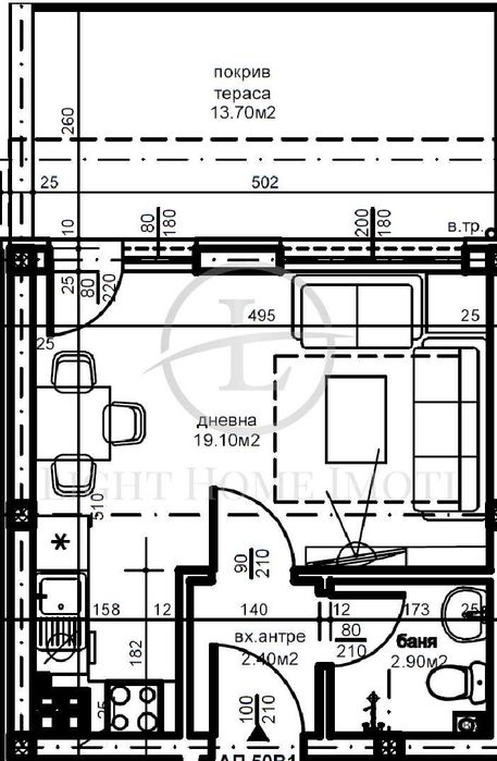
-Площ- 49кв.м.
-Разпределение- Просторен хол с кухненска част и кът за спане, баня с тоалетна, входно антре и голяма панорамна тераса.
-Етажност- 6ти етаж от 6(асансьор)
-Вид строителство- Тухла 2026г.
Жилилщето се продава на степен на завършеност шпакловка и замазка, ВиК до тапа и ел инсталация до ключ. Чудесна възможност да го обзаведете по собствен вкус и желание. Имотът е много подходящ както за живеене така и с цел инвестиция и отдаване под наем.
Локация: Намира се на много тиха и предпочитана локация, която от своя страна предлага всичко нобходимо за спокоен начин на живот.
За повече информация и организиране на огледи, моля, свържете се с нас на посочения номер, като ще Ви е необходим следният референтен номер: 3122
Лайт Хоум имоти е доверен партньор на най-големите банкови институции в страната и съдейства за преференциални условия при нужда от кредитиране. Ще получите юридическо съдействие през целия процес на сделката, както и съдействие при подготовка, подаване и получаване на всички необходими документи за сделката.
Предлагаме Ви да закупите едностаен апартамент с акт 14 в кв. Остромила
Основни характеристики:
-Площ- 49кв.м.
-Разпределение- Просторен хол с кухненска част и кът за спане, баня с тоалетна, входно антре и голяма панорамна тераса.
-Етажност- 6ти етаж от 6(асансьор)
-Вид строителство- Тухла 2026г.
Жилилщето се продава на степен на завършеност шпакловка и замазка, ВиК до тапа и ел инсталация до ключ. Чудесна възможност да го обзаведете по собствен вкус и желание. Имотът е много подходящ както за живеене така и с цел инвестиция и отдаване под наем.
Локация: Намира се на много тиха и предпочитана локация, която от своя страна предлага всичко нобходимо за спокоен начин на живот.
За повече информация и организиране на огледи, моля, свържете се с нас на посочения номер, като ще Ви е необходим следният референтен номер: 3122
Лайт Хоум имоти е доверен партньор на най-големите банкови институции в страната и съдейства за преференциални условия при нужда от кредитиране. Ще получите юридическо съдействие през целия процес на сделката, както и съдействие при подготовка, подаване и получаване на всички необходими документи за сделката.
ID: 145888422
Контакт с продавача
xxx xxx xxx

