Бизнес
Цена на кв.м: 1397.44
Тип апартамент: 2 - стаен
Квадратура: 78 кв.м
Година на строителство: 2027 г.
Строителство: Тухла
Етаж: 2-ри
Брой етажи на сградата: 5
Последен етаж
Отопление: Електричество
Обзавеждане: Необзаведен
Състояние на сградата: В строеж
Преход: Без преход
Особености: асансьор
Описание
НОВ МОДЕРЕН КОМПЛЕКС С НАД 4000КВ.М ОЗЕЛЕНЯВАНЕ! ВТОРИ ЕТАП! НИСКОЕТАЖНО СТРОИТЕЛСТВО! ФИЛТРИРАНЕ НА ПИТЕЙНАТА ВОДА! ПОДОВА ШУМОИЗОЛАЦИЯ! СОЛАРНИ ПАНЕЛИ ЗА ЗАХРАНВАНЕ НА ОБЩИТЕ ЧАСТИ НА СГРАДИТЕ! 100% ОСИГУРЕНО ПАРКИРАНЕ ПОСРЕДСТВОМ ПОДЗЕМНИ И НАДЗЕМНИ ПАРКОМЕСТА И ГАРАЖИ! ОКАБЕЛЯВАНЕ ЗА УМЕН ДОМ! ИНВЕСТИТОР С НАД 25 ГОДИШЕН ОПИТ!
ГЪВКАВИ СХЕМИ НА ПЛАЩАНЕ!
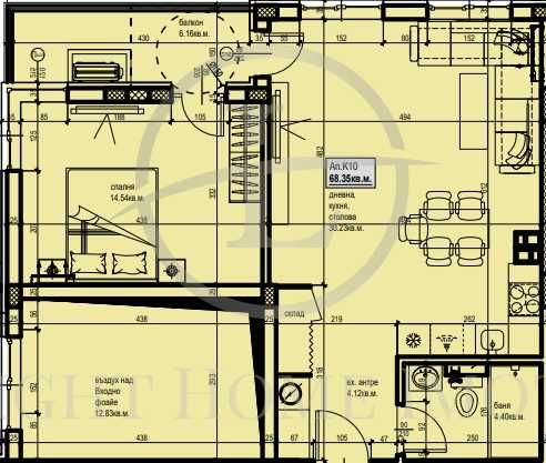
Предлагаме ви да закупите двустаен апартамент с дворно място в новостроящ се модерен комплекс в кв. Остромила!
Основни характеристики на имота:
- Площ: 78кв.м
- Разпределение: Просторен и светъл хол с кухненска част, голяма спалня, баня с тоалетна, входно антре, перално-склад и тераса
- Вид строителство: Ново , Тухла
- Етажност: 2 от 5
- Паркиране: Възможност за закупуване на надземни паркоместа и гаражи.
Състояние на имота: Апартамента ще бъде издаден на шпакловка и замазка, което ви позволява да си го отремонтирате и обзаведете по свой собствен вкус! Жилището ще бъде подготвено и окабелено за система "Умен дом".
Локация: Тихо и спокойно място за живеене,а в същото време в близост до големи вериги магазини, детски градини,училища, спирки на градския транспорт и всичко , което е необходимо на Вас и Вашето семейство!
За повече информация и организиране на огледи, моля, свържете се с нас на посочения номер, като ще Ви е необходим следният референтен номер: 2959
Лайт Хоум имоти е доверен партньор на най-големите банкови институции в страната и съдейства за преференциални условия при нужда от кредитиране. Ще получите юридическо съдействие през целия процес на сделката, както и съдействие при подготовка, подаване и получаване на всички необходими документи за сделката.
104732
ГЪВКАВИ СХЕМИ НА ПЛАЩАНЕ!
Предлагаме ви да закупите двустаен апартамент с дворно място в новостроящ се модерен комплекс в кв. Остромила!
Основни характеристики на имота:
- Площ: 78кв.м
- Разпределение: Просторен и светъл хол с кухненска част, голяма спалня, баня с тоалетна, входно антре, перално-склад и тераса
- Вид строителство: Ново , Тухла
- Етажност: 2 от 5
- Паркиране: Възможност за закупуване на надземни паркоместа и гаражи.
Състояние на имота: Апартамента ще бъде издаден на шпакловка и замазка, което ви позволява да си го отремонтирате и обзаведете по свой собствен вкус! Жилището ще бъде подготвено и окабелено за система "Умен дом".
Локация: Тихо и спокойно място за живеене,а в същото време в близост до големи вериги магазини, детски градини,училища, спирки на градския транспорт и всичко , което е необходимо на Вас и Вашето семейство!
За повече информация и организиране на огледи, моля, свържете се с нас на посочения номер, като ще Ви е необходим следният референтен номер: 2959
Лайт Хоум имоти е доверен партньор на най-големите банкови институции в страната и съдейства за преференциални условия при нужда от кредитиране. Ще получите юридическо съдействие през целия процес на сделката, както и съдействие при подготовка, подаване и получаване на всички необходими документи за сделката.
104732
ID: 145551671
Контакт с продавача
xxx xxx xxx

