Бизнес
Цена на кв.м: 1593.14
Брой етажи на сградата: 2
Квадратура: 204 кв.м
Квадратура на двора: 120 кв.м
Година на строителство: 2026 г.
Строителство: Тухла
Отопление: Електричество
Състояние на сградата: Завършена
Особености: паркинг, санирана
Описание
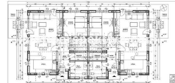
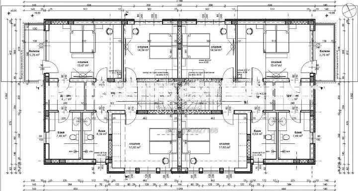
реф.19385 Предлагаме Ви ДВУЕТАЖНА КЪЩА на ТИХО и СПОКОЙНО място за живеене! Първия етаж се състои от СВЕТЪЛ и ПРОСТОРЕН хол с кухненски бокс ( 44кв ), спалня, баня с толаетна, перално, склад и излаз на веранда ( 30кв ). Втория етаж се състои от ТРИ САМОСТОЯТЕЛНИ спални, една от които със собствен санитарен възел и дрешник, ТЕРАСА и коридор. Имота се продава на шпакловка и замазка, което дава страхотната възможност на новите собственици да го обзаведат по собствен вкус и стил. Къщата разполага с озеленен двор с капково напояване, както и предвиден тръбен път за подово отопление. ДВЕ ПАРКОМЕСТА ВКЛЮЧЕНИ В ЦЕНАТА!!!
ID: 147794828
Контакт с продавача
xxx xxx xxx
Добавена 27 април 2026 г.
реф.19385 Чисто нова къща с две паркоместа-Коматевско шосе!
635644.75 лв. / 325000 €
Потребител
Локация
гр. Пловдив, Кючук Париж
Област Пловдив
