Бизнес
Цена на кв.м: 1201.92
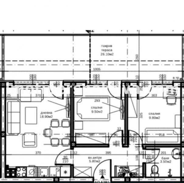
Тип апартамент: 3 - стаен
Квадратура: 104 кв.м
Година на строителство: 2026 г.
Строителство: Тухла
Етаж: 6-ти
Брой етажи на сградата: 6
Последен етаж
Отопление: Електричество
Обзавеждане: Необзаведен
Състояние на сградата: В строеж
Преход: Без преход
Особености: асансьор, саниран
Описание
реф.16920 ПРЕД АКТ 15!!! Предлагаме Ви ТРИСТАЕН апартамент на ТИХО и СПОКОЙНО място за живеене. Състои се от СВЕТЪЛ и СЛЪНЧЕВ хол с кухненски бокс, ДВЕ САМОСТОЯТЕЛНИ спални, баня с тоалетна, голяма тераса (26кв),входно антре и прилежащо избено помещение. Имотът които ви предлагаме да закупите е на шпакловка и замазка което дава страхотната възможност на новите собственици да го обзаведат по собствен вкус и стил. В близост са разположени детски градини, училища, хранителни магазини, удобен градски транспорт до всяка една точка на града и др.
ID: 146833508
Контакт с продавача
xxx xxx xxx
Обновено на 06 април 2026 г.
реф.16920 Нова луксозна сграда, две спални-Остромила!
244478.75 лв. / 125000 €
Потребител
Локация
гр. Пловдив, Остромила
Област Пловдив
