Бизнес
Цена на кв.м: 655.02
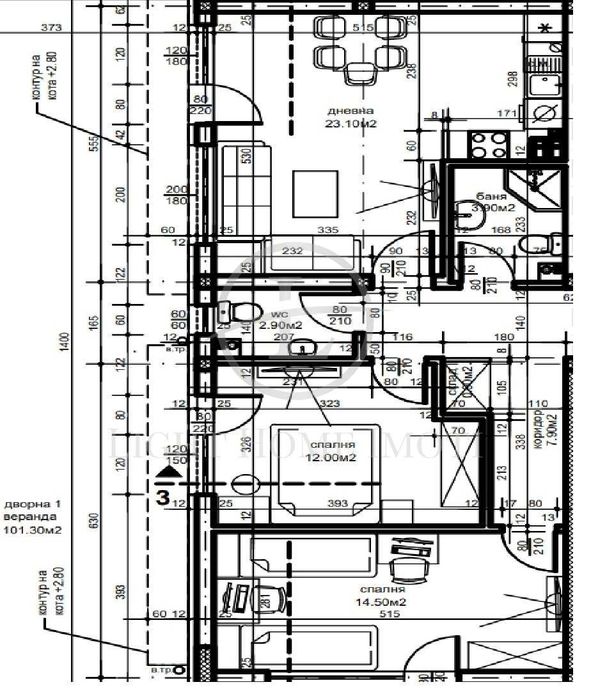
Тип апартамент: 3 - стаен
Квадратура: 197 кв.м
Година на строителство: 2026 г.
Строителство: Тухла
Етаж: Партер
Брой етажи на сградата: 4
Последен етаж
Отопление: Електричество
Обзавеждане: Необзаведен
Състояние на сградата: В строеж
Преход: Без преход
Особености: асансьор
Описание
Реф. номер: 1521
МАЛКА БУТИКОВА СГРАДА В КВ. БЕЛОМОРСКИ
Педлагаме Ви да закупите Вашият нов ДОМ, в малка бутикова сграда в един от най- бързо развиващите се райони в града.
Основни характеристики:
-Площ- 197кв.м. (101 кв.м. дворна веранда)
-Разпределение- Просторен хол с кухненски бокс, две непреходни спални, баня с тоалетна, тоалетна, килер, входно антре и голяма дворна веранда.
-Вид строителство- тухла 2026г
-Етажност- партер от 4
-Паркиране- Възможност за закупуване на ПАРКОМЯСТО ИЛИ ГАРАЖ
Сградата ще се издава на степен на завършеност шпакловка и замазка, ВиК до тапа и Ел инсталация до ключ.
Утвърден и сигурен инвеститор предлагащ гъвкави и поетапни схеми на плащане!
- 30% при подписване на предварителен договор!
- 20% до средата на сградата!
- 20% при акт 14!
- 20% няколко месеца след акт 14!
- 10% при акт 16!
Локация: Намира се на много тиха и спокойна локация, но същевременно комуникативна и предлагаща всичко необходимо за спокоен начин на живот.
За повече информация и организиране на огледи, моля, свържете се с нас на посочения номер, като ще Ви е необходим следният референтен номер: 1521
Лайт Хоум имоти е доверен партньор на най-големите банкови институции в страната и съдейства за преференциални условия при нужда от кредитиране. Ще получите юридическо съдействие през целия процес на сделката, както и съдействие при подготовка, подаване и получаване на всички необходими документи за сделката.
МАЛКА БУТИКОВА СГРАДА В КВ. БЕЛОМОРСКИ
Педлагаме Ви да закупите Вашият нов ДОМ, в малка бутикова сграда в един от най- бързо развиващите се райони в града.
Основни характеристики:
-Площ- 197кв.м. (101 кв.м. дворна веранда)
-Разпределение- Просторен хол с кухненски бокс, две непреходни спални, баня с тоалетна, тоалетна, килер, входно антре и голяма дворна веранда.
-Вид строителство- тухла 2026г
-Етажност- партер от 4
-Паркиране- Възможност за закупуване на ПАРКОМЯСТО ИЛИ ГАРАЖ
Сградата ще се издава на степен на завършеност шпакловка и замазка, ВиК до тапа и Ел инсталация до ключ.
Утвърден и сигурен инвеститор предлагащ гъвкави и поетапни схеми на плащане!
- 30% при подписване на предварителен договор!
- 20% до средата на сградата!
- 20% при акт 14!
- 20% няколко месеца след акт 14!
- 10% при акт 16!
Локация: Намира се на много тиха и спокойна локация, но същевременно комуникативна и предлагаща всичко необходимо за спокоен начин на живот.
За повече информация и организиране на огледи, моля, свържете се с нас на посочения номер, като ще Ви е необходим следният референтен номер: 1521
Лайт Хоум имоти е доверен партньор на най-големите банкови институции в страната и съдейства за преференциални условия при нужда от кредитиране. Ще получите юридическо съдействие през целия процес на сделката, както и съдействие при подготовка, подаване и получаване на всички необходими документи за сделката.
ID: 142690841
Контакт с продавача
xxx xxx xxx

