Бизнес
Цена на кв.м: 1213.41
Тип апартамент: 2 - стаен
Квадратура: 73 кв.м
Година на строителство: 2025 г.
Строителство: Тухла
Етаж: 3-ти
Брой етажи на сградата: 6
Последен етаж
Отопление: Електричество
Обзавеждане: Необзаведен
Състояние на сградата: В строеж
Преход: Без преход
Особености: асансьор
Описание
Реф.номер: 1204
ЕКСКЛУЗИВНО! ДВУСТАЕН ПРОСТОРЕН АПАРТАМЕНТ НА СРЕДЕН ЕТАЖ С АКТ 14
Предлагаме Ви да закупите просторен ДВУСТАЕН АПАРТАМЕНТ с ЮЖНО ИЗЛОЖЕНИЕ в един от най- предпочитаните райони за живеене в града.
Основни характеристики:
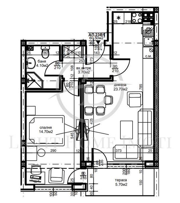
-Площ- 73кв.м. РЗП 61кв.м.
-Разпределение- Просторен хол с кухненски бокс, голяма спалня, баня с тоалетна, килер, входно антре, тераса и прилежащо избено помещение.
-Етажност- 3ти етаж от 6 (асансьор)
-Вид строителство- Тухла 2025г.
Жилището ще се издава на степен на завършеност шпакловка и замазка, ВиК до тапа и ЕЛ инсталация до ключ. Това Ви дава чудесната възможност да го довършите и обзаведете по ваш собствен вкус и желание.
Локация: Намира се на много тиха но същевременно комуникативна локация, която предлага всичко необходимо за вас и вашето семейство.
За повече информация и организиране на огледи, моля, свържете се с нас на посочения номер, като ще Ви е необходим следният референтен номер: 1204
Лайт Хоум имоти е доверен партньор на най-големите банкови институции в страната и съдейства за преференциални условия при нужда от кредитиране. Ще получите юридическо съдействие през целия процес на сделката, както и съдействие при подготовка, подаване и получаване на всички необходими документи за сделката.
ЕКСКЛУЗИВНО! ДВУСТАЕН ПРОСТОРЕН АПАРТАМЕНТ НА СРЕДЕН ЕТАЖ С АКТ 14
Предлагаме Ви да закупите просторен ДВУСТАЕН АПАРТАМЕНТ с ЮЖНО ИЗЛОЖЕНИЕ в един от най- предпочитаните райони за живеене в града.
Основни характеристики:
-Площ- 73кв.м. РЗП 61кв.м.
-Разпределение- Просторен хол с кухненски бокс, голяма спалня, баня с тоалетна, килер, входно антре, тераса и прилежащо избено помещение.
-Етажност- 3ти етаж от 6 (асансьор)
-Вид строителство- Тухла 2025г.
Жилището ще се издава на степен на завършеност шпакловка и замазка, ВиК до тапа и ЕЛ инсталация до ключ. Това Ви дава чудесната възможност да го довършите и обзаведете по ваш собствен вкус и желание.
Локация: Намира се на много тиха но същевременно комуникативна локация, която предлага всичко необходимо за вас и вашето семейство.
За повече информация и организиране на огледи, моля, свържете се с нас на посочения номер, като ще Ви е необходим следният референтен номер: 1204
Лайт Хоум имоти е доверен партньор на най-големите банкови институции в страната и съдейства за преференциални условия при нужда от кредитиране. Ще получите юридическо съдействие през целия процес на сделката, както и съдействие при подготовка, подаване и получаване на всички необходими документи за сделката.
ID: 141813169
Контакт с продавача
xxx xxx xxx

