Бизнес
Цена на кв.м: 2608.70
Тип апартамент: 3 - стаен
Квадратура: 161 кв.м
Година на строителство: 2024 г.
Строителство: Тухла
Етаж: 2-ри
Брой етажи на сградата: 2
Последен етаж
Отопление: Термопомпа
Обзавеждане: Необзаведен
Състояние на сградата: Завършена
Преход: Без преход
Особености: гараж, видеонаблюдение
Описание
ЕРА Голд има удоволствието да Ви представи за продажба тристаен апартамент с двоен гараж и озеленено дворно пространство - тип редова къща, част от бутиков проект с АКТ 16 в кв. "Симеоново". Жилището е строено с висококачествени материали и иновативни решения, гарантиращи комфорт, сигурност и енергийна ефективност. Разположена на 600 м от спирки на градски транспорт (автобуси № 68 и № 98), с бърз и лесен достъп до централната градска част, а в същото време в тиха и зелена среда, предлагаща уединение и спокойствие, в подножието на планина Витоша.
Разпределение:
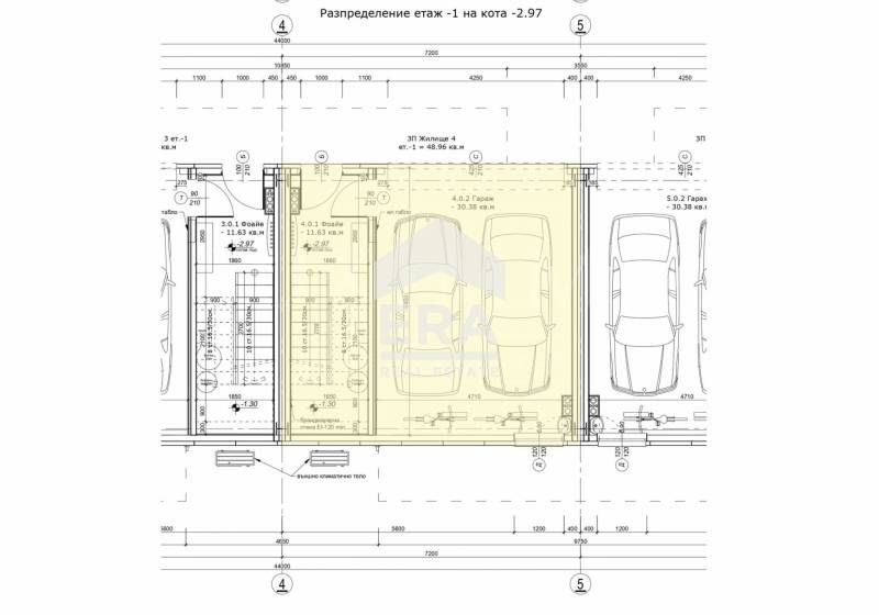
ниво сутерен: гараж за два автомобила с прозорец и автоматична врата Hörmann;
ниво 1: антре, просторна дневна с кухня и трапезария 51 кв. м., баня с тоалетна, и излаз към двора;
ниво 2: коридор, две спални, всяка със самостоятелна баня, мокро помещение, и две тераси.
Жилището предлага РЗП от 161 кв. м. + тераси 13,93 кв.м, със собствен двор от 36,56 кв. м. и идеални части от земята, развняващите се на 201.10 кв. м.
Издава се в степен на завършеност по БДС:
строителство - тухла, стоманобетон и стомана;
подготвена инсталация за термопомпа и подово отопление;
прекарани трасета за радиатори и изграден комин за камина;
дограма Aluplast 7000 с троен стъклопакет и прекъснат термомост;
външна топлоизолация – 25 см на покрива и фасадите;
покрив с минерална вата и профилирана ламарина;
стени – мазилка и гипсокартон, подове на замазка;
изградена пречиствателна станция;
отделни водомери и електромери.
*Разполага с изготвен интериорен проект и има възможност за довършване „до ключ“ според предпочитанията на бъдещия собственик.
Подходящ вариант е както за лично ползване, така и за инвестиция. Обявената цена е в включен ДДС!
CreditERA предоставя безплатна консултация и съдействие при финансиране на избрания от Вас имот от всички водещи банки в страната и ще договори най-добрите условия за вас!
Оферта №4061625
Разпределение:
ниво сутерен: гараж за два автомобила с прозорец и автоматична врата Hörmann;
ниво 1: антре, просторна дневна с кухня и трапезария 51 кв. м., баня с тоалетна, и излаз към двора;
ниво 2: коридор, две спални, всяка със самостоятелна баня, мокро помещение, и две тераси.
Жилището предлага РЗП от 161 кв. м. + тераси 13,93 кв.м, със собствен двор от 36,56 кв. м. и идеални части от земята, развняващите се на 201.10 кв. м.
Издава се в степен на завършеност по БДС:
строителство - тухла, стоманобетон и стомана;
подготвена инсталация за термопомпа и подово отопление;
прекарани трасета за радиатори и изграден комин за камина;
дограма Aluplast 7000 с троен стъклопакет и прекъснат термомост;
външна топлоизолация – 25 см на покрива и фасадите;
покрив с минерална вата и профилирана ламарина;
стени – мазилка и гипсокартон, подове на замазка;
изградена пречиствателна станция;
отделни водомери и електромери.
*Разполага с изготвен интериорен проект и има възможност за довършване „до ключ“ според предпочитанията на бъдещия собственик.
Подходящ вариант е както за лично ползване, така и за инвестиция. Обявената цена е в включен ДДС!
CreditERA предоставя безплатна консултация и съдействие при финансиране на избрания от Вас имот от всички водещи банки в страната и ще договори най-добрите условия за вас!
Оферта №4061625
ID: 144978993
Контакт с продавача
xxx xxx xxx

